Avico Greentop

Eladó ikerház
Nagycenk

+ 11 kép 1/14
85 600 000 Ft85.6 M Ft 901 053 Ft/m2
4 szoba
95 m2
építés éve:2024

Részletes adatok

Telekméret: 280 m2
Fűtés: Egyéb
Közmű: Víz, Villany, Csatorna
Energetikai besorolás: Nem adta meg a hirdető

Az OTP Bank lakáshitel ajánlataFizetett hirdetés

+36 30 520
Szépingatlan Iroda
Szépingatlan Iroda

Érdekel az OTP Bank kedvezményes lakáshitel ajánlata? *

* A kérdésre „Igen” válasz bejelölése esetén, az „Üzenet küldése” gombra kattintva kijelentem, hogy az OTP Bank Nyrt. Adatkezelési tájékoztatójának tartalmát megismertem és tudomásul vettem.

Eladó ikerház leírása

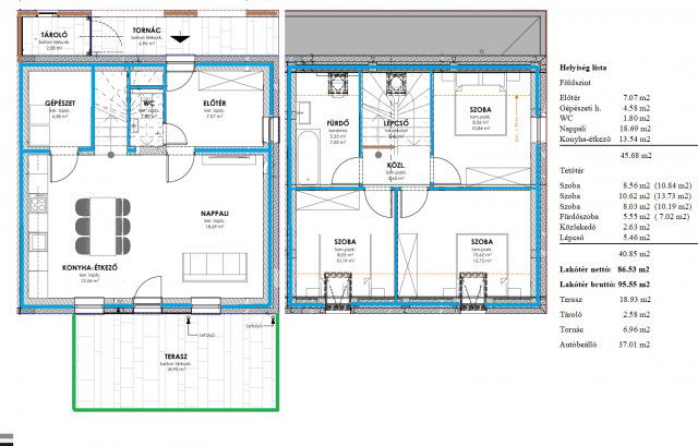
A Szépingatlan Iroda eladásra kínál Nagycenken, a Széchenyi lakópark legdinamikusabban fejlődő területén, kizárólag új építésű családi házas övezetben, 560 m2-es telken épülő, 95 m2-es ikerház, utcafronti lakását, saját 280 m2-es telekrésszel. Az ingatlan saroktelken helyezkedik el, így kihasználva a terület adottságait, a lakóépület szeparáltan, külön bejárattal közelíthető meg. Az egyszerűség, a praktikusság, és a költséghatékonyság volt a fő szempont a házak megalkotásakor. A két ház megegyező elrendezésű, mely három hálószobát, amerikai konyhás nappalit-étkezővel, fürdőszobát, két WC-t, gépészeti helyiséget, egy tágas előszobát és egy tárolóhelyiséget foglal magában. Az alsó szinten a nappali-konyha-étkező kiváló egysége található, mely hatalmas üvegfelülettel kapcsolódik a nyugati tájolásu terasszal a kert felé. Kényelmes lépcső vezet az emeleti szintre, a pihenés és a magán szféra felső szintjére, ahol három szoba és a fürdőszoba kapott helyet. Minden helyiség közlekedőből nyílik. Az ingatlan két szintes, sávalapra épült ház, 30-as POROTHERM téglából, 18 cm homlokzati szigeteléssel valósul meg, hőszivattyús fűtésrendszerrel, a lakótérben padlófűtéssel. A hőszivattyús fűtésnek, a megfelelő szigetelésnek, a korszerű nyílászáróknak köszönhetően alacsony rezsivel lehet kalkulálni. A külső nyílászárók fehér, bukó-nyíló szerkezetűek, 3 rétegű hőszigetelt üvegezéssel és külső árnyékolóval kerülnek beépítésre. A belső falak festése fehér színben, hideg-meleg burkolatok, beltéri ajtók, szaniterek az építtetővel egyeztetve, meghatározott áron választhatók. Az előkertben két autó számára biztosított a parkolási lehetőség. Babaváró hitel, CSOK Plusz, támogatott hitelek igénybe vehetők! Bankfüggetlen szakértő kollégánk teljes körű és díjmentes hitelügyintézéssel áll az ügyfelek rendelkezésére. Kérje személyre szabott ajánlatunkat! A projekttel kapcsolatos további kérdésekkel keresse minket személyes találkozóra! Tervezett átadás a megrendeléstől számított 10 hónap. Az épületről látványterv készült, a fotók a jelenleg építés alatt álló házról készültek. Ára: 85,6 mFt. Kérem privát üzenetben érdeklődjön!

Hirdetés feltöltve: 2024. 09. 13. Utoljára módosítva: 2025. 11. 25.

Az ingatlan elhelyezkedése

Cím: Nagycenk

Eladó ingatlanok a környékről

Eladó téglalakás
Eladó téglalakás

Győr, Marcaliváros I., Zrínyi utca

77.9 M Ft
3 szoba
65 m2
Eladó ikerház
Eladó ikerház

Várbalog, Fő út

86.1 M Ft
3 szoba
123 m2
Eladó családi ház
Eladó családi ház

Tét

26.9 M Ft
3 szoba
90 m2
Eladó ikerház
Eladó ikerház

Mosonmagyaróvár

79.8 M Ft
4 szoba
88 m2
Eladó családi ház
Eladó családi ház

Pannonhalma

62.34 M Ft
4 szoba
103 m2
Eladó ikerház
Eladó ikerház

Vámosszabadi, Császárfa utca

89 M Ft
4 szoba
91 m2
Eladó telek
Eladó telek

Győrújbarát

43 M Ft
1404 m²
Eladó családi ház
Eladó családi ház

Győr

149.98 M Ft
5 szoba
360 m2
Eladó téglalakás
Eladó téglalakás

Kapuvár

52.8 M Ft
3 szoba
51 m2
Eladó ikerház
Eladó ikerház

Győr

118 M Ft
5 szoba
135 m2
Eladó téglalakás
Eladó téglalakás

Győr

87.5 M Ft
4 szoba
90 m2
Eladó ikerház
Eladó ikerház

Écs

65.5 M Ft
4 szoba
121 m2
Eladó ikerház
Eladó ikerház

Nagycenk

89.5 M Ft
4 szoba
91 m2
Eladó ikerház
Eladó ikerház

Nagycenk

77.5 M Ft
3 szoba
68 m2
Eladó családi ház
Eladó családi ház

Győrság

86.9 M Ft
4 szoba
92 m2
Eladó ikerház
Eladó ikerház

Győr, Belváros, 9022 Győr-Révfalu

187.998 M Ft
605 m²
180 m2
Eladó családi ház
Eladó családi ház

Mosonmagyaróvár

55 M Ft
2 + 3 szoba
140 m2
Eladó családi ház
Eladó családi ház

Győrújfalu

275 M Ft
6 szoba
236 m2
Eladó ipari ingatlan
Eladó ipari ingatlan

Győrság

477 M Ft
8392 m²
1115 m2
Eladó ikerház
Eladó ikerház

Fertőrákos

125 M Ft
4 szoba
170 m2
Eladó téglalakás
Eladó téglalakás

Győr

67.9 M Ft
3 szoba
51 m2
Eladó téglalakás
Eladó téglalakás

Győr

68.99 M Ft
3 szoba
52 m2
Eladó panellakás
Eladó panellakás

Győr

46.9 M Ft
2 szoba
53 m2
Eladó családi ház
Eladó családi ház

Sopron

349 M Ft
8 szoba
520 m2

Falusi CSOK ingatlanok

Eladó családi ház
Eladó családi ház

Mályi

84.9 M Ft
4 szoba
100 m2
Eladó családi ház
Eladó családi ház

Ceglédbercel, Iskola utca

79.99 M Ft
5 szoba
90 m2
Eladó családi ház
Eladó családi ház

Mencshely

99 M Ft
3 szoba
126 m2
Eladó családi ház
Eladó családi ház

Törtel

10 M Ft
2 szoba
43 m2
Eladó családi ház
Eladó családi ház

Onga, 3562 Onga, József Attila utca 26

17.75 M Ft
1 + 1 szoba
174 m2
Eladó családi ház
Eladó családi ház

Ságvár

64.9 M Ft
3 szoba
70 m2
Eladó családi ház
Eladó családi ház

Nagykarácsony

34.9 M Ft
3 szoba
112 m2
Eladó családi ház
Eladó családi ház

Balatonkeresztúr

41.9 M Ft
2 szoba
57 m2