Oasis Residence

Eladó ikerház
Győrszemere

+ 4 kép 1/7
89 000 000 Ft89 M Ft 967 391 Ft/m2
4 szoba
92 m2
építés éve:2025

Részletes adatok

Telekméret: 812 m2
Fűtés: Elektromos
Energetikai besorolás: Nem adta meg a hirdető

Az OTP Bank lakáshitel ajánlataFizetett hirdetés

+36 20 419
Hima Zsuzsanna
OTPip - Győr Bajcsy-Zsilinszky út 27 - OTP Ingatlanpont Iroda

Érdekel az OTP Bank kedvezményes lakáshitel ajánlata? *

* A kérdésre „Igen” válasz bejelölése esetén, az „Üzenet küldése” gombra kattintva kijelentem, hogy az OTP Bank Nyrt. Adatkezelési tájékoztatójának tartalmát megismertem és tudomásul vettem.

Eladó ikerház leírása

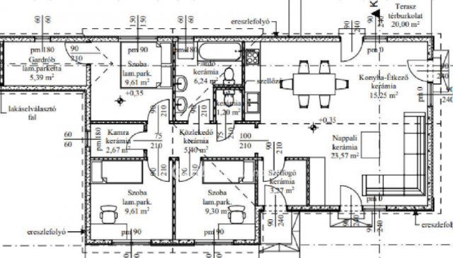
Első tulajdonosát keresi Győrtől 10 perc autóútra, Győrszemere-Nagyszentpálon egy 92 m2-es, 1+3 félszobás, új építésű ikerház. Az ár a kulcsrakész állapotra vonatkozik. Az otthon melegét levegő-levegő hőszivattyú biztosítja H-tarifával, ami hűt és fűt, ill. kiegészítő elektromos padlófűtés van a konyha-étkező és a fürdőszoba alatt. A fényárban úszó amerikai konyhás nappali az ingatlan éke, ahonnan egy 20 m2-s teraszra jutunk, ahol kényelmesen elfogyaszthatjuk a reggeli kávénkat. Egy gardrób és egy kamra helyiség is kialakításra került. Ne hagyja ki ezt a kivételes lehetőséget, nem sokáig lesz a piacon! Nézzük meg személyesen és tervezze meg álmai otthonát. Nincs meg a vételár teljes összege? Az OTP Ingatlanpont teljes körű ügyintézéssel áll az eladók és a vevők rendelkezésére! Az OTP csoport tagjaként, ügyfeleinknek lehetőségük van az OTP Bank által nyújtott kedvező hitel-, kamat- és díjkedvezmények igénybevételére. Az adás-vétel folyamatának megkönnyítése érdekében szakképzett kollégáink, ügyvédeink gyorsított ügyintézéssel állnak szíves rendelkezésükre. További információért keressen bizalommal, nézzük meg együtt!

Referenciaszám: M306081

Hirdetés feltöltve: 2025. 12. 28. Utoljára módosítva: 2025. 12. 28.

4 szobás ikerházak ára Győrszemerén

Ebből az összehasonlításból megtudhatod, hogyan viszonyul a lakás ára a környékbeli ikerházak átlagos árához. Ez nem azt jelenti, hogy ennyivel olcsóbb vagy drágább, mint amennyit a lakás ér, hanem hogy ennyivel tér el a környékbeli átlagtól.

Ennek a m² ára
Győrszemere m² ár
967 e Ft
335 e Ft -189%
Ennek az ára
Győrszemere átlagár
89 M Ft m Ft
38.6 m Ft -131%

Az ingatlan elhelyezkedése

Cím: Győrszemere

Eladó ingatlanok a környékről

Eladó iroda
Eladó iroda

Győr

38.95 M Ft
2 szoba
41 m2
Eladó családi ház
Eladó családi ház

Bakonyszentlászló

78 M Ft
2 szoba
130 m2
Eladó ikerház
Eladó ikerház

Sopron

135 M Ft
4 szoba
95 m2
Eladó ikerház
Eladó ikerház

Bezenye

76.2 M Ft
5 szoba
92 m2
Eladó panellakás
Eladó panellakás

Győr

49.9 M Ft
2 szoba
53 m2
Eladó ikerház
Eladó ikerház

Győr, Belváros, 9022 Győr-Révfalu

187.998 M Ft
605 m²
180 m2
Eladó panellakás
Eladó panellakás

Győr

52 M Ft
2 + 1 szoba
55 m2
Eladó ikerház
Eladó ikerház

Győr

82.6 M Ft
4 szoba
101 m2
Eladó családi ház
Eladó családi ház

Ágfalva

169 M Ft
5 szoba
152 m2
Eladó ikerház
Eladó ikerház

Fertőrákos

125 M Ft
4 szoba
170 m2
Eladó családi ház
Eladó családi ház

Bőny

59.9 M Ft
4 szoba
91 m2
Eladó családi ház
Eladó családi ház

Magyarkeresztúr, Széchenyi István utca

19.6 M Ft
2 szoba
92 m2
Eladó ikerház
Eladó ikerház

Győr

149 M Ft
4 szoba
167 m2
Eladó téglalakás
Eladó téglalakás

Győr

94.9 M Ft
4 szoba
101 m2
Eladó ikerház
Eladó ikerház

Győrszemere

89 M Ft
1 + 3 szoba
92 m2
Eladó téglalakás
Eladó téglalakás

Győr

69.9 M Ft
4 szoba
97 m2
Eladó téglalakás
Eladó téglalakás

Győr

58.9 M Ft
2 szoba
55 m2
Eladó családi ház
Eladó családi ház

Kunsziget

52 M Ft
4 szoba
130 m2
Eladó ikerház
Eladó ikerház

Pér

82.634 M Ft
5 szoba
110 m2
Eladó téglalakás
Eladó téglalakás

Győr

46.9 M Ft
1 szoba
28 m2
Eladó telek
Eladó telek

Máriakálnok

23 M Ft
654 m²
Eladó ikerház
Eladó ikerház

Écs

82.25 M Ft
4 szoba
166 m2
Eladó családi ház
Eladó családi ház

Bőny

59.9 M Ft
4 szoba
91 m2
Eladó ikerház
Eladó ikerház

Mosonmagyaróvár

79.8 M Ft
4 szoba
88 m2

Falusi CSOK ingatlanok

Eladó családi ház
Eladó családi ház

Újlengyel

110 M Ft
4 szoba
121 m2
Eladó családi ház
Eladó családi ház

Balatonfenyves

430 M Ft
4 szoba
274 m2
Eladó családi ház
Eladó családi ház

Dunaalmás

52.5 M Ft
3 + 1 szoba
140 m2
Eladó családi ház
Eladó családi ház

Enese

82.9 M Ft
4 szoba
90 m2
Eladó családi ház
Eladó családi ház

Újkígyós

11.99 M Ft
2 szoba
77 m2
Eladó családi ház
Eladó családi ház

Kesztölc

129.9 M Ft
8 szoba
210 m2
Eladó családi ház
Eladó családi ház

Szenyér

6.5 M Ft
2 szoba
67 m2
Eladó családi ház
Eladó családi ház

Nagybaracska

35 M Ft
3 szoba
110 m2