Seven Pearl

Eladó ikerház
Mende

+ 7 kép 1/10
85 000 000 Ft85 M Ft 904 255 Ft/m2
4 szoba
94 m²
építés éve:2026

Részletes adatok

Telekméret: 981 m2
Fűtés: Egyéb
Energetikai besorolás: Nem adta meg a hirdető

Az OTP Bank lakáshitel ajánlataFizetett hirdetés

3629769742
Gyuga Alexandra
referens

Érdekel az OTP Bank kedvezményes lakáshitel ajánlata? *

* A kérdésre „Igen” válasz bejelölése esetén, az „Üzenet küldése” gombra kattintva kijelentem, hogy az OTP Bank Nyrt. Adatkezelési tájékoztatójának tartalmát megismertem és tudomásul vettem.

Eladó ikerház leírása

​ MENDE – PUSZTASZENTISTVÁNI RÉSZÉN ÚJ ÉPÍTÉSŰ OTTHON
​3 szoba + amerikai konyhás nappali, saját kerttel!
​Vasútállomáshoz közel, mégis csendes, nyugodt környezetben!
Ikerház: ELSŐ HÁZ
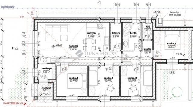
​ Az ingatlan jellemzői
​Mendén, a közkedvelt Pusztaszentistváni részen kínálok megvételre egy nettó 94 m²-es, kiváló elosztású családi otthont.
​Telek: 981 m²-es össztelken helyezkedik el.
​Saját kert: 250 m² kizárólagos használatú kertrész tartozik hozzá (ideális pihenéshez, sütögetéshez, medencéhez vagy mobilgarázshoz).
​Intimitás: A vasútállomástól kellő távolságra van, így a vonatzaj nem zavaró.
​️ Műszaki tartalom – Időtálló minőség
​Falazat: 30 cm-es nútféderes tégla + 15 cm EPS homlokzati szigetelés.
​Födém: Fa födém, 25 cm ásványgyapot szigeteléssel.
​Tető: Antracit betoncserép fedés.
​Aljzat: 10 cm Austrotherm padlószigetelés.
​Nyílászárók: 6 légkamrás, 3 rétegű üvegezésű hőszigetelt ablakok.
​️ Modern és gazdaságos fűtés
​Rendszer: 10 kW-os monoblokkos hőszivattyú.
​Hőleadás: Teljes körű padlófűtés minden helyiségben.
​Előny: Alacsony fenntartási költség, korszerű technológia.
​️ Praktikus, családbarát elrendezés
​3 tágas különnyíló szoba.
​Tágas amerikai konyhás nappali.
​Fürdőszoba + külön WC.
​Külön háztartási helyiség a gépészetnek és mosásnak.
​ Választható burkolatok és szaniterek (keretösszegen belül)
​Saját ízlésére formálhatja otthonát az alábbi keretekkel:
​Hideg- és melegburkolatok: 5.000 Ft/m²-ig.
​Beltéri ajtók: 50.000 Ft/db.
​Csaptelepek: 25.000 Ft/db.
​Kád vagy zuhany: 70.000 Ft.
​Extrák: Falsík mögötti WC rendszer (magasabb kategória különbözet ráfizetésével kérhető).
​ Elektromos kiépítés és extrák
​Konnektorok: Szobákban 3-3 db, nappaliban 4 db, konyhában 6 db.
​Műszaki előkészítés: Kábel TV, internet, riasztórendszer és elektromos kapumozgató előkészítése az árban.
​ Megbízható kivitelező
​A kivitelező a környéken (Kóka, Sülysáp) már több mint 30 ingatlant épített fel. Komoly érdeklődés esetén referenciaházak is megtekinthetők!
​ Várható átadás: 2026. szeptember-október.
​Ha szeretné biztos, értékálló helyen tudni családja új otthonát, hívjon bizalommal! Független hitelügyintézővel is segítem a vásárlást!
Érdeklődni: Gyuga Alexandra +36706212334

Referencia szám: HZ040483

Hirdetés feltöltve: 2026. 04. 01.

Az ingatlan elhelyezkedése

Cím: Mende

Eladó ingatlanok a környékről

Szentendre
Eladó ikerház

Szentendre

718 M Ft
10 + 2 szoba
578 m²
Mende
Eladó ikerház

Mende

85 M Ft
4 szoba
94 m²
Mende
Eladó ikerház

Mende

95 M Ft
4 szoba
94 m²
Vác
Eladó ikerház

Vác

99.7 M Ft
4 + 1 szoba
129 m²
Pécel, Pécel - kertváros
Eladó ikerház

Pécel

127 M Ft
4 szoba
125 m²
Érd
Eladó ikerház

Érd

177.7 M Ft
7 szoba
181 m²
Mogyoród
Eladó ikerház

Mogyoród

135 M Ft
5 szoba
137 m²
Pomáz
Eladó ikerház

Pomáz

129.5 M Ft
4 szoba
100 m²
Mende
Eladó ikerház

Mende

85 M Ft
4 szoba
94 m²
Mende
Eladó ikerház

Mende

89.9 M Ft
4 szoba
80 m²
Kiskunlacháza
Eladó családi ház

Kiskunlacháza

89.9 M Ft
3 szoba
100 m²
Pilisborosjenő, Vár u.14
Eladó hotel

Pilisborosjenő

219 M Ft
14 szoba
521 m²
Budakalász
Eladó ikerház

Budakalász

195 M Ft
5 + 2 szoba
170 m²
Szentendre
Eladó családi ház

Szentendre

179.5 M Ft
3 szoba
188 m²
Vácrátót
Eladó ikerház

Vácrátót

94.9 M Ft
2 + 3 szoba
108 m²
Farmos, 663/7
Eladó telek

Farmos

9.9 M Ft
1 ha
0 m²
Mende
Eladó ikerház

Mende

85 M Ft
4 szoba
94 m²
Vácrátót
Eladó ikerház

Vácrátót

99.9 M Ft
3 + 2 szoba
112 m²
Mende
Eladó ikerház

Mende

89.9 M Ft
4 szoba
93 m²
Vác
Eladó ikerház

Vác

96.7 M Ft
4 + 1 szoba
126 m²
Vác
Eladó ikerház

Vác

149.9 M Ft
5 szoba
202 m²
Mende
Eladó ikerház

Mende

95 M Ft
4 szoba
94 m²
Mende
Eladó ikerház

Mende

85 M Ft
4 szoba
94 m²
Kiskunlacháza
Eladó ikerház

Kiskunlacháza

44.9 M Ft
2 szoba
39 m²

Falusi CSOK ingatlanok

Újszilvás
Eladó családi ház

Újszilvás

49.9 M Ft
8 szoba
310 m²
Verseg
Eladó családi ház

Verseg

35 M Ft
1 + 1 szoba
42 m²
Mád
Eladó családi ház

Mád

48 M Ft
3 szoba
181 m²
Csemő
Eladó családi ház

Csemő

61.9 M Ft
3 szoba
88 m²
Ceglédbercel
Eladó családi ház

Ceglédbercel

79.9 M Ft
5 szoba
140 m²
Nyáregyháza
Eladó családi ház

Nyáregyháza

114.99 M Ft
7 szoba
267 m²
Bakóca
Eladó családi ház

Bakóca

500 M Ft
13 szoba
1860 m²
Bogács
Eladó családi ház

Bogács

64.95 M Ft
7 szoba
125 m²