Metrodom

Eladó ikerház
Kiskunlacháza

52 900 000 Ft52.9 M Ft 1 125 532 Ft/m2
2 szoba
47 m2
építés éve:2026

Részletes adatok

Telekméret: 200 m2
Fűtés: Egyéb
Parkolás: Kocsibeálló
Közmű: Víz, Villany, Csatorna
Energetikai besorolás: Nem adta meg a hirdető

Az OTP Bank lakáshitel ajánlataFizetett hirdetés

+36 20 227
Ingatlan-Sziget Ingatlan és Hiteliroda
Belák Ilona Kinga - Ingatlan-Sziget

Érdekel az OTP Bank kedvezményes lakáshitel ajánlata? *

* A kérdésre „Igen” válasz bejelölése esetén, az „Üzenet küldése” gombra kattintva kijelentem, hogy az OTP Bank Nyrt. Adatkezelési tájékoztatójának tartalmát megismertem és tudomásul vettem.

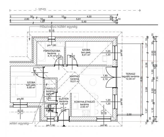
Eladó ikerház leírása

Ha egy olyan helyet keres, ahol a város zaja már csak távoli emlék, de a főváros mégis könnyen elérhető, akkor ez az új építésű ikerház tökéletes választás lehet.
Itt minden részletet a kényelmes, energiatakarékos és hosszú távon fenntartható élet jegyében terveztek.

Főbb jellemzők:
- Falazat: 30 N+F Porotherm tégla
- Szigetelés:
-homlokzat: 10 cm
-födém: 30 cm
-lábazat: 10 cm
-padló: 10 cm
- Bramac Betoncserép
- 47 m² gondosan megtervezett lakótér
- 12 m² fedett terasz, ahol reggelente jól esik megállni egy kávéra
- Világos, amerikai konyhás nappali + 2 külön nyíló szoba
- Hőszivattyús padlófűtés – korszerű és környezetbarát megoldás
- 3 rétegű üvegezés, modern szigetelés – alacsony fenntartási költség
- 200 m² saját, parkosított telekrész


Megbízható, tapasztalt kivitelezőtől, referenciákkal

Az otthon minden részlete a praktikum és letisztultság harmóniáját tükrözi.
A tágas, napfényes terek és a modern anyaghasználat igazi melegséget visznek az új élettérbe – ahol minden nap jó lesz hazaérni.

Ideális választás családoknak, fiatal pároknak vagy azoknak, akik szeretnének egy csendes, biztonságos környéken élni, kompromisszumok nélkül.

Kiskunlacháza – nyugodt kertvárosi környezet, Budapest közelségével.
Vegye fel velünk a kapcsolatot, és ismerje meg személyesen ezt a hangulatos, új otthont!

Hirdetés feltöltve: 2026. 01. 24. Utoljára módosítva: 2026. 01. 24.

2 szobás ikerházak ára Kiskunlacházán

Ebből az összehasonlításból megtudhatod, hogyan viszonyul a lakás ára a környékbeli ikerházak átlagos árához. Ez nem azt jelenti, hogy ennyivel olcsóbb vagy drágább, mint amennyit a lakás ér, hanem hogy ennyivel tér el a környékbeli átlagtól.

Ennek a m² ára
Kiskunlacháza m² ár
1126 e Ft
849 e Ft -33%
Ennek az ára
Kiskunlacháza átlagár
52.9 M Ft m Ft
73 m Ft 28%

Az ingatlan elhelyezkedése

Cím: Kiskunlacháza

Eladó ikerházak a környékről

Eladó ikerház
Eladó ikerház

Szentendre

179 M Ft
5 + 1 szoba
147 m2
Eladó ikerház
Eladó ikerház

Kiskunlacháza

89.9 M Ft
4 szoba
99 m2
Eladó ikerház
Eladó ikerház

Kiskunlacháza

69.9 M Ft
3 szoba
82 m2
Eladó ikerház
Eladó ikerház

Kiskunlacháza

75 M Ft
4 szoba
89 m2
Eladó ikerház
Eladó ikerház

Vác

99.7 M Ft
4 + 1 szoba
129 m2
Eladó ikerház
Eladó ikerház

Kiskunlacháza

89.9 M Ft
4 szoba
99 m2
Eladó ikerház
Eladó ikerház

Kiskunlacháza

67.25 M Ft
4 szoba
67 m2
Eladó ikerház
Eladó ikerház

Kiskunlacháza

68.9 M Ft
5 szoba
90 m2
Eladó ikerház
Eladó ikerház

Mogyoród, Fóti út

188 M Ft
6 szoba
182 m2
Eladó ikerház
Eladó ikerház

Kiskunlacháza

66.8 M Ft
4 szoba
91 m2
Eladó ikerház
Eladó ikerház

Kiskunlacháza

87.9 M Ft
4 szoba
99 m2
Eladó ikerház
Eladó ikerház

Érd, Érdligeten található utca

64.9 M Ft
4 szoba
112 m2
Eladó ikerház
Eladó ikerház

Pécel

149.9 M Ft
5 szoba
306 m2
Eladó ikerház
Eladó ikerház

Kiskunlacháza

76 M Ft
5 szoba
102 m2
Eladó ikerház
Eladó ikerház

Kiskunlacháza

89.9 M Ft
4 szoba
99 m2
Eladó ikerház
Eladó ikerház

Kiskunlacháza

75 M Ft
4 szoba
89 m2
Eladó ikerház
Eladó ikerház

Kiskunlacháza

71 M Ft
4 szoba
82 m2
Eladó ikerház
Eladó ikerház

Kiskunlacháza

71 M Ft
4 szoba
88 m2
Eladó ikerház
Eladó ikerház

Kiskunlacháza

87.9 M Ft
4 szoba
99 m2
Eladó ikerház
Eladó ikerház

Kiskunlacháza

72 M Ft
4 szoba
90 m2
Eladó ikerház
Eladó ikerház

Pomáz

129.5 M Ft
4 szoba
100 m2
Eladó ikerház
Eladó ikerház

Üröm

220 M Ft
4 szoba
130 m2
Eladó ikerház
Eladó ikerház

Mogyoród

135 M Ft
5 szoba
137 m2
Eladó ikerház
Eladó ikerház

Pécel, Pécel - kertváros

127 M Ft
4 szoba
125 m2

Falusi CSOK ingatlanok

Eladó családi ház
Eladó családi ház

Tab

58.5 M Ft
4 szoba
80 m2
Eladó családi ház
Eladó családi ház

Badacsonytördemic

180.95 M Ft
4 szoba
160 m2
Eladó családi ház
Eladó családi ház

Úri, Fő utca

99 M Ft
6 szoba
150 m2
Eladó családi ház
Eladó családi ház

Kaposgyarmat

695 M Ft
6 szoba
610 m2
Eladó családi ház
Eladó családi ház

Törtel

59.9 M Ft
3 szoba
66 m2
Eladó családi ház
Eladó családi ház

Balatonudvari

79.9 M Ft
4 szoba
97 m2
Eladó családi ház
Eladó családi ház

Balatonszárszó

178 M Ft
6 szoba
260 m2
Eladó családi ház
Eladó családi ház

Kesztölc

37.9 M Ft
3 szoba
75 m2