Seven Pearl

Eladó ikerház
Kiskunlacháza, földszint

54 000 000 Ft54 M Ft 666 667 Ft/m2
5 szoba
81 m2
földszint
építés éve:2024

Részletes adatok

Telekméret: 825 m2
Fűtés: Egyéb
Parkolás: Kocsibeálló
Közmű: Víz, Villany, Csatorna
Energetikai besorolás: Nem adta meg a hirdető

Az OTP Bank lakáshitel ajánlataFizetett hirdetés

+36 30 757
Bernát Ágnes
Leéb és Fia Ingatlanközvetítő Iroda

Érdekel az OTP Bank kedvezményes lakáshitel ajánlata? *

* A kérdésre „Igen” válasz bejelölése esetén, az „Üzenet küldése” gombra kattintva kijelentem, hogy az OTP Bank Nyrt. Adatkezelési tájékoztatójának tartalmát megismertem és tudomásul vettem.

Eladó ikerház leírása

Közvetlen a beruházótól új építésű ikerházak!
Az ingatlanokra Hitel, CSOK, illetékmentesség igényelhető.

Kiskunlacháza csendes részén, de mégis karnyújtásnyira a központtól kínálunk új építésű ikerházi ingatlanokat saját használatú telekkel.
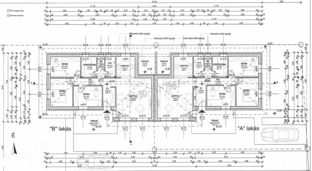
Az "A" lakás nettó 81 nm, bruttó 100 nm nagyságú, saját telek része 255 nm. A lakás elrendezése: tároló, előtér, kamra, kert és teraszkapcsolatos amerikai konyhás étkező-nappali, háztartási helyiség, 3 hálószoba, fürdő/wc és egy külön wc, tároló.
Kulcsrakész ára: 54 M Ft.

A "B" lakás nettó 81 nm, bruttó 100 nm nagyságú, a saját telekrész 830 nm. Elrendezése: tároló, előtér, kamra, kert és teraszkapcsolatos amerikai konyhás étkező-nappali, háztartási helyiség, 3 hálószoba, fürdő/wc és egy külön wc.
Kulcsrakész ár: 54 M Ft.

A projekt remek helyen épül, ovi, sulik, bevásárlás, buszmegállók kb.: 10 perces sétán belül elérhetők.

Az ingatlan céges kivitelezésben épül, babaváró hitelből, Csok-ból, hitelből egyaránt finanszírozható, 5 % Áfa és 4 % illetékmentesen megvásárolható ingatlan.
Hitelben, Csok-ban ingyenes segítséget biztosítunk.

Részletekért kérem keressen bizalommal, amennyiben épp nem tudom fogadni hívását vissza fogom hívni.

Hirdetés feltöltve: 2024. 10. 02. Utoljára módosítva: 2026. 01. 13.

5 szobás ikerházak ára Kiskunlacházán

Ebből az összehasonlításból megtudhatod, hogyan viszonyul a lakás ára a környékbeli ikerházak átlagos árához. Ez nem azt jelenti, hogy ennyivel olcsóbb vagy drágább, mint amennyit a lakás ér, hanem hogy ennyivel tér el a környékbeli átlagtól.

Ennek a m² ára
Kiskunlacháza m² ár
667 e Ft
715 e Ft 7%
Ennek az ára
Kiskunlacháza átlagár
54 M Ft m Ft
75.8 m Ft 29%

Az ingatlan elhelyezkedése

Cím: Kiskunlacháza, földszint

Eladó ikerházak a környékről

Eladó ikerház
Eladó ikerház

Érd, Érdligeten található utca

64.9 M Ft
4 szoba
112 m2
Eladó ikerház
Eladó ikerház

Mogyoród

135 M Ft
5 szoba
137 m2
Eladó ikerház
Eladó ikerház

Kiskunlacháza

69.9 M Ft
3 szoba
82 m2
Eladó ikerház
Eladó ikerház

Kiskunlacháza

87.9 M Ft
4 szoba
99 m2
Eladó ikerház
Eladó ikerház

Kiskunlacháza

75 M Ft
4 szoba
89 m2
Eladó ikerház
Eladó ikerház

Kiskunlacháza

75 M Ft
4 szoba
89 m2
Eladó ikerház
Eladó ikerház

Kiskunlacháza

71 M Ft
4 szoba
82 m2
Eladó ikerház
Eladó ikerház

Pécel, Pécel - kertváros

127 M Ft
4 szoba
125 m2
Eladó ikerház
Eladó ikerház

Kiskunlacháza

89.9 M Ft
4 szoba
99 m2
Eladó ikerház
Eladó ikerház

Kiskunlacháza

76 M Ft
5 szoba
102 m2
Eladó ikerház
Eladó ikerház

Kiskunlacháza

71 M Ft
4 szoba
88 m2
Eladó ikerház
Eladó ikerház

Pilisjászfalu

70.563 M Ft
4 szoba
61 m2
Eladó ikerház
Eladó ikerház

Szentendre

179 M Ft
5 + 1 szoba
147 m2
Eladó ikerház
Eladó ikerház

Kiskunlacháza

65 M Ft
5 szoba
93 m2
Eladó ikerház
Eladó ikerház

Pomáz

129.5 M Ft
4 szoba
100 m2
Eladó ikerház
Eladó ikerház

Kiskunlacháza

87.9 M Ft
4 szoba
99 m2
Eladó ikerház
Eladó ikerház

Kiskunlacháza

38.7 M Ft
1 + 2 szoba
47 m2
Eladó ikerház
Eladó ikerház

Szentendre

359 M Ft
5 + 1 szoba
289 m2
Eladó ikerház
Eladó ikerház

Veresegyház

145 M Ft
4 szoba
120 m2
Eladó ikerház
Eladó ikerház

Pécel

149.9 M Ft
5 szoba
306 m2
Eladó ikerház
Eladó ikerház

Kiskunlacháza

87.9 M Ft
4 szoba
99 m2
Eladó ikerház
Eladó ikerház

Kiskunlacháza

87.9 M Ft
4 szoba
99 m2
Eladó ikerház
Eladó ikerház

Vác

175.356 M Ft
5 szoba
165 m2
Eladó ikerház
Eladó ikerház

Pécel, Pécel

144.9 M Ft
6 szoba
200 m2

Falusi CSOK ingatlanok

Eladó családi ház
Eladó családi ház

Mezőfalva

39 M Ft
3 szoba
77 m2
Eladó családi ház
Eladó családi ház

Nagypall, Szabadság utca

35.9 M Ft
3 szoba
125 m2
Eladó családi ház
Eladó családi ház

Bár

89.5 M Ft
4 + 1 szoba
172 m2
Eladó családi ház
Eladó családi ház

Bátmonostor

22.9 M Ft
3 szoba
82 m2
Eladó családi ház
Eladó családi ház

Ráksi

69.9 M Ft
4 szoba
139 m2
Eladó családi ház
Eladó családi ház

Somogyszil

27.9 M Ft
3 szoba
140 m2
Eladó családi ház
Eladó családi ház

Őriszentpéter

29.8 M Ft
1 szoba
44 m2
Eladó családi ház
Eladó családi ház

Kenyeri

21.8 M Ft
2 szoba
75 m2