Astora Olive Club House

Eladó ikerház
Kartal

+ 4 kép 1/7
67 900 000 Ft67.9 M Ft 692 857 Ft/m2
4 szoba
98 m2
építés éve:2026

Részletes adatok

Telekméret: 300 m2
Fűtés: Egyéb
Közmű: Víz, Villany, Csatorna
Energetikai besorolás: Nem adta meg a hirdető

Az OTP Bank lakáshitel ajánlataFizetett hirdetés

+36 70 418
Kovács Péter
referens

Érdekel az OTP Bank kedvezményes lakáshitel ajánlata? *

* A kérdésre „Igen” válasz bejelölése esetén, az „Üzenet küldése” gombra kattintva kijelentem, hogy az OTP Bank Nyrt. Adatkezelési tájékoztatójának tartalmát megismertem és tudomásul vettem.

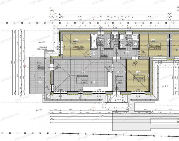
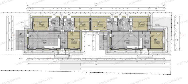
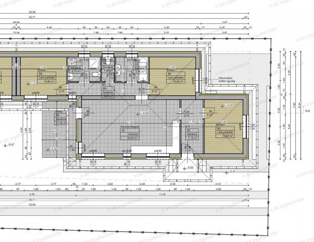
Eladó ikerház leírása

Új építésű, földszintes, ikerház mindkét fele eladó Kartalon!

A 783 nm-es telekre épülő ház utcafronti lakásának lakótere 91,75 nm + 11,44 nm terasz, amerikai-konyhás nappali + 3 szobás, dél-nyugati tájolású, dupla-komfortos, 300 nm-es kizárólagos használatú telekrésszel rendelkezik.

CÉGES ÉPÍTKEZÉS, a 2024-től aktuális állami támogatások valamint kedvezményes, kamattámogatott hitelek felvehetőek.
Az építő munkájára jellemző a megbízhatóság és igényesség, leinformálható, referencia házai megtekinthetők.

HELYISÉGLISTA:
szélfogó 3 nm, előszoba 7,14 nm, nappali – konyha - étkező 32 nm, 3 szoba 10,8 - 11,31 - 12,6 nm, fürdőszoba 4,75 nm, háztartási helyiség 4,75 nm, közlekedő 6,5 nm, külön WC 1,9 nm, terasz 11,44 nm.

Rövid műszaki tartalom:
A ház falai 30 cm-es TÉGLÁBÓL épülnek + 10 cm dryvit szigeteléssel.
A tető beton cserépfedést kap.
Az ablakok műanyag szerkezettel, thermo üveggel kerülnek beépítésre.

A fűtés hőszivattyúval kerül kialakításra, padlófűtéssel történő hő leadással.
A hűtésről 2 db hűtő-fűtő, fali klíma fog gondoskodni.

Parkolás: zárt udvari gépkocsi beállón

A szobákban laminált parketta, a vizes helyiségekben kerámia lapok kerülnek, a belső műszaki tartalomban feltüntetett összegig a vételár részét képezve.

Infrastruktúra: csendes, aszfaltozott, mellékutcában található, a közelben megtalálható óvoda, iskola, élelmiszerbolt. A buszmegálló gyalogosan 10 perc alatt megközelíthető

A belső lakás is elérhető 500 nm-es telekrésszel 69,9 Ft

Ára: 67.900.000.- Ft
Azonosító: 4628/1

Hirdetés feltöltve: 2026. 01. 06. Utoljára módosítva: 2026. 01. 07.

Az ingatlan elhelyezkedése

Cím: Kartal

Eladó ingatlanok a környékről

Eladó hotel
Eladó hotel

Kisnémedi

110 M Ft
11 szoba
249 m2
Eladó ikerház
Eladó ikerház

Vác

175.356 M Ft
5 szoba
165 m2
Eladó ikerház
Eladó ikerház

Vác

175.356 M Ft
5 szoba
165 m2
Eladó ikerház
Eladó ikerház

Vác

149.9 M Ft
5 szoba
202 m2
Eladó ikerház
Eladó ikerház

Gyál

149 M Ft
6 szoba
150 m2
Eladó ikerház
Eladó ikerház

Dunakeszi

149 M Ft
1 + 4 szoba
127 m2
Eladó téglalakás
Eladó téglalakás

Leányfalu

81 M Ft
4 szoba
126 m2
Eladó ikerház
Eladó ikerház

Szentendre

359 M Ft
5 + 1 szoba
289 m2
Eladó ikerház
Eladó ikerház

Szentendre

359 M Ft
5 szoba
289 m2
Eladó családi ház
Eladó családi ház

Verőce

110 M Ft
3 + 2 szoba
105 m2
Eladó ikerház
Eladó ikerház

Diósd

213.46 M Ft
5 szoba
186 m2
Eladó családi ház
Eladó családi ház

Monorierdő

72.9 M Ft
3 szoba
110 m2
Eladó családi ház
Eladó családi ház

Szigetmonostor

69.5 M Ft
2 szoba
70 m2
Eladó családi ház
Eladó családi ház

Visegrád

125 M Ft
3 + 2 szoba
180 m2
Eladó családi ház
Eladó családi ház

Vecsés

40 M Ft
4 szoba
100 m2
Eladó ikerház
Eladó ikerház

Pomáz

129.5 M Ft
4 szoba
100 m2
Eladó ikerház
Eladó ikerház

Pusztazámor

55 M Ft
10 szoba
470 m2
Eladó ikerház
Eladó ikerház

Pomáz

122.9 M Ft
5 szoba
115 m2
Eladó családi ház
Eladó családi ház

Dánszentmiklós

67.9 M Ft
3 + 1 szoba
200 m2
Eladó családi ház
Eladó családi ház

Szigetmonostor

89 M Ft
1 + 2 szoba
80 m2
Eladó ikerház
Eladó ikerház

Vác

94.5 M Ft
4 + 1 szoba
126 m2
Eladó családi ház
Eladó családi ház

Leányfalu, 26HL2733

48 M Ft
3 szoba
126 m2
Eladó ikerház
Eladó ikerház

Mogyoród, Fóti út

188 M Ft
6 szoba
182 m2
Eladó nyaraló
Eladó nyaraló

Kismaros

30 M Ft
1 + 1 szoba
20 m2

Falusi CSOK ingatlanok

Eladó családi ház
Eladó családi ház

Tápiógyörgye

44.9 M Ft
3 + 1 szoba
120 m2
Eladó családi ház
Eladó családi ház

Tokodaltáró

95 M Ft
7 szoba
220 m2
Eladó családi ház
Eladó családi ház

Baksa

61.99 M Ft
3 szoba
100 m2
Eladó családi ház
Eladó családi ház

Kenyeri

39.9 M Ft
3 szoba
94 m2
Eladó családi ház
Eladó családi ház

Tapsony

23.8 M Ft
3 szoba
130 m2
Eladó családi ház
Eladó családi ház

Somodor

8.9 M Ft
2 szoba
64 m2
Eladó családi ház
Eladó családi ház

Murony

19.9 M Ft
3 szoba
94 m2
Eladó családi ház
Eladó családi ház

Maráza

29.9 M Ft
3 szoba
96 m2