Kedves Felhasználónk! Rendszerfrissítés miatt az oldalunk 2026. február 9-én 12 órától várhatóan 20 óráig nem lesz elérhető. Köszönjük megértésed!
River Life

Eladó ikerház
Kartal

+ 5 kép 1/8
60 000 000 Ft60 M Ft 740 741 Ft/m2
4 szoba
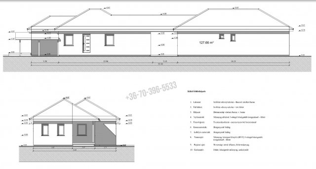
81 m2
építés éve:2026

Részletes adatok

Telekméret: 500 m2
Fűtés: Egyéb
Parkolás: Kocsibeálló
Közmű: Víz, Villany, Csatorna
Energetikai besorolás: Nem adta meg a hirdető

Az OTP Bank lakáshitel ajánlataFizetett hirdetés

+36 70 396
Kómár-Benke Nikoletta
referens

Érdekel az OTP Bank kedvezményes lakáshitel ajánlata? *

* A kérdésre „Igen” válasz bejelölése esetén, az „Üzenet küldése” gombra kattintva kijelentem, hogy az OTP Bank Nyrt. Adatkezelési tájékoztatójának tartalmát megismertem és tudomásul vettem.

Eladó ikerház leírása

Pest Vármegyében, Gödöllőtől mindössze 15 percre Kartalon, aszfaltozott utcában, eladásra kínálok egy 900 nm-es telekre tervezett ikerházat.

AZ INGATLANOK GARÁZSON KERESZTŰL KAPCSOLÓDNAK EGYMÁSHOZ.
Mindkét házat földszintesre tervezték.

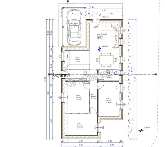
Hátsó ház jellemzői:
- 500 nm-es kert
- 81 nm- es ház + terasz
- tágas előtér (8.44 nm)
- mellékhelyiség (1,6 nm)
- 3 szoba (12,97 nm, 10.26 nm, 10.08 nm)
- nappali, étkező, konyha (31.21nm)
- spejz (2,24 nm)
- fürdőszoba (4 nm)
- fedett beálló
Vételár: 60.000.000 Ft.

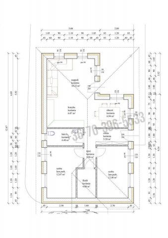
Első ház jellemzői:
- 400 nm-es kert
- nettó 70 nm ház + terasz
- tágas előtér (5,28 nm)
- mellékhelyiség + háztartási helyiség (4,48 nm)
- szoba (12, nm, 12.07 nm)
- nappali+étkező+konyha (31.23 nm)
- fürdőszoba (4 nm)
Vételár: 55.000.000 Ft.

Mind két ingatlan minőségi anyagokból épül, energiatakarékos, hőszivattyús fűtéssel, hőleadás padlófűtés. Részletes tájékoztatást, műszaki leírást és vállalást e-mail címre továbbítok.

Kert:
- körbe kerítve (zsaluköves kerítés)
- kis és nagykapu
- térkövezett járda és parkoló
- két ház között drótháló
- építési törmelékektől megtisztítva kerül átadásra

A közelben minden…
- Élelmiszerboltok, patika, posta
- Iskola, óvoda, buszmegálló, M3
Az ingatlan rugalmasan megtekinthető, 3%-os otthon Start hitel és további piaci alapú hitel igénybe vehető a vásárlásnál.
Kulcsátadás szerződés aláírásától számítva 6 hónap.
Ezekkel támogatom a vásárlást:
- teljes körű DÍJMENTES hitelügyintézés
- ügyvédi háttértámogatás

Portfóliómban további igényes, új építésű ingatlanok várják. A Referens további hirdetései gombra kattintva érheti el őket.

Keressen bizalommal.

Hirdetés feltöltve: 2025. 12. 02. Utoljára módosítva: 2026. 01. 13.

Az ingatlan elhelyezkedése

Cím: Kartal

Eladó ingatlanok a környékről

Eladó ikerház
Eladó ikerház

Erdőkertes

95 M Ft
5 szoba
106 m2
Eladó ikerház
Eladó ikerház

Csörög

89.9 M Ft
5 szoba
108 m2
Eladó nyaraló
Eladó nyaraló

Biatorbágy, Vizipók

21.9 M Ft
2 szoba
40 m2
Eladó családi ház
Eladó családi ház

Pécel

126.5 M Ft
3 szoba
150 m2
Eladó ikerház
Eladó ikerház

Erdőkertes

82.9 M Ft
4 szoba
105 m2
Eladó ikerház
Eladó ikerház

Szentendre

718 M Ft
10 + 2 szoba
578 m2
Eladó ikerház
Eladó ikerház

Vácrátót

99.9 M Ft
3 + 2 szoba
112 m2
Eladó ikerház
Eladó ikerház

Szentendre

179 M Ft
5 + 1 szoba
147 m2
Eladó ikerház
Eladó ikerház

Kiskunlacháza

41 M Ft
2 szoba
39 m2
Eladó ikerház
Eladó ikerház

Kartal

55 M Ft
3 szoba
70 m2
Eladó ikerház
Eladó ikerház

Vác

149.9 M Ft
5 szoba
202 m2
Eladó családi ház
Eladó családi ház

Páty, Hunyadi utca

75 M Ft
2 szoba
60 m2
Eladó ikerház
Eladó ikerház

Kartal

67.9 M Ft
4 szoba
98 m2
Eladó ikerház
Eladó ikerház

Vác

89.9 M Ft
4 szoba
91 m2
Eladó ikerház
Eladó ikerház

Szentendre

359 M Ft
5 + 1 szoba
289 m2
Eladó családi ház
Eladó családi ház

Szada

169.9 M Ft
7 szoba
220 m2
Eladó ikerház
Eladó ikerház

Aszód

84.9 M Ft
4 szoba
92 m2
Eladó téglalakás
Eladó téglalakás

Gödöllő

57.9 M Ft
2 szoba
56 m2
Eladó ikerház
Eladó ikerház

Mogyoród

135 M Ft
5 szoba
137 m2
Eladó ikerház
Eladó ikerház

Érd

177.7 M Ft
7 szoba
181 m2
Eladó ikerház
Eladó ikerház

Vecsés

198 M Ft
5 szoba
141 m2
Eladó ikerház
Eladó ikerház

Vácrátót

94.9 M Ft
2 + 3 szoba
108 m2
Eladó családi ház
Eladó családi ház

Erdőkertes

89.9 M Ft
1180 m²
100 m2
Eladó ikerház
Eladó ikerház

Őrbottyán

89.9 M Ft
4 szoba
90 m2

Falusi CSOK ingatlanok

Eladó családi ház
Eladó családi ház

Bogács

62 M Ft
3 szoba
66 m2
Eladó családi ház
Eladó családi ház

Elek

85.9 M Ft
5 szoba
274 m2
Eladó családi ház
Eladó családi ház

Németkér

149.9 M Ft
2 szoba
540 m2
Eladó családi ház
Eladó családi ház

Gátér, Dózsa György utca 43

21.62 M Ft
1 + 1 szoba
153 m2
Eladó családi ház
Eladó családi ház

Újhartyán

89.9 M Ft
4 szoba
99 m2
Eladó téglalakás
Eladó téglalakás

Balatonszemes

119.9 M Ft
2 szoba
81 m2
Eladó családi ház
Eladó családi ház

Pécsvárad

69.9 M Ft
3 szoba
120 m2
Eladó családi ház
Eladó családi ház

Pápakovácsi

79.9 M Ft
4 szoba
210 m2