Aerogate Homes

Eladó ikerház
Kartal

+ 1 kép 1/4
77 500 000 Ft77.5 M Ft 668 103 Ft/m2
4 szoba
116 m²
építés éve:2026

Részletes adatok

Telekméret: 300 m2
Fűtés: Gázkazán
Közmű: Víz, Gáz, Villany, Csatorna
Komfort: Duplakomfortos
Energetikai besorolás: Nem adta meg a hirdető

Az OTP Bank lakáshitel ajánlataFizetett hirdetés

+36 20 772
Sápi Balázs
Gödöllő Ingatlanközpont Kft.

Érdekel az OTP Bank kedvezményes lakáshitel ajánlata? *

* A kérdésre „Igen” válasz bejelölése esetén, az „Üzenet küldése” gombra kattintva kijelentem, hogy az OTP Bank Nyrt. Adatkezelési tájékoztatójának tartalmát megismertem és tudomásul vettem.

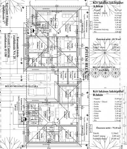
Eladó ikerház leírása

Kartal központhoz közeli részén gyönyörű, természetközeli környezetben referenciákkal rendelkező kivitelező által épülő nappali + 3 szobás, tárolókapcsolatos ikerházfél eladó!
A bruttó 116, nettó 88nm-es házban előszoba, világos konyha-étkező, nappali, beépített gardróbos közlekedő, 3 különnyíló szoba, fürdőszoba, vendégmosdó és egy háztartási helyiség kerül kialakításra zuhanyzóval, ill. tartozik hozzá 5nm-es tároló, egy 2,7nm fedett és egy 15nm nyitott terasz is.
A telek szélessége 35 méter így mindkét ház utcafronton helyezkedik el 300-300nm telekrésszel, külön kapubejárattal. Aszfaltozott, forgalommentes utca, a környéket családbarát lakóközösség jellemzi.
Parkolás 20nm faszerkezetű pergolával fedett kocsibeállóval megoldott.
Műszaki adatok:
- 30-as PTH tégla falazat,
- 15cm homlokzati szigetelés,
- betoncserépfedés,
- horganyzott, színezett csatornarendszer,
- 12cm aljzat- és lábazati szigetelés,
- 3 réteg thermo üvegezű, kívül színezett minőségi nyílászárók,
- gázcirkó padlófűtéses hőleadással,
- 2db fűtő-hűtő klíma,
- 1db falra szerelhető törölközőszáritó,
- riasztóberendezés előkészítés,
- elektromoskapu kiállás
- energetikai besorolás: A.
Ár tartalmazza:
- csaptelepeket 25.000.-Ft /db,
- mosdókat 20.000.-Ft /db,
- 2db alsókifolyós wc falra szerelhető öblítőtartállyal 30.000.-Ft /db,
- klímákat 600.000.-Ft,
- gázcirkós fűtésrendszer 300.000.-Ft,
- bejárati ajtót 150.000.-Ft,
- beltéri ajtókat, kilincsekkel együtt 40.000.-Ft/db,
- laminált padlót 5.000.-Ft/nm,
- hideg burkolatokat 6.000.-Ft/nm értékben.
Burkolatok, belső és külső falak, cserépfedés, nyílászárók, valamint a csatornarendszer színei megbeszélés alapján szabadon választhatók.
Az ingatlant számos referenciával rendelkező kivitelező építi! 3%-os Otthon Start hitel, CSOK+ és ehhez kapcsolódó kedvezmények igénybe vehetők! Ügyvédi és földhivatali költségeket az eladó vállalja.
Szerződéskötéstől számolva 6-8 hónap a kulcsrakész átadási határidő!
Kérésre teljes műszaki tartalmat, alaprajzot szívesen küldünk!
Irányár: 77,5MFt (A két ház együtt 155MFt)
Hivatkozási szám: 2518294.
Megtekinthető telefonos időpont egyeztetés alapján:
Sápi Balázs +36 20 772-2429 sapibalazs@godolloi.hu
GÖDÖLLŐ INGATLANKÖZPONT - www.godolloi.hu: Gödöllő és környéke legnagyobb ingatlan választéka /Gödöllő, Szada, Veresegyház, Kistarcsa, Kerepes, Erdőkertes, Fót, Dunakeszi/ eladó-kiadó családi ház, telek, lakás! Ingatlan építés és felújítás!

Hirdetés feltöltve: 2026. 04. 01. Utoljára módosítva: 2026. 05. 12.

Az ingatlan elhelyezkedése

Cím: Kartal

Eladó ingatlanok a környékről

Vác
Eladó ikerház

Vác

99.7 M Ft
4 + 1 szoba
129 m²
Mogyoród
Eladó ikerház

Mogyoród

135 M Ft
5 szoba
137 m²
Mogyoród
Eladó családi ház

Mogyoród

129.9 M Ft
6 szoba
170 m²
Vác
Eladó ikerház

Vác

149.9 M Ft
5 szoba
202 m²
Mogyoród
Eladó ikerház

Mogyoród

135 M Ft
5 szoba
137 m²
Nagytarcsa
Eladó ikerház

Nagytarcsa

119.9 M Ft
4 szoba
134 m²
Szigetszentmiklós
Eladó családi ház

Szigetszentmiklós

40 M Ft
2 szoba
70 m²
Kartal
Eladó ikerház

Kartal

63 M Ft
4 szoba
81 m²
Kartal
Eladó ikerház

Kartal

77.5 M Ft
1 + 3 szoba
75 m²
Kartal
Eladó ikerház

Kartal

63 M Ft
4 szoba
81 m²
Albertirsa
Eladó családi ház

Albertirsa

33 M Ft
2 szoba
70 m²
Hernád
Eladó ikerház

Hernád

41.3 M Ft
3 szoba
68 m²
Ráckeve
Eladó családi ház

Ráckeve

76.5 M Ft
4 szoba
105 m²
Kiskunlacháza
Eladó ikerház

Kiskunlacháza

44.9 M Ft
2 szoba
39 m²
Érd
Eladó ikerház

Érd

160 M Ft
6 szoba
148 m²
Pécel
Eladó ikerház

Pécel

389 M Ft
11 szoba
430 m²
Nagytarcsa
Eladó családi ház

Nagytarcsa

115 M Ft
6 szoba
193 m²
Mogyoród
Eladó családi ház

Mogyoród

63.9 M Ft
3 szoba
55 m²
Biatorbágy
Eladó sorház

Biatorbágy

139.9 M Ft
4 szoba
99 m²
Kartal
Eladó ikerház

Kartal

77.5 M Ft
1 + 3 szoba
75 m²
Pécel
Eladó ikerház

Pécel

149.9 M Ft
5 szoba
306 m²
Leányfalu
Eladó családi ház

Leányfalu

142 M Ft
3 + 1 szoba
237 m²
Pócsmegyer
Eladó családi ház

Pócsmegyer

129 M Ft
4 szoba
101 m²
Kartal
Eladó ikerház

Kartal

80 M Ft
4 szoba
116 m²

Falusi CSOK ingatlanok

Hegyeshalom, Margaréta utca 12
Eladó téglalakás

Hegyeshalom

35.92 M Ft
1 szoba
31 m²
Vid
Eladó családi ház

Vid

29.99 M Ft
4 szoba
100 m²
Hegyeshalom, Margaréta utca 12
Eladó téglalakás

Hegyeshalom

32.89 M Ft
1 szoba
27 m²
Zagyvarékas, Erdő utca 16
Eladó családi ház

Zagyvarékas

0.1 M Ft
2 szoba
113 m²
Andornaktálya
Eladó családi ház

Andornaktálya

35.9 M Ft
2 + 2 szoba
840 m²
Szentmártonkáta
Eladó családi ház

Szentmártonkáta

59.99 M Ft
6 szoba
117 m²
Verseg
Eladó családi ház

Verseg

69.9 M Ft
4 szoba
0 m²
Balatonszemes
Eladó téglalakás

Balatonszemes

110.9 M Ft
2 szoba
0 m²