Aerogate Homes

Eladó ikerház
Győrság

Figyelem!

Ez az ingatlan a 2019.07.01-től induló falusi CSOK által támogatott településen található

1/2
54 900 000 Ft54.9 M Ft 807 353 Ft/m2
3 szoba
68 m²

Részletes adatok

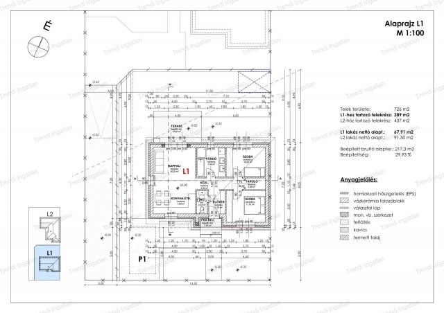
Telekméret: 289 m2
Fűtés: Gázkazán
Közmű: Víz, Gáz, Villany, Csatorna
Energetikai besorolás: Nem adta meg a hirdető

Az OTP Bank lakáshitel ajánlataFizetett hirdetés

+36 70 886
Neizer Éva
Trendi Ingatlan

Érdekel az OTP Bank kedvezményes lakáshitel ajánlata? *

* A kérdésre „Igen” válasz bejelölése esetén, az „Üzenet küldése” gombra kattintva kijelentem, hogy az OTP Bank Nyrt. Adatkezelési tájékoztatójának tartalmát megismertem és tudomásul vettem.

Eladó ikerház leírása

Nappali + 2 szobás ház eladó!
Győrság új építésű részén 67,91 nm-es ikerház 289 nm-es telekrészen fűtéskész állapotban eladó. A két ház önállóan megközelíthető, nincs közös fal.
A remek elosztású házban amerikai konyhás nappali, 2 szoba, fürdőszoba, külön WC, tároló, közlekedő, előtér található. A nappaliból elérhető 13,82 nm-es terasz. A ház belső elrendezése készültségi fokhoz mérten még változtatható.
A ház 30-as falazóelemből, 15 cm-es homlokzati szigeteléssel, 3 rétegű műanyag, hőszigetelt üvegezésű nyílászárókkal kerül kivitelezésre. Az ingatlan fűtését kondenzációs kazán biztosítja padlófűtéssel. Hűtéséről klíma gondoskodik. Felár ellenében hőszivattyús fűtés, kerti csap, riasztó-előkészítés, redőny-előkészítés, térkövezés stb. kérhető.
Várható átadás: 2026 ősz-tél
Az ingatlan fűtéskész ára: 54.900.000 Ft. Az ár tartalmazza a telek árát is.
Kulcsrakész befejezés kérhető.
Bővebb információkért forduljon hozzám bizalommal.
Hétköznap és hétvégén is várom hívását!
Díjmentes, bankfüggetlen hitelügyintézéssel állunk rendelkezésére.

Hirdetés feltöltve: 2026. 03. 07. Utoljára módosítva: 2026. 05. 12.

Az ingatlan elhelyezkedése

Cím: Győrság

Eladó ingatlanok a környékről

Győrság
Eladó ikerház

Győrság

64.9 M Ft
4 szoba
92 m²
Fertőszentmiklós
Eladó ikerház

Fertőszentmiklós

63.9 M Ft
4 szoba
180 m²
Pér
Eladó ikerház

Pér

81.892 M Ft
5 szoba
109 m²
Győr
Eladó ikerház

Győr

118 M Ft
5 szoba
113 m²
Kisfalud
Eladó telek

Kisfalud

12.55 M Ft
1054 m²
0 m²
Győr
Eladó téglalakás

Győr

40 M Ft
2 szoba
42 m²
Enese
Eladó családi ház

Enese

55.49 M Ft
3 + 1 szoba
104 m²
Pér
Eladó ikerház

Pér

68.5 M Ft
4 szoba
88 m²
Pér
Eladó családi ház

Pér

99.9 M Ft
4 szoba
86 m²
Győr, Belváros, 9022 Győr-Révfalu
Eladó ikerház

Győr

187.998 M Ft
605 m²
180 m²
Mosonmagyaróvár
Eladó ikerház

Mosonmagyaróvár

88 M Ft
3 + 1 szoba
89 m²
Győr
Eladó telek

Győr

56 M Ft
640 m²
0 m²
Győr
Eladó téglalakás

Győr

49.6 M Ft
1 szoba
42 m²
Mosonmagyaróvár
Eladó panellakás

Mosonmagyaróvár

44 M Ft
2 szoba
55 m²
Győr
Eladó családi ház

Győr

149.9 M Ft
2 + 2 szoba
169 m²
Győrújbarát
Eladó téglalakás

Győrújbarát

84.9 M Ft
1 + 3 szoba
76 m²
Pásztori
Eladó családi ház

Pásztori

32.5 M Ft
1 szoba
65 m²
Sopron
Eladó ikerház

Sopron

135 M Ft
4 szoba
95 m²
Écs
Eladó családi ház

Écs

22 M Ft
2 + 1 szoba
80 m²
Jobaháza
Eladó családi ház

Jobaháza

28 M Ft
3 szoba
120 m²
Győr
Eladó panellakás

Győr

48.9 M Ft
2 szoba
53 m²
Győr
Eladó téglalakás

Győr

36 M Ft
2 szoba
39 m²
Sopron
Eladó ikerház

Sopron

82.4 M Ft
3 szoba
80 m²
Győr
Eladó téglalakás

Győr

110 M Ft
4 szoba
97 m²

Falusi CSOK ingatlanok

Bag
Eladó családi ház

Bag

16.9 M Ft
6 szoba
160 m²
Újkígyós
Eladó családi ház

Újkígyós

29.9 M Ft
4 szoba
145 m²
Galgahévíz
Eladó családi ház

Galgahévíz

43 M Ft
3 szoba
115 m²
Zákányfalu
Eladó családi ház

Zákányfalu

14.5 M Ft
2 szoba
80 m²
Balatonszemes, Ady E. utca 6
Eladó téglalakás

Balatonszemes

108.9 M Ft
2 + 1 szoba
63 m²
Balatonszepezd
Eladó családi ház

Balatonszepezd

299 M Ft
5 szoba
220 m²
Marcalgergelyi
Eladó családi ház

Marcalgergelyi

31 M Ft
2 + 1 szoba
120 m²
Parád
Eladó családi ház

Parád

25 M Ft
2 szoba
80 m²

Falusi CSOK ingatlanok

Hegyeshalom, Margaréta utca 12
Eladó téglalakás

Hegyeshalom

50.09 M Ft
2 szoba
43 m²
Csurgó
Eladó családi ház

Csurgó

29 M Ft
3 szoba
80 m²
Pinnye, Kossuth Lajos utca
Eladó családi ház

Pinnye

55 M Ft
2 szoba
89 m²
Hahót
Eladó családi ház

Hahót

48 M Ft
4 + 1 szoba
110 m²
Törtel
Eladó családi ház

Törtel

32.5 M Ft
3 szoba
66 m²
Beremend, 7827 Beremend, Petőfi Sándor utca 10
Eladó családi ház

Beremend

11.95 M Ft
1 + 1 szoba
124 m²
Törtel
Eladó családi ház

Törtel

20 M Ft
2 szoba
63 m²
Nagyhegyes
Eladó családi ház

Nagyhegyes

54.99 M Ft
2 szoba
79 m²