Oasis Residence

Eladó ikerház
Győrság

Figyelem!

Ez az ingatlan a 2019.07.01-től induló falusi CSOK által támogatott településen található

1/2
64 900 000 Ft64.9 M Ft 705 435 Ft/m2
4 szoba
92 m²

Részletes adatok

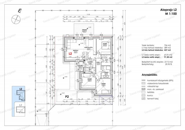
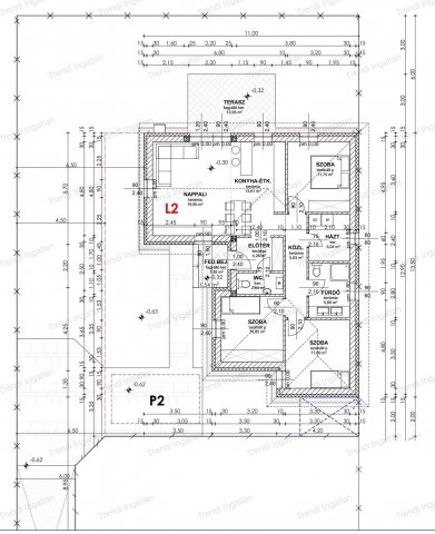
Telekméret: 437 m2
Fűtés: Gázkazán
Közmű: Víz, Gáz, Villany, Csatorna
Energetikai besorolás: Nem adta meg a hirdető

Az OTP Bank lakáshitel ajánlataFizetett hirdetés

+36 70 886
Neizer Éva
Trendi Ingatlan

Érdekel az OTP Bank kedvezményes lakáshitel ajánlata? *

* A kérdésre „Igen” válasz bejelölése esetén, az „Üzenet küldése” gombra kattintva kijelentem, hogy az OTP Bank Nyrt. Adatkezelési tájékoztatójának tartalmát megismertem és tudomásul vettem.

Eladó ikerház leírása

Nappali + 3 szobás ház eladó!
Győrság új építésű részén 91,50 nm-es ikerház 437 nm-es telekrészen fűtéskész állapotban eladó. A két ház önállóan megközelíthető, nincs közös fal.
A remek elosztású házban amerikai konyhás nappali, 3 szoba, fürdőszoba, külön WC, háztartási helyiség, közlekedő, előtér található. A nappaliból elérhető 13,95 nm-es terasz. A ház belső elrendezése készültségi fokhoz mérten még változtatható.
A ház 30-as falazóelemből, 15 cm-es homlokzati szigeteléssel, 3 rétegű műanyag, hőszigetelt üvegezésű nyílászárókkal kerül kivitelezésre. Az ingatlan fűtését kondenzációs kazán biztosítja padlófűtéssel. Hűtéséről klíma gondoskodik. Felár ellenében hőszivattyús fűtés, kerti csap, riasztó-előkészítés, redőny-előkészítés, térkövezés stb. kérhető.
Várható átadás: 2026 ősz-tél
Az ingatlan fűtéskész ára: 64.900.000 Ft. Az ár tartalmazza a telek árát is.
Kulcsrakész befejezés kérhető.
Bővebb információkért forduljon hozzám bizalommal.
Hétköznap és hétvégén is várom hívását!
Díjmentes, bankfüggetlen hitelügyintézéssel állunk rendelkezésére.

Hirdetés feltöltve: 2026. 03. 07. Utoljára módosítva: 2026. 05. 12.

Az ingatlan elhelyezkedése

Cím: Győrság

Eladó ingatlanok a környékről

Győrújbarát, Paperdő
Eladó nyaraló

Győrújbarát

85 M Ft
5 szoba
170 m²
Győr
Eladó panellakás

Győr

42.99 M Ft
1 + 1 szoba
53 m²
Mosonmagyaróvár
Eladó téglalakás

Mosonmagyaróvár

59.9 M Ft
2 szoba
47 m²
Győr
Eladó ipari ingatlan

Győr

300 M Ft
4.7 ha
0 m²
Győr
Eladó ikerház

Győr

118 M Ft
5 szoba
135 m²
Mosonmagyaróvár
Eladó panellakás

Mosonmagyaróvár

44 M Ft
2 szoba
55 m²
Győr
Eladó panellakás

Győr

48.9 M Ft
2 szoba
53 m²
Kisfalud
Eladó telek

Kisfalud

12.55 M Ft
1054 m²
0 m²
Győr
Eladó téglalakás

Győr

40 M Ft
2 szoba
42 m²
Fertőd
Eladó téglalakás

Fertőd

55 M Ft
3 szoba
65 m²
Kapuvár
Eladó téglalakás

Kapuvár

67 M Ft
3 szoba
73 m²
Győr
Eladó telek

Győr

56 M Ft
640 m²
0 m²
Mosonmagyaróvár
Eladó ikerház

Mosonmagyaróvár

99.4 M Ft
4 szoba
122 m²
Győrújfalu
Eladó ikerház

Győrújfalu

110 M Ft
5 szoba
113 m²
Győr
Eladó családi ház

Győr

149.9 M Ft
2 + 2 szoba
169 m²
Győr, Belváros, 9022 Győr-Révfalu
Eladó ikerház

Győr

187.998 M Ft
605 m²
180 m²
Pér
Eladó ikerház

Pér

68.123 M Ft
4 szoba
88 m²
Győrszemere
Eladó családi ház

Győrszemere

119.99 M Ft
5 szoba
96 m²
Gönyű
Eladó családi ház

Gönyű

35 M Ft
2 szoba
90 m²
Győrújfalu
Eladó ikerház

Győrújfalu

94.99 M Ft
4 szoba
0 m²
Győrzámoly
Eladó családi ház

Győrzámoly

215 M Ft
2 szoba
155 m²
Győr
Eladó téglalakás

Győr

110 M Ft
4 szoba
97 m²
Pér
Eladó ikerház

Pér

81.892 M Ft
5 szoba
109 m²
Győrság
Eladó ikerház

Győrság

95.99 M Ft
4 szoba
91 m²

Falusi CSOK ingatlanok

Ásványráró
Eladó családi ház

Ásványráró

42.5 M Ft
703 m²
69 m²
Vértesboglár, Dózsa utca
Eladó családi ház

Vértesboglár

99 M Ft
4 szoba
110 m²
Hegyeshalom, Margaréta utca 12
Eladó téglalakás

Hegyeshalom

50.09 M Ft
2 szoba
43 m²
Sződ
Eladó családi ház

Sződ

116 M Ft
5 szoba
136 m²
Badacsonytomaj
Eladó családi ház

Badacsonytomaj

285 M Ft
4 szoba
230 m²
Herend
Eladó családi ház

Herend

144.9 M Ft
7 szoba
285 m²
Bakonyszentlászló
Eladó családi ház

Bakonyszentlászló

48.5 M Ft
3 szoba
103 m²
Csárdaszállás
Eladó családi ház

Csárdaszállás

11.99 M Ft
3 + 2 szoba
100 m²

Falusi CSOK ingatlanok

Onga
Eladó családi ház

Onga

81.9 M Ft
4 szoba
109 m²
Köveskál
Eladó családi ház

Köveskál

215 M Ft
4 szoba
100 m²
Szentmártonkáta
Eladó családi ház

Szentmártonkáta

59.99 M Ft
6 szoba
117 m²
Bogács
Eladó családi ház

Bogács

64.95 M Ft
7 szoba
125 m²
Röszke
Eladó családi ház

Röszke

69.99 M Ft
4 szoba
99 m²
Törtel
Eladó családi ház

Törtel

32.5 M Ft
3 szoba
66 m²
Balatonőszöd
Eladó családi ház

Balatonőszöd

72 M Ft
4 szoba
92 m²
Badacsonytördemic
Eladó családi ház

Badacsonytördemic

86 M Ft
4 szoba
110 m²