NapForrás 20 - Buda

Eladó ikerház
Budapest, XVIII. kerület

+ 9 kép 1/12
147 000 000 Ft147 M Ft 930 380 Ft/m2
4 szoba
158 m²
építés éve:2026

Részletes adatok

Telekméret: 360 m2
Fűtés: Egyéb
Energetikai besorolás: Nem adta meg a hirdető

Az OTP Bank lakáshitel ajánlataFizetett hirdetés

+36 1 690
Juhász Anikó
referens

Érdekel az OTP Bank kedvezményes lakáshitel ajánlata? *

* A kérdésre „Igen” válasz bejelölése esetén, az „Üzenet küldése” gombra kattintva kijelentem, hogy az OTP Bank Nyrt. Adatkezelési tájékoztatójának tartalmát megismertem és tudomásul vettem.

Eladó ikerház leírása

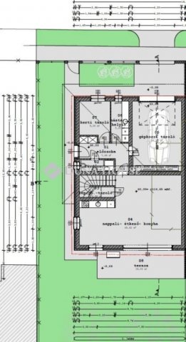
Megvételre kínálunk Budapest XVIII. kerületében, Pestszentimrén, Újpéteri telepen magas műszaki tartalommal készülő új építésű ikerházakMost épülő ikerház mindkét fele elérhető, saját, 360 m²-es leválasztott telekrésszel,saját kerttel és teljesen önálló bejárattal.Az ingatlanokhoz most ajándék 5 kw-os napelem benne van az árban!!!Az ingatlanok 158 nm hasznos alapterületűek, a mai trendnek megfelelően kiválóan alkalmas családok részére.A földszinten egy tágas, 46 m²-es amerikai konyhás nappali kapott helyet, amely közvetlenül a 18 m²-es, burkolt teraszra nyílikEzen a szinten található még egy szoba, fürdőszoba, háztartási helyiség, tároló és 25 m²-es, motoros kapuval felszerelt garázs.Az emelet három különnyíló hálószobát, gardróbot és fürdőszobát kerül kivitelezésre.Amiket a magas műszaki tartalomban benne van:modern hőszivattyús fűtési rendszer és padlófűtés minden szinten3 rétegű nyílászárók, motoros alumínium redőnnyel és szúnyoghálóvalHörmann motoros garázskapualap riasztórendszer kiépítéseburkolt terasz, térkövezett beálló és motoros nagykapuenergiatakarékos, korszerű építési megoldások5 db klíma kiállás előkészítése15 cm homlokzati dryvit hőszigetelésVárható átadás: 2026. IV. negyedévMegbízható, tapasztalt kivitelezőtől, referencia házakkal a közelben.

Referencia szám: HZ018054

Hirdetés feltöltve: 2026. 03. 07. Utoljára módosítva: 2026. 03. 24.

4 szobás ikerházak ára Budapesten

Ebből az összehasonlításból megtudhatod, hogyan viszonyul a lakás ára a környékbeli ikerházak átlagos árához. Ez nem azt jelenti, hogy ennyivel olcsóbb vagy drágább, mint amennyit a lakás ér, hanem hogy ennyivel tér el a környékbeli átlagtól.

Ennek a m² ára
XVIII. kerület m² ár
Budapest m² ár
930 e Ft
1005 e Ft 7%
1195 e Ft 22%
Ennek az ára
XVIII. kerület átlagár
Budapest átlagár
147 M Ft m Ft
140.4 m Ft -5%
170.9 m Ft 14%

Az ingatlan elhelyezkedése

Cím: Budapest, XVIII. kerület

Eladó ingatlanok a környékről

XVIII. kerület
Eladó ikerház

Budapest, XVIII. kerület

74.5 M Ft
4 szoba
110 m²
XVIII. kerület
Eladó ikerház

Budapest, XVIII. kerület

99.9 M Ft
4 szoba
110 m²
XVIII. kerület, Belsőmajor
Eladó ikerház

Budapest, XVIII. kerület

125 M Ft
7 szoba
270 m²
VIII. kerület, Palotanegyed
Eladó téglalakás

Budapest, VIII. kerület

74.9 M Ft
3 szoba
28 m²
VI. kerület, Külső Terézváros, Rózsa utca 82
Eladó téglalakás

Budapest, VI. kerület

85.92 M Ft
2 szoba
48 m²
III. kerület, Csillaghegy
Eladó családi ház

Budapest, III. kerület

128.8 M Ft
4 szoba
120 m²
XVIII. kerület, Újpéteritelep
Eladó ikerház

Budapest, XVIII. kerület

119.9 M Ft
5 szoba
144 m²
XVIII. kerület, Szent Imre kertváros
Eladó családi ház

Budapest, XVIII. kerület

99.9 M Ft
2 szoba
80 m²
XVIII. kerület, Lónyaytelep
Eladó téglalakás

Budapest, XVIII. kerület

69 M Ft
3 szoba
63 m²
XVIII. kerület
Eladó ikerház

Budapest, XVIII. kerület

131.9 M Ft
5 szoba
140 m²
XIII. kerület
Eladó téglalakás

Budapest, XIII. kerület

94.749 M Ft
2 szoba
57 m²
XVIII. kerület, Szemeretelep
Eladó ikerház

Budapest, XVIII. kerület

84 M Ft
5 szoba
103 m²
XVIII. kerület, Almáskert
Eladó ikerház

Budapest, XVIII. kerület

149.9 M Ft
5 szoba
136 m²
XVIII. kerület, Erzsébettelep
Eladó ikerház

Budapest, XVIII. kerület

74.5 M Ft
4 szoba
110 m²
XVIII. kerület
Eladó ikerház

Budapest, XVIII. kerület

99.9 M Ft
4 szoba
110 m²
XVIII. kerület, Liptáktelep
Eladó téglalakás

Budapest, XVIII. kerület

97.5 M Ft
3 szoba
72 m²
XVIII. kerület, Liptáktelep
Eladó családi ház

Budapest, XVIII. kerület

105 M Ft
2 szoba
90 m²
XVIII. kerület, Almáskert
Eladó ikerház

Budapest, XVIII. kerület

149.9 M Ft
5 szoba
137 m²
II. kerület
Eladó családi ház

Budapest, II. kerület

149.9 M Ft
3 szoba
90 m²
XVIII. kerület, Gloriett-telep, Sólyom utca
Eladó ikerház

Budapest, XVIII. kerület

49.9 M Ft
2 szoba
40 m²
XVIII. kerület
Eladó családi ház

Budapest, XVIII. kerület

75 M Ft
3 szoba
65 m²
XVIII. kerület, Erzsébettelep
Eladó ikerház

Budapest, XVIII. kerület

122 M Ft
4 + 1 szoba
117 m²
XVIII. kerület
Eladó ikerház

Budapest, XVIII. kerület

159 M Ft
5 szoba
134 m²
XVIII. kerület, Miklóstelep
Eladó családi ház

Budapest, XVIII. kerület

129.9 M Ft
7 szoba
100 m²

Falusi CSOK ingatlanok

Perbál
Eladó családi ház

Perbál

130 M Ft
5 szoba
190 m²
Szőlősgyörök
Eladó családi ház

Szőlősgyörök

29.9 M Ft
3 szoba
85 m²
Hosszúhetény, Iskola utca 2
Eladó családi ház

Hosszúhetény

9.3 M Ft
4 szoba
145 m²
Kenyeri
Eladó családi ház

Kenyeri

39.9 M Ft
3 szoba
94 m²
Nyáregyháza
Eladó családi ház

Nyáregyháza

179.9 M Ft
5 szoba
232 m²
Balatonakali
Eladó ikerház

Balatonakali

129 M Ft
4 szoba
145 m²
Csemő
Eladó családi ház

Csemő

61.9 M Ft
3 szoba
88 m²
Szentmártonkáta
Eladó családi ház

Szentmártonkáta

35 M Ft
3 szoba
70 m²