Astora Olive Club House

Eladó ikerház
Budapest, XV. kerület

+ 9 kép 1/12
189 000 000 Ft189 M Ft 1 340 426 Ft/m2
5 szoba
141 m2
építés éve:2025

Részletes adatok

Telekméret: 720 m2
Fűtés: Gázkazán
Parkolás: Garázs
Energetikai besorolás: Nem adta meg a hirdető

Az OTP Bank lakáshitel ajánlataFizetett hirdetés

+36 20 310
Balogh Csaba
referens

Érdekel az OTP Bank kedvezményes lakáshitel ajánlata? *

* A kérdésre „Igen” válasz bejelölése esetén, az „Üzenet küldése” gombra kattintva kijelentem, hogy az OTP Bank Nyrt. Adatkezelési tájékoztatójának tartalmát megismertem és tudomásul vettem.

Eladó ikerház leírása

KIVÉTELES ADOTTSÁGÚ IKERHÁZ REFERENCIÁVAL RENDELKEZŐ BERUHÁZÓTÓL A KIÍRT ÁRON KULCSRAKÉSZEN!

XV. kerület hangulatos kertvárosában, tömegközlekedési eszközök, közintézmények és számos szolgáltatás gyűrűjében kínálok eladásra, egy kitűnő adottságú, 350 m2 -es telken elhelyezkedő, 2025-ös építésű, két szintes, dupla komfortos, magas műszaki tartalommal rendelkező ikerházat.

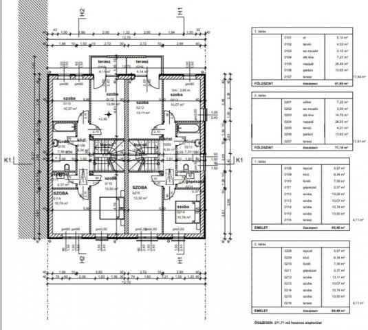
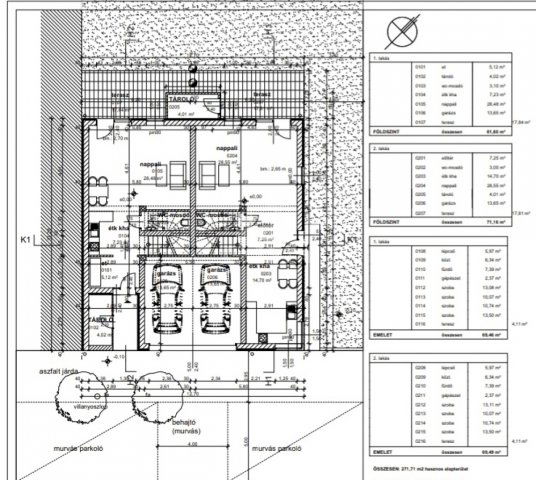
Pillanatnyilag a ház mindkét lakása elérhető, amik az utcáról, egymástól elszeparáltan megközelíthetőek.

Az 1 lakás 130 m2 alapterülettel, a földszinten garázzsal,wc-vel ,amerikai konyhás-nappalival, az emeleten pedig 4 hálószobával + fürdőszobával került kialakításra.
Irányára: 130 Millió Ft

A 2 lakás nagyobb kertkapcsolattal, 141 m2 alapterülettel, földszinten garázzsal,wc-vel ,amerikai konyhás-nappalival, az emeleten pedig 4 hálószobával + fürdőszobával került kialakításra.
Irányára: 179 Millió Ft

A jelenlegi készültségi állapot lehető teszi, hogy a belső tartalom a vevő igényeihez legyen igazítva.
A tulajdonos a hideg és meleg burkolatokat 10 ezer, a szanitereket 400 ezer, a beltéri ajtókat 100 ezer forintos összeghatárig biztosítja, magasabb vevői igény a különbözet megfizetése után lehetséges.

Az ingatlan megtekinthető a hét bármely napján!
Várom a hívását, akár hétvégén is!

B.Cs. ...TOVÁBBI, TÖBBEZRES INGATLAN KÍNÁLAT: www.gdn-ingatlan.hu - GDN azonosító: 389938

Hirdetés feltöltve: 2025. 11. 25. Utoljára módosítva: 2026. 01. 13.

5 szobás ikerházak ára Budapesten

Ebből az összehasonlításból megtudhatod, hogyan viszonyul a lakás ára a környékbeli ikerházak átlagos árához. Ez nem azt jelenti, hogy ennyivel olcsóbb vagy drágább, mint amennyit a lakás ér, hanem hogy ennyivel tér el a környékbeli átlagtól.

Ennek a m² ára
XV. kerület m² ár
Budapest m² ár
1340 e Ft
577 e Ft -133%
1161 e Ft -15%
Ennek az ára
XV. kerület átlagár
Budapest átlagár
189 M Ft m Ft
107 m Ft -77%
203.2 m Ft 7%

Az ingatlan elhelyezkedése

Cím: Budapest, XV. kerület

Eladó ingatlanok a környékről

Eladó téglalakás
Eladó téglalakás

I. kerület

106.9 M Ft
2 szoba
60 m2
Eladó ikerház
Eladó ikerház

XV. kerület, Pestújhely

109 M Ft
3 szoba
82 m2
Eladó garázs
Eladó garázs

XIII. kerület, Angyalföld

6.5 M Ft
12 m2
Eladó téglalakás
Eladó téglalakás

III. kerület, Óbuda, Szomolnok utca

89.9 M Ft
2 + 2 szoba
96 m2
Eladó téglalakás
Eladó téglalakás

VI. kerület, Külső Terézváros, Szív utca

124.9 M Ft
3 szoba
94 m2
Eladó téglalakás
Eladó téglalakás

XI. kerület, Lágymányos, Móricz Zsigmond körtér

89.5 M Ft
2 szoba
52 m2
Eladó ikerház
Eladó ikerház

XV. kerület

109 M Ft
3 szoba
82 m2
Eladó téglalakás
Eladó téglalakás

I. kerület, Krisztinaváros, Feszty Árpád utca

78.99 M Ft
1 szoba
28 m2
Eladó ikerház
Eladó ikerház

XV. kerület

109 M Ft
3 szoba
82 m2
Eladó téglalakás
Eladó téglalakás

XVIII. kerület

87.5 M Ft
3 szoba
67 m2
Eladó családi ház
Eladó családi ház

XVI. kerület

89.9 M Ft
2 + 1 szoba
100 m2
Eladó ikerház
Eladó ikerház

XV. kerület

109 M Ft
3 szoba
82 m2
Eladó ikerház
Eladó ikerház

XV. kerület

285 M Ft
6 szoba
174 m2
Eladó téglalakás
Eladó téglalakás

VIII. kerület, Palotanegyed, Rákóczi út

185 M Ft
5 szoba
121 m2
Eladó téglalakás
Eladó téglalakás

V. kerület, Belváros, Petőfi Sándor utca

134 M Ft
2 szoba
59 m2
Eladó téglalakás
Eladó téglalakás

XIII. kerület, Angyalföld, Fiastyúk utca

39.9 M Ft
1 + 1 szoba
34 m2
Eladó családi ház
Eladó családi ház

XXII. kerület, Budafok, Baross utca

222 M Ft
6 + 1 szoba
200 m2
Eladó ikerház
Eladó ikerház

XV. kerület, Rákospalota

35 M Ft
1 szoba
35 m2
Eladó ikerház
Eladó ikerház

XV. kerület

109 M Ft
3 szoba
82 m2
Eladó téglalakás
Eladó téglalakás

III. kerület, Óbudaisziget, Folyamőr utca

69.9 M Ft
1 szoba
25 m2
Eladó ikerház
Eladó ikerház

XV. kerület, Rákospalota

89.9 M Ft
3 szoba
75 m2
Eladó ikerház
Eladó ikerház

XV. kerület, Pestújhely

189 M Ft
5 szoba
159 m2
Eladó téglalakás
Eladó téglalakás

XIV. kerület, Kiszugló, Kövér Lajos utca

168 M Ft
3 + 1 szoba
84 m2
Eladó ikerház
Eladó ikerház

XV. kerület

81.9 M Ft
4 szoba
130 m2

Falusi CSOK ingatlanok

Eladó téglalakás
Eladó téglalakás

Várbalog

38.9 M Ft
3 szoba
45 m2
Eladó családi ház
Eladó családi ház

Balatonfenyves

430 M Ft
4 szoba
274 m2
Eladó családi ház
Eladó családi ház

Kaposgyarmat

695 M Ft
6 szoba
610 m2
Eladó családi ház
Eladó családi ház

Ásványráró

134 M Ft
5 szoba
230 m2
Eladó családi ház
Eladó családi ház

Kétpó

14.9 M Ft
1 + 2 szoba
86 m2
Eladó családi ház
Eladó családi ház

Vid

29 M Ft
4 szoba
100 m2
Eladó családi ház
Eladó családi ház

Hegyeshalom

190 M Ft
2 szoba
120 m2
Eladó családi ház
Eladó családi ház

Nagyhegyes

44.9 M Ft
2 szoba
72 m2