Astora Olive Club House

Eladó hotel
Budapest, XVI. kerület

+ 9 kép 1/12
1 006 500 000 Ft1006.5 M Ft 508 333 Ft/m2
1980 m²
építés éve:2000

Részletes adatok

Fűtés: Gázkazán
Energetikai besorolás: Nem adta meg a hirdető

Az OTP Bank lakáshitel ajánlataFizetett hirdetés

+36 20 220
Szabó Sándor
referens

Érdekel az OTP Bank kedvezményes lakáshitel ajánlata? *

* A kérdésre „Igen” válasz bejelölése esetén, az „Üzenet küldése” gombra kattintva kijelentem, hogy az OTP Bank Nyrt. Adatkezelési tájékoztatójának tartalmát megismertem és tudomásul vettem.

Eladó hotel leírása

ELADÓ Sashalom központi részén egy 25 szobás Vendégház és Galéria. A telek 2600 nm az épület 3 szinten összesen 1980 nm. Az épület 2000 -ben épült. A 3 szintes többfunkciós épület
Panzióként és Galériaként is működik. Konferenciák , rendezvények (esküvők, céges események, workshopok,) lebonyolítására is alkalmas . A rendezvényteremben 200 fős események szervezhetők. Visszajáró vendégek biztosítják a folyamatos működést és rentabilitást.
Új tevékenység kialakítására is alkalmas : magánklinika, cégszékház, sportközpont, gyülekezet, munkásszállás, irodaház, nyugdíjas otthon.
Az épület vasbeton pillérvázas monolit vasbeton gerendákkal és födémmel készült, a falak bárhol kibonthatók, átalakíthatók igényeknek megfelelően.
A háznak 4 bejárata van, 2 lépcsőházzal. Lift beépíthető a hely kialakítva csak a liftet kell beszerelni. 30 autó beállási lehetőség udvaron belül.
A Vendégház bővíthető kb. 50 férőhellyel.
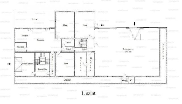
Első szint:
660 nm-es luxus lakás közvetlen kertkapcsolattal, terasszal, saját 2 állásos garázzsal külön kapubejárattal,
Műhely, mosoda, iroda, kiszolgáló helyiségek, ügyfélváró,

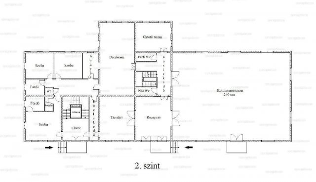
Második szint:
660 nm-es konferenciaterem , 1 lakás konyhával, 1 garzonlakás, 1 3 hálószobás lakás 3 fürdőszoba, oktató és bemutató terem, irodák, recepció, kiszolgáló konyha, mellékhelyiségek,

Harmadik szint:
660 nm-es 12 db zuhanyzós fürdőszobás vendégszoba közös konyhával, könyvtárszobával, kisegítő helyiségekkel,

Padlástér: műszaki berendezések találhatók

Műszaki leírás:
Gázfűtés és vegyes tüzelésű kazánok, 25 KW-os napelem a tetőn , radiátor és padlófűtés, 3 ásott kút, számítógép hálózat, wifi, telefonközpont, motoros kapuk. Hűtő fűtő klíma,

Közlekedés:
Jó megközelíthetőség, HÉV, több buszjárat, 10 percre az Örs Vezér tér. A közelben bölcsőde, iskola (Waldorf iskola ), Sashalmi-piac, uszoda, igényesen kialakított park található.
Bevásárlóközpont Sugár, Árkád, IKEA,
Kiváló befektetés !! Az épület igényes anyagokkal megépített, folyamatosan karbantartott , nagyon jó elhelyezkedésű, könnyen megközelíthető.
Várom megtisztelő hívását !

Az OTP Ingatlanpont teljes körű ügyintézéssel áll az eladók és a vevők rendelkezésére! A kínálatunkból választott ingatlan finanszírozásához kedvezményes hitelkonstrukciókat kínálunk. Az adásvételi szerződés megkötéséhez igény szerint megbízható ügyvédi közreműködést biztosítunk, és segítséget nyújtunk az adásvételhez kapcsolódó ügyek intézéséhez. Várom megtisztelő hívását.

Az energetikai tanúsítvány készítése folyamatban van, amint rendelkezésre áll, úgy azzal a hirdetés frissítésre kerül.

Érd.: Szabó Sándor +3620-220 4440

Referencia szám: M307574-ZE

Hirdetés feltöltve: 2026. 04. 05. Utoljára módosítva: 2026. 05. 18.

Hotelek ára Budapesten

Ebből az összehasonlításból megtudhatod, hogyan viszonyul a lakás ára a környékbeli hotelek átlagos árához. Ez nem azt jelenti, hogy ennyivel olcsóbb vagy drágább, mint amennyit a lakás ér, hanem hogy ennyivel tér el a környékbeli átlagtól.

Ennek a m² ára
Budapest m² ár
508 e Ft
850 e Ft 40%
Ennek az ára
Budapest átlagár
1006.5 M Ft m Ft
371.9 m Ft -171%

Az ingatlan elhelyezkedése

Cím: Budapest, XVI. kerület

Eladó ingatlanok a környékről

III. kerület
Eladó panellakás

Budapest, III. kerület

69.5 M Ft
2 szoba
50 m²
XVI. kerület
Eladó hotel

Budapest, XVI. kerület

520 M Ft
2265 m²
XIV. kerület
Eladó téglalakás

Budapest, XIV. kerület

84 M Ft
2 szoba
54 m²
XVI. kerület
Eladó hotel

Budapest, XVI. kerület

399 M Ft
800 m²
800 m²
X. kerület
Eladó téglalakás

Budapest, X. kerület

49.9 M Ft
1 szoba
45 m²
XIII. kerület, Újlipótváros, Victor Hugo utca
Eladó téglalakás

Budapest, XIII. kerület

69.9 M Ft
2 szoba
35 m²
X. kerület
Eladó panellakás

Budapest, X. kerület

73.9 M Ft
3 szoba
68 m²
XIV. kerület
Eladó téglalakás

Budapest, XIV. kerület

38.9 M Ft
1 szoba
25 m²
XVII. kerület
Eladó téglalakás

Budapest, XVII. kerület

139.9 M Ft
4 szoba
117 m²
XIV. kerület
Eladó téglalakás

Budapest, XIV. kerület

59 M Ft
2 szoba
41 m²
XIV. kerület
Eladó téglalakás

Budapest, XIV. kerület

150 M Ft
2 szoba
111 m²
XVI. kerület
Eladó családi ház

Budapest, XVI. kerület

142 M Ft
6 szoba
266 m²
XIV. kerület
Eladó téglalakás

Budapest, XIV. kerület

84 M Ft
2 szoba
54 m²
XXI. kerület
Eladó panellakás

Budapest, XXI. kerület

55 M Ft
1 + 1 szoba
46 m²
XIII. kerület
Eladó téglalakás

Budapest, XIII. kerület

42.9 M Ft
1 szoba
22 m²
XVII. kerület
Eladó panellakás

Budapest, XVII. kerület

50 M Ft
3 szoba
58 m²
XIII. kerület
Eladó téglalakás

Budapest, XIII. kerület

59.9 M Ft
1 + 1 szoba
35 m²
XVIII. kerület
Eladó családi ház

Budapest, XVIII. kerület

88 M Ft
4 szoba
88 m²
XIV. kerület
Eladó panellakás

Budapest, XIV. kerület

84.99 M Ft
3 szoba
67 m²
V. kerület, Belváros, Múzeum körút
Eladó téglalakás

Budapest, V. kerület

151.5 M Ft
1 + 2 szoba
63 m²
XVIII. kerület
Eladó családi ház

Budapest, XVIII. kerület

79.9 M Ft
3 szoba
93 m²
XI. kerület
Eladó panellakás

Budapest, XI. kerület

78 M Ft
2 szoba
49 m²
XIV. kerület
Eladó téglalakás

Budapest, XIV. kerület

73.499 M Ft
2 szoba
49 m²
XVII. kerület
Eladó családi ház

Budapest, XVII. kerület

199 M Ft
6 szoba
178 m²

Falusi CSOK ingatlanok

Tápiógyörgye
Eladó családi ház

Tápiógyörgye

22.5 M Ft
3 + 1 szoba
83 m²
Badacsonytomaj
Eladó családi ház

Badacsonytomaj

285 M Ft
4 szoba
230 m²
Porva
Eladó családi ház

Porva

74.6 M Ft
3 szoba
115 m²
Hosszúpereszteg
Eladó családi ház

Hosszúpereszteg

27.9 M Ft
4 szoba
0 m²
Lajoskomárom
Eladó családi ház

Lajoskomárom

22.9 M Ft
2 szoba
66 m²
Csurgó
Eladó családi ház

Csurgó

29 M Ft
3 szoba
80 m²
Madaras
Eladó családi ház

Madaras

33 M Ft
5 szoba
210 m²
Balatonszemes
Eladó téglalakás

Balatonszemes

119.9 M Ft
2 szoba
0 m²