Astora Márvány8

Eladó hotel
Budapest, XVI. kerület

+ 9 kép 1/12
918 750 000 Ft918.75 M Ft 464 015 Ft/m2
1980 m²
építés éve:2000

Részletes adatok

Fűtés: Gázkazán
Energetikai besorolás: Nem adta meg a hirdető

Az OTP Bank lakáshitel ajánlataFizetett hirdetés

+36 20 220
Szabó Sándor
referens

Érdekel az OTP Bank kedvezményes lakáshitel ajánlata? *

* A kérdésre „Igen” válasz bejelölése esetén, az „Üzenet küldése” gombra kattintva kijelentem, hogy az OTP Bank Nyrt. Adatkezelési tájékoztatójának tartalmát megismertem és tudomásul vettem.

Eladó hotel leírása

ELADÓ Sashalom központi részén egy 25 szobás Vendégház és Galéria. A telek 2600 nm az épület 3 szinten összesen 1980 nm. Az épület 2000 -ben épült. A 3 szintes többfunkciós épület
Panzióként és Galériaként is működik. Konferenciák , rendezvények (esküvők, céges események, workshopok,) lebonyolítására is alkalmas . A rendezvényteremben 200 fős események szervezhetők. Visszajáró vendégek biztosítják a folyamatos működést és rentabilitást.
Új tevékenység kialakítására is alkalmas : magánklinika, cégszékház, sportközpont, gyülekezet, munkásszállás, irodaház, nyugdíjas otthon.
Az épület vasbeton pillérvázas monolit vasbeton gerendákkal és födémmel készült, a falak bárhol kibonthatók, átalakíthatók igényeknek megfelelően.
A háznak 4 bejárata van, 2 lépcsőházzal. Lift beépíthető a hely kialakítva csak a liftet kell beszerelni. 30 autó beállási lehetőség udvaron belül.
A Vendégház bővíthető kb. 50 férőhellyel.
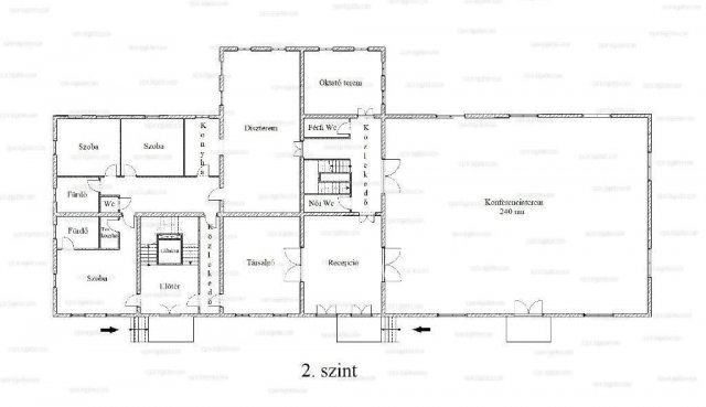
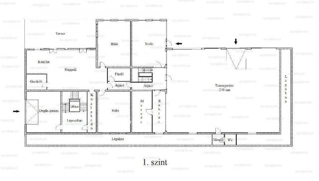
Első szint:
660 nm-es luxus lakás közvetlen kertkapcsolattal, terasszal, saját 2 állásos garázzsal külön kapubejárattal,
Műhely, mosoda, iroda, kiszolgáló helyiségek, ügyfélváró,

Második szint:
660 nm-es konferenciaterem , 1 lakás konyhával, 1 garzonlakás, 1 3 hálószobás lakás 3 fürdőszoba, oktató és bemutató terem, irodák, recepció, kiszolgáló konyha, mellékhelyiségek,

Harmadik szint:
660 nm-es 12 db zuhanyzós fürdőszobás vendégszoba közös konyhával, könyvtárszobával, kisegítő helyiségekkel,

Padlástér: műszaki berendezések találhatók

Műszaki leírás:
Gázfűtés és vegyes tüzelésű kazánok, 25 KW-os napelem a tetőn , radiátor és padlófűtés, 3 ásott kút, számítógép hálózat, wifi, telefonközpont, motoros kapuk. Hűtő fűtő klíma,

Közlekedés:
Jó megközelíthetőség, HÉV, több buszjárat, 10 percre az Örs Vezér tér. A közelben bölcsőde, iskola (Waldorf iskola ), Sashalmi-piac, uszoda, igényesen kialakított park található.
Bevásárlóközpont Sugár, Árkád, IKEA,
Kiváló befektetés !! Az épület igényes anyagokkal megépített, folyamatosan karbantartott , nagyon jó elhelyezkedésű, könnyen megközelíthető.
Várom megtisztelő hívását !

Az OTP Ingatlanpont teljes körű ügyintézéssel áll az eladók és a vevők rendelkezésére! A kínálatunkból választott ingatlan finanszírozásához kedvezményes hitelkonstrukciókat kínálunk. Az adásvételi szerződés megkötéséhez igény szerint megbízható ügyvédi közreműködést biztosítunk, és segítséget nyújtunk az adásvételhez kapcsolódó ügyek intézéséhez. Várom megtisztelő hívását.
Érd.: Szabó Sándor +3620-220 4440

Referencia szám: M307574-ZE

Hirdetés feltöltve: 2025. 09. 19. Utoljára módosítva: 2026. 03. 24.

Hotelek ára Budapesten

Ebből az összehasonlításból megtudhatod, hogyan viszonyul a lakás ára a környékbeli hotelek átlagos árához. Ez nem azt jelenti, hogy ennyivel olcsóbb vagy drágább, mint amennyit a lakás ér, hanem hogy ennyivel tér el a környékbeli átlagtól.

Ennek a m² ára
Budapest m² ár
464 e Ft
882 e Ft 47%
Ennek az ára
Budapest átlagár
918.75 M Ft m Ft
431.8 m Ft -113%

Az ingatlan elhelyezkedése

Cím: Budapest, XVI. kerület

Eladó ingatlanok a környékről

XX. kerület
Eladó családi ház

Budapest, XX. kerület

89.9 M Ft
4 szoba
114 m²
XVIII. kerület, Miklóstelep
Eladó családi ház

Budapest, XVIII. kerület

129.9 M Ft
7 szoba
100 m²
XVI. kerület, Rákosszentmihály
Eladó hotel

Budapest, XVI. kerület

199 M Ft
1525 m²
580 m²
XI. kerület
Eladó téglalakás

Budapest, XI. kerület

45.1 M Ft
2 szoba
25 m²
XVII. kerület, Rákoscsaba
Eladó családi ház

Budapest, XVII. kerület

249.9 M Ft
4 szoba
157 m²
XVIII. kerület, Liptáktelep
Eladó családi ház

Budapest, XVIII. kerület

105 M Ft
2 szoba
90 m²
XVIII. kerület, Szent Imre kertváros
Eladó családi ház

Budapest, XVIII. kerület

99.9 M Ft
2 szoba
80 m²
XVI. kerület, Rákosszentmihály
Eladó hotel

Budapest, XVI. kerület

399 M Ft
800 m²
800 m²
VIII. kerület
Eladó téglalakás

Budapest, VIII. kerület

109.9 M Ft
2 + 1 szoba
64 m²
II. kerület
Eladó téglalakás

Budapest, II. kerület

275 M Ft
4 szoba
97 m²
XVIII. kerület
Eladó ikerház

Budapest, XVIII. kerület

199.999 M Ft
4 szoba
214 m²
XIV. kerület, Herminamező
Eladó iroda

Budapest, XIV. kerület

480 M Ft
7 szoba
250 m²
XVII. kerület
Eladó családi ház

Budapest, XVII. kerület

299 M Ft
5 szoba
193 m²
XIII. kerület
Eladó téglalakás

Budapest, XIII. kerület

94.749 M Ft
2 szoba
57 m²
XVIII. kerület
Eladó családi ház

Budapest, XVIII. kerület

75 M Ft
3 szoba
65 m²
XVIII. kerület
Eladó ikerház

Budapest, XVIII. kerület

147 M Ft
4 szoba
158 m²
III. kerület, Csillaghegy
Eladó családi ház

Budapest, III. kerület

128.8 M Ft
4 szoba
120 m²
XVI. kerület
Eladó hotel

Budapest, XVI. kerület

520 M Ft
40 szoba
2265 m²
XVIII. kerület, Szemeretelep
Eladó családi ház

Budapest, XVIII. kerület

140 M Ft
2 szoba
118 m²
XIV. kerület, Törökőr
Eladó téglalakás

Budapest, XIV. kerület

83.7 M Ft
2 szoba
56 m²
XVI. kerület
Eladó hotel

Budapest, XVI. kerület

519.99 M Ft
32 szoba
2265 m²
XIII. kerület
Eladó téglalakás

Budapest, XIII. kerület

49 M Ft
2 szoba
35 m²
VI. kerület, Külső Terézváros, Rózsa utca 82
Eladó téglalakás

Budapest, VI. kerület

85.92 M Ft
2 szoba
48 m²
XVIII. kerület, Liptáktelep
Eladó téglalakás

Budapest, XVIII. kerület

97.5 M Ft
3 szoba
72 m²

Falusi CSOK ingatlanok

Homokbödöge
Eladó családi ház

Homokbödöge

47.9 M Ft
4 + 1 szoba
167 m²
Győrság
Eladó családi ház

Győrság

475 M Ft
13 szoba
1115 m²
Lengyeltóti
Eladó családi ház

Lengyeltóti

26.5 M Ft
2 szoba
85 m²
Balatonszemes
Eladó téglalakás

Balatonszemes

91.5 M Ft
2 szoba
60 m²
Ábrahámhegy
Eladó családi ház

Ábrahámhegy

139 M Ft
4 szoba
106 m²
Nagyréde
Eladó családi ház

Nagyréde

69.5 M Ft
4 szoba
110 m²
Vid
Eladó családi ház

Vid

29 M Ft
4 szoba
100 m²
Kenyeri
Eladó családi ház

Kenyeri

21.8 M Ft
2 szoba
75 m²