Oasis Residence

Eladó családi ház
Veszprém

+ 3 kép 1/6
190 500 000 Ft190.5 M Ft 544 286 Ft/m2
6 + 1 szoba
350 m²
építés éve:2026

Részletes adatok

Telekméret: 2390 m2
Fűtés: Elektromos
Komfort: Duplakomfortos
Energetikai besorolás: Nem adta meg a hirdető

Az OTP Bank lakáshitel ajánlataFizetett hirdetés

+36 70 393
Ranga Gabriella
OTP Ingatlanpont Veszprém

Érdekel az OTP Bank kedvezményes lakáshitel ajánlata? *

* A kérdésre „Igen” válasz bejelölése esetén, az „Üzenet küldése” gombra kattintva kijelentem, hogy az OTP Bank Nyrt. Adatkezelési tájékoztatójának tartalmát megismertem és tudomásul vettem.

Eladó családi ház leírása

Panorámás, modern családi villa a Gulya-domb szomszédságában.

Veszprém egyik kiemelt, kertvárosias részén, a Veszprémvölgyi úton kínálunk megvételre egy engedélyezett tervek alapján megvalósítható, modern megjelenésű, kétszintes családi házat, 2.391 m?-es telken, a Gulya-domb közvetlen szomszédságában.

Az ingatlan a természetközeli életérzést és a városi kényelem elérhetőségét egyesíti - tágas terekkel, nagy teraszokkal és átgondolt funkcionális elrendezéssel.

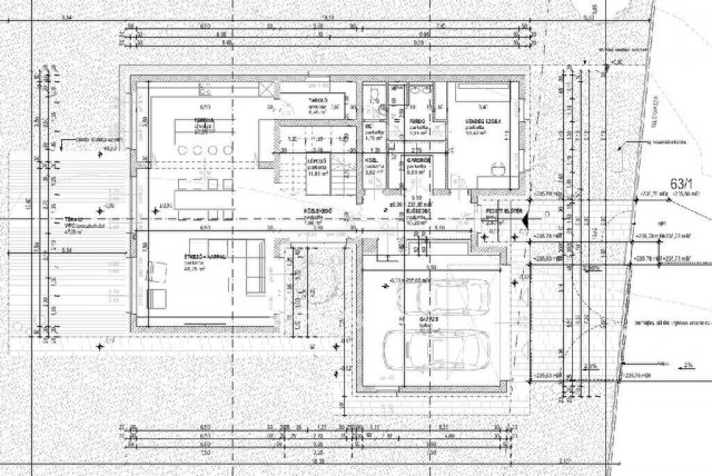
Az épület hasznos alapterülete: 297,65 m2 + 70 m2 terasz + 40 m2 garázs
Szintek száma: 2

Földszint - nagyvonalú közösségi terek és közvetlen kertkapcsolat
-Dupla garázs: 40 m2
-48,75 m2-es nappali + étkező
-26,23 m2-es konyha
-Vendégszoba saját fürdővel
-Tároló, gardrób
-47 m2-es terasz, prémium WPC teraszburkolattal
A földszinti nappali és étkező közvetlen kapcsolata a nagyméretű, 47 m2-es WPC burkolatú terasszal kiváló lehetőséget biztosít családi és baráti összejövetelekhez, kültéri étkezésekhez.

Emelet - privát élettér teraszkapcsolattal
-Szülői háló saját fürdőszobával és gardróbbal
-Két gyerekszoba
-Külön fürdőszoba
-Gardrób / pánikszoba
-Gépészeti helyiség
-23 m2-es emeleti terasz
Az emeleti, 23 m2-es terasz intim, panorámás pihenőtérként funkcionálhat ideális reggeli kávéhoz vagy esti kikapcsolódáshoz.

Műszaki tartalom - korszerű és energiahatékony megoldások
-Levegős hőszivattyús rendszer fűtésre és hűtésre
-Padlófűtés és fan-coil rendszer
-Napelemes rendszer előkészítés
-15 cm homlokzati hőszigetelés
-Korszerű, hőszigetelt nyílászárók (?1,15 W/m2K)
-Csapadékvíz gyűjtés és részbeni újrahasznosítás

Lokáció - természetközeli, mégis központi

Az ingatlan a Gulya-domb szomszédságában található, csendes, zöldövezeti környezetben.

Távolságok:
Óváros tér: 2,8 km
Balaton Pláza: 3,5 km
Interspar: 5 km

Így a történelmi belváros, bevásárlási lehetőségek és mindennapi szolgáltatások néhány perc alatt elérhetők.
Kinek ideális?
-Többgyermekes családnak
-Otthoni munkavégzésre is alkalmas életteret keresőknek
-Prémium minőséget és nagy telket kereső vevőknek
-Hosszú távon értékálló ingatlant kereső befektetőknek

Fontos információ az árra és készültségre vonatkozóan:
Az irányár a jelenlegi, szerkezetkész állapotra vonatkozik. Az ingatlan befejezése folyamatban van, amely a leendő tulajdonos igényei szerint alakítható. A befejezéshez két kivitelezőtől is rendelkezésre áll részletes ajánlat, így a további munkálatok tervezhetően és ellenőrizhető költségek mellett valósíthatók meg.

Az ingatlan az OTP Ingatlanpont kínálatában érhető el, OTP bankcsoporti háttérrel, amely biztonságos és átlátható ügyintézést biztosít.

Amennyiben szeretné részletesen megismerni a terveket vagy személyesen is megtekintené a telket, kérem keressen bizalommal.

Az energetikai tanúsítvány készítése folyamatban van, amint rendelkezésre áll, úgy azzal a hirdetés frissítésre kerül.

190500000 Ft

Referencia szám: M324306

Hirdetés feltöltve: 2026. 04. 04. Utoljára módosítva: 2026. 05. 25.

Az ingatlan elhelyezkedése

Cím: Veszprém

Eladó családi házak a környékről

Veszprém
Eladó családi ház

Veszprém

139.8 M Ft
4 szoba
157 m²
Várpalota
Eladó családi ház

Várpalota

55 M Ft
4 + 2 szoba
113 m²
Várpalota
Eladó családi ház

Várpalota

156.7 M Ft
4 szoba
130 m²
Veszprém, Dózsaváros
Eladó családi ház

Veszprém

300 M Ft
5 szoba
320 m²
Veszprém
Eladó családi ház

Veszprém

149 M Ft
6 + 1 szoba
243 m²
Monoszló
Eladó családi ház

Monoszló

1759.884 M Ft
9 szoba
2250 m²
Veszprém
Eladó családi ház

Veszprém

149 M Ft
4 + 1 szoba
250 m²
Veszprém
Eladó családi ház

Veszprém

219.9 M Ft
3 + 3 szoba
218 m²
Monoszló
Eladó családi ház

Monoszló

1759.884 M Ft
9 szoba
2250 m²
Veszprém
Eladó családi ház

Veszprém

259.9 M Ft
7 szoba
285 m²
Veszprém
Eladó családi ház

Veszprém

150 M Ft
2 + 2 szoba
100 m²
Veszprém
Eladó családi ház

Veszprém

149 M Ft
4 + 1 szoba
250 m²
Veszprém
Eladó családi ház

Veszprém

80 M Ft
3 + 3 szoba
112 m²
Balatonakarattya
Eladó családi ház

Balatonakarattya

169 M Ft
4 szoba
149 m²
Tihany
Eladó családi ház

Tihany

390 M Ft
6 szoba
417 m²
Várpalota
Eladó családi ház

Várpalota

156.7 M Ft
4 szoba
130 m²
Veszprém, Belváros, Festő utca
Eladó családi ház

Veszprém

149 M Ft
5 + 1 szoba
195 m²
Monoszló
Eladó családi ház

Monoszló

1759.884 M Ft
9 szoba
2250 m²
Pápa
Eladó családi ház

Pápa

39.9 M Ft
4 + 1 szoba
148 m²
Lesencetomaj
Eladó családi ház

Lesencetomaj

90 M Ft
5 + 1 szoba
180 m²
Balatonalmádi
Eladó családi ház

Balatonalmádi

330 M Ft
4 szoba
249 m²
Dörgicse
Eladó családi ház

Dörgicse

39.9 M Ft
2 + 1 szoba
66 m²
Veszprém
Eladó családi ház

Veszprém

189.99 M Ft
7 szoba
180 m²
Veszprém
Eladó családi ház

Veszprém

149.9 M Ft
8 + 2 szoba
295 m²

Falusi CSOK ingatlanok

Hévízgyörk
Eladó családi ház

Hévízgyörk

94.8 M Ft
8 szoba
254 m²
Tápiószőlős
Eladó családi ház

Tápiószőlős

39.9 M Ft
4 szoba
120 m²
Szentmártonkáta
Eladó családi ház

Szentmártonkáta

53 M Ft
2 szoba
120 m²
Somlóvásárhely
Eladó családi ház

Somlóvásárhely

41.9 M Ft
3 szoba
103 m²
Tápióbicske
Eladó családi ház

Tápióbicske

37.5 M Ft
2 szoba
70 m²
Somlóvecse
Eladó családi ház

Somlóvecse

44.9 M Ft
3 szoba
113 m²
Törtel
Eladó családi ház

Törtel

31 M Ft
3 szoba
66 m²
Kiskorpád
Eladó családi ház

Kiskorpád

32.5 M Ft
3 szoba
110 m²