Metrodom

Eladó családi ház
Szirmabesenyő

Figyelem!

Ez az ingatlan a 2019.07.01-től induló falusi CSOK által támogatott településen található

+ 17 kép 1/20
89 000 000 Ft89 M Ft 563 291 Ft/m2
3 + 2 szoba
158 m2
építés éve:1995

Részletes adatok

Telekméret: 703 m2
Fűtés: Gázkazán
Energetikai besorolás: Nem adta meg a hirdető

Az OTP Bank lakáshitel ajánlataFizetett hirdetés

+36 70 770
Lenkóné Szarka Erika
OTP Ingatlanpont Miskolc Szemere

Érdekel az OTP Bank kedvezményes lakáshitel ajánlata? *

* A kérdésre „Igen” válasz bejelölése esetén, az „Üzenet küldése” gombra kattintva kijelentem, hogy az OTP Bank Nyrt. Adatkezelési tájékoztatójának tartalmát megismertem és tudomásul vettem.

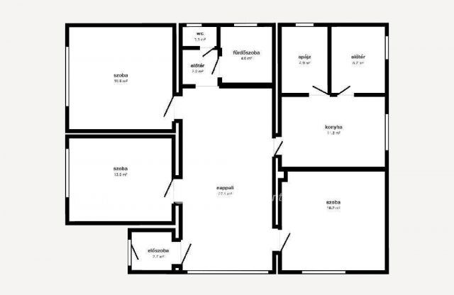
Eladó családi ház leírása

Szirmabesenyő központjában KÉTGENERÁCIÓS, KORSZERŰSÍTETT, 2 szintes családi ház eladó 702m2 telken, 62m2 pincével, 18m2 aknás garázzsal, hátsó terasszal, füves udvarral. ENERGIATAKARÉKOS: HŐSZIGETELT nyílászárók, 15 cm SZIGETELÉS és felújított fűtés és elektromos hálózat. KÉT KÜLÖN LAKRÉSSZEL rendelkezik, két külön bejárattal és mérőórákkal. Alsó szint 98m2 alapterületén 3 szoba, tágas nappali, konyha, kamra, fürdőszoba, külön WC és előszoba található. Felső szint a tetőtérben 60m2 hasznos alapterületű, teljes értékű otthon, külön bejárattal, itt 2 szoba, nappali, étkező, konyha, fürdő+WC, terasz, előszoba van hűtő-fűtő KLÍMÁVAL, saját víz- és villanyórával felszerelve. A ház alsó szintje 1995-ben épült szilikátból és téglából, majd 2001-ben kialakításra került a felső szint is. Az egész ház 15cm külső szigetelést kapott, redőnnyel felszerelt hőszigetelt műanyag ablakokat és ajtókat építettek be. Az otthon melegét gázkazán biztosítja, 2019-ben fűtéskorszerűsítés keretében cserélték a radiátorokat is. 2020-ben víz- és villanyvezeték teljes cseréje, majd 2022-ben fürdőszoba teljes felújítása és villanybojler csere történt. Kiváló elhelyezkedés: buszmegálló, bölcsőde, óvoda, iskola, bolt, pékség, posta pár perc sétára van. Ez a gondosan karbantartott, kétgenerációs családi ház ideális választás nagycsaládosoknak, befektetőknek vagy mindazoknak, akik szeretnék, ha együtt élhetne a család két nemzedéke, mégis külön életterekkel. A felső szint saját bejárata és külön mérőórái lehetővé teszik, hogy akár kiadásra, akár külön családi lakrésznek használható legyen. Ingatlanirodánk ügyvédi háttérrel, babaváró hitel, falusi CSOK, CSOK Plusz, OTTHON START 3%-os hitel, valamint kamatkedvezményes hitel ügyintézésével támogatja ügyfelei ingatlanvásárlását! Érdeklődés esetén hivatkozzon az M314108 referencia számra!

Referencia szám: M314108

Hirdetés feltöltve: 2025. 11. 02. Utoljára módosítva: 2025. 11. 05.

5 szobás családi házak ára Szirmabesenyőn

Ebből az összehasonlításból megtudhatod, hogyan viszonyul a lakás ára a környékbeli családi házak átlagos árához. Ez nem azt jelenti, hogy ennyivel olcsóbb vagy drágább, mint amennyit a lakás ér, hanem hogy ennyivel tér el a környékbeli átlagtól.

Ennek a m² ára
Szirmabesenyő m² ár
563 e Ft
263 e Ft -114%
Ennek az ára
Szirmabesenyő átlagár
89 M Ft m Ft
38.9 m Ft -129%

Az ingatlan elhelyezkedése

Cím: Szirmabesenyő

Eladó ingatlanok a környékről

Eladó családi ház
Eladó családi ház

Szirmabesenyő

89 M Ft
3 + 2 szoba
158 m2
Eladó családi ház
Eladó családi ház

Szirmabesenyő

32.5 M Ft
3 szoba
98 m2
Eladó családi ház
Eladó családi ház

Putnok

11 M Ft
3 szoba
79 m2
Eladó téglalakás
Eladó téglalakás

Miskolc

27 M Ft
2 szoba
53 m2
Eladó családi ház
Eladó családi ház

Szirmabesenyő

50.9 M Ft
4 szoba
150 m2
Eladó családi ház
Eladó családi ház

Gönc

26 M Ft
3 szoba
130 m2
Eladó családi ház
Eladó családi ház

Ózd

13 M Ft
5 szoba
150 m2
Eladó családi ház
Eladó családi ház

Szirmabesenyő

89 M Ft
3 + 2 szoba
158 m2
Eladó családi ház
Eladó családi ház

Tarcal

19.9 M Ft
3 szoba
110 m2
Eladó családi ház
Eladó családi ház

Gönc

20.5 M Ft
2 szoba
80 m2
Eladó családi ház
Eladó családi ház

Szirmabesenyő

89 M Ft
3 + 2 szoba
158 m2
Eladó családi ház
Eladó családi ház

Miskolc, Vargahegy, Margaréta utca

14.5 M Ft
1 szoba
42 m2
Eladó családi ház
Eladó családi ház

Szirmabesenyő

89 M Ft
3 + 2 szoba
158 m2
Eladó családi ház
Eladó családi ház

Szirmabesenyő

109 M Ft
700 m²
220 m2
Eladó családi ház
Eladó családi ház

Kurityán

15.8 M Ft
3 szoba
68 m2
Eladó családi ház
Eladó családi ház

Miskolc

25.9 M Ft
4 szoba
148 m2
Eladó nyaraló
Eladó nyaraló

Mályi

31.9 M Ft
2 szoba
56 m2
Eladó családi ház
Eladó családi ház

Szirmabesenyő

85 M Ft
2 szoba
120 m2
Eladó családi ház
Eladó családi ház

Ózd

25.99 M Ft
4 szoba
198 m2
Eladó családi ház
Eladó családi ház

Taktaszada, Thököly utca

37 M Ft
4 + 1 szoba
190 m2
Eladó családi ház
Eladó családi ház

Ózd

14.7 M Ft
3 szoba
95 m2
Eladó családi ház
Eladó családi ház

Nemesbikk, Kossuth utca 3

4.5 M Ft
2 szoba
80 m2
Eladó családi ház
Eladó családi ház

Szirmabesenyő

58 M Ft
5 szoba
127 m2
Eladó panellakás
Eladó panellakás

Miskolc

53 M Ft
3 szoba
73 m2

Falusi CSOK ingatlanok

Eladó családi ház
Eladó családi ház

Mocsa

24.9 M Ft
2 + 1 szoba
53 m2
Eladó családi ház
Eladó családi ház

Újszilvás

20.9 M Ft
3 szoba
66 m2
Eladó családi ház
Eladó családi ház

Gyömöre

45.99 M Ft
2 szoba
118 m2
Eladó családi ház
Eladó családi ház

Püspökhatvan

44.9 M Ft
3 szoba
80 m2
Eladó családi ház
Eladó családi ház

Fülöpszállás

299 M Ft
14 + 5 szoba
680 m2
Eladó családi ház
Eladó családi ház

Nagybörzsöny

36 M Ft
2 + 1 szoba
74 m2
Eladó családi ház
Eladó családi ház

Szabadbattyán

136 M Ft
5 szoba
226 m2
Eladó családi ház
Eladó családi ház

Pécsely, Szőlő Dülő

499 M Ft
4 + 2 szoba
183 m2

Falusi CSOK ingatlanok

Eladó családi ház
Eladó családi ház

Ábrahámhegy

139 M Ft
4 szoba
106 m2
Eladó családi ház
Eladó családi ház

Vasvár

64.9 M Ft
3 szoba
91 m2
Eladó családi ház
Eladó családi ház

Szarvaskend

26.9 M Ft
2 szoba
83 m2
Eladó családi ház
Eladó családi ház

Nagybörzsöny

36 M Ft
2 + 1 szoba
74 m2
Eladó családi ház
Eladó családi ház

Darnózseli

49.9 M Ft
5 szoba
150 m2
Eladó családi ház
Eladó családi ház

Újszilvás

22.5 M Ft
2 szoba
65 m2
Eladó családi ház
Eladó családi ház

Tápiógyörgye

33 M Ft
3 + 2 szoba
140 m2
Eladó családi ház
Eladó családi ház

Balatonfenyves

430 M Ft
4 szoba
274 m2