River Life

Eladó családi ház
Szirmabesenyő

Figyelem!

Ez az ingatlan a 2019.07.01-től induló falusi CSOK által támogatott településen található

+ 17 kép 1/20
89 000 000 Ft89 M Ft 563 291 Ft/m2
3 + 2 szoba
158 m2
építés éve:1995

Részletes adatok

Telekméret: 703 m2
Fűtés: Gázkazán
Energetikai besorolás: Nem adta meg a hirdető

Az OTP Bank lakáshitel ajánlataFizetett hirdetés

+36 70 886
Nagy Krisztina
OTP Ingatlanpont Miskolc Szemere

Érdekel az OTP Bank kedvezményes lakáshitel ajánlata? *

* A kérdésre „Igen” válasz bejelölése esetén, az „Üzenet küldése” gombra kattintva kijelentem, hogy az OTP Bank Nyrt. Adatkezelési tájékoztatójának tartalmát megismertem és tudomásul vettem.

Eladó családi ház leírása

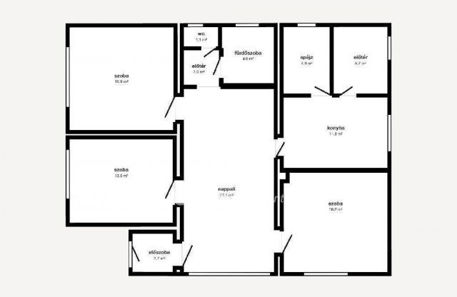
Szirmabesenyő központjában KÉTGENERÁCIÓS, KORSZERŰSÍTETT, 2 szintes családi ház eladó 702m2 telken, 62m2 pincével, 18m2 aknás garázzsal, hátsó terasszal, füves udvarral. ENERGIATAKARÉKOS: HŐSZIGETELT nyílászárók, 15 cm SZIGETELÉS és felújított fűtés és elektromos hálózat. KÉT KÜLÖN LAKRÉSSZEL rendelkezik, két külön bejárattal és mérőórákkal. Alsó szint 98m2 alapterületén 3 szoba, tágas nappali, konyha, kamra, fürdőszoba, külön WC és előszoba található. Felső szint a tetőtérben 60m2 hasznos alapterületű, teljes értékű otthon, külön bejárattal, itt 2 szoba, nappali, étkező, konyha, fürdő+WC, terasz, előszoba van hűtő-fűtő KLÍMÁVAL, saját víz- és villanyórával felszerelve. A ház alsó szintje 1995-ben épült szilikátból és téglából, majd 2001-ben kialakításra került a felső szint is. Az egész ház 15cm külső szigetelést kapott, redőnnyel felszerelt hőszigetelt műanyag ablakokat és ajtókat építettek be. Az otthon melegét gázkazán biztosítja, 2019-ben fűtéskorszerűsítés keretében cserélték a radiátorokat is. 2020-ben víz- és villanyvezeték teljes cseréje, majd 2022-ben fürdőszoba teljes felújítása és villanybojler csere történt. Kiváló elhelyezkedés: buszmegálló, bölcsőde, óvoda, iskola, bolt, pékség, posta pár perc sétára van. Ez a gondosan karbantartott, kétgenerációs családi ház ideális választás nagycsaládosoknak, befektetőknek vagy mindazoknak, akik szeretnék, ha együtt élhetne a család két nemzedéke, mégis külön életterekkel. A felső szint saját bejárata és külön mérőórái lehetővé teszik, hogy akár kiadásra, akár külön családi lakrésznek használható legyen. Ingatlanirodánk ügyvédi háttérrel, babaváró hitel, falusi CSOK, CSOK Plusz, OTTHON START 3%-os hitel, valamint kamatkedvezményes hitel ügyintézésével támogatja ügyfelei ingatlanvásárlását! Érdeklődés esetén hivatkozzon az M314108 referencia számra!

Hirdetés feltöltve: 2025. 11. 10.

5 szobás családi házak ára Szirmabesenyőn

Ebből az összehasonlításból megtudhatod, hogyan viszonyul a lakás ára a környékbeli családi házak átlagos árához. Ez nem azt jelenti, hogy ennyivel olcsóbb vagy drágább, mint amennyit a lakás ér, hanem hogy ennyivel tér el a környékbeli átlagtól.

Ennek a m² ára
Szirmabesenyő m² ár
563 e Ft
263 e Ft -114%
Ennek az ára
Szirmabesenyő átlagár
89 M Ft m Ft
38.9 m Ft -129%

Az ingatlan elhelyezkedése

Cím: Szirmabesenyő

Eladó ingatlanok a környékről

Eladó családi ház
Eladó családi ház

Taktaharkány, Magtár utca

9.9 M Ft
3 szoba
100 m2
Eladó családi ház
Eladó családi ház

Miskolc

25.9 M Ft
4 szoba
148 m2
Eladó családi ház
Eladó családi ház

Ózd, Ózd falu, 48-as út

39.9 M Ft
3 + 1 szoba
300 m2
Eladó családi ház
Eladó családi ház

Gönc, Kossuth Lajos utca

26 M Ft
2 + 1 szoba
130 m2
Eladó családi ház
Eladó családi ház

Nemesbikk, Kossuth utca 3

4.5 M Ft
2 szoba
80 m2
Eladó családi ház
Eladó családi ház

Miskolc

139.9 M Ft
4 + 1 szoba
230 m2
Eladó családi ház
Eladó családi ház

Miskolc

25.9 M Ft
4 szoba
148 m2
Eladó családi ház
Eladó családi ház

Szirmabesenyő

89 M Ft
3 + 2 szoba
158 m2
Eladó családi ház
Eladó családi ház

Miskolc

149 M Ft
4 szoba
463 m2
Eladó családi ház
Eladó családi ház

Szirmabesenyő

50.9 M Ft
4 szoba
150 m2
Eladó családi ház
Eladó családi ház

Tiszalúc

19.9 M Ft
4 szoba
180 m2
Eladó családi ház
Eladó családi ház

Szirmabesenyő

89 M Ft
3 + 2 szoba
158 m2
Eladó családi ház
Eladó családi ház

Szirmabesenyő

85 M Ft
2 szoba
120 m2
Eladó családi ház
Eladó családi ház

Szirmabesenyő

109 M Ft
700 m²
220 m2
Eladó családi ház
Eladó családi ház

Szirmabesenyő

58 M Ft
4 + 1 szoba
130 m2
Eladó családi ház
Eladó családi ház

Putnok

11 M Ft
3 szoba
79 m2
Eladó családi ház
Eladó családi ház

Ózd

25.99 M Ft
4 szoba
198 m2
Eladó családi ház
Eladó családi ház

Kesznyéten, Sajó utca 9

7.9 M Ft
3 szoba
85 m2
Eladó családi ház
Eladó családi ház

Onga

58.9 M Ft
4 szoba
110 m2
Eladó családi ház
Eladó családi ház

Kurityán

15.8 M Ft
3 szoba
68 m2
Eladó sorház
Eladó sorház

Miskolc

58 M Ft
2 szoba
85 m2
Eladó családi ház
Eladó családi ház

Gönc

20.5 M Ft
2 szoba
80 m2
Eladó családi ház
Eladó családi ház

Taktaszada, Thököly utca

37 M Ft
4 + 1 szoba
190 m2
Eladó családi ház
Eladó családi ház

Szirmabesenyő

32.5 M Ft
3 szoba
98 m2

Falusi CSOK ingatlanok

Eladó családi ház
Eladó családi ház

Harkakötöny

27.5 M Ft
3 szoba
115 m2
Eladó téglalakás
Eladó téglalakás

Csorvás

10.6 M Ft
2 szoba
67 m2
Eladó családi ház
Eladó családi ház

Mezőkeresztes

23.9 M Ft
2 + 1 szoba
82 m2
Eladó családi ház
Eladó családi ház

Mezőfalva

14.5 M Ft
3 szoba
76 m2
Eladó családi ház
Eladó családi ház

Nagybaracska

4.599 M Ft
3 szoba
120 m2
Eladó téglalakás
Eladó téglalakás

Balatonszemes

202 M Ft
3 szoba
154 m2
Eladó családi ház
Eladó családi ház

Kemence, Fő utca

25 M Ft
3 szoba
91 m2
Eladó családi ház
Eladó családi ház

Iváncsa

73.9 M Ft
1 + 3 szoba
97 m2

Falusi CSOK ingatlanok

Eladó családi ház
Eladó családi ház

Nemesszentandrás

75 M Ft
4 szoba
164 m2
Eladó családi ház
Eladó családi ház

Galgagyörk

69.9 M Ft
3 szoba
110 m2
Eladó családi ház
Eladó családi ház

Szalánta

149.9 M Ft
10 szoba
301 m2
Eladó családi ház
Eladó családi ház

Onga

65 M Ft
5 szoba
168 m2
Eladó családi ház
Eladó családi ház

Badacsonytomaj

199.8 M Ft
3 szoba
166 m2
Eladó családi ház
Eladó családi ház

Vácszentlászló

46 M Ft
41 + 1 szoba
100 m2
Eladó családi ház
Eladó családi ház

Cece

23.5 M Ft
2 szoba
56 m2
Eladó családi ház
Eladó családi ház

Jakabszállás

62.9 M Ft
4 szoba
91 m2