Stay Family Park

Eladó családi ház
Szirmabesenyő

Figyelem!

Ez az ingatlan a 2019.07.01-től induló falusi CSOK által támogatott településen található

+ 17 kép 1/20
89 000 000 Ft89 M Ft 563 291 Ft/m2
3 + 2 szoba
158 m2
építés éve:1995

Részletes adatok

Telekméret: 703 m2
Fűtés: Gázkazán
Energetikai besorolás: Nem adta meg a hirdető

Az OTP Bank lakáshitel ajánlataFizetett hirdetés

+36 30 590
Drótos Bence
OTP Ingatlanpont Miskolc Szemere

Érdekel az OTP Bank kedvezményes lakáshitel ajánlata? *

* A kérdésre „Igen” válasz bejelölése esetén, az „Üzenet küldése” gombra kattintva kijelentem, hogy az OTP Bank Nyrt. Adatkezelési tájékoztatójának tartalmát megismertem és tudomásul vettem.

Eladó családi ház leírása

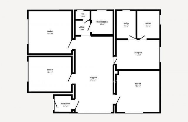
Szirmabesenyő központjában KÉTGENERÁCIÓS, KORSZERŰSÍTETT, 2 szintes családi ház eladó 702m2 telken, 62m2 pincével, 18m2 aknás garázzsal, hátsó terasszal, füves udvarral. ENERGIATAKARÉKOS: HŐSZIGETELT nyílászárók, 15 cm SZIGETELÉS és felújított fűtés és elektromos hálózat. KÉT KÜLÖN LAKRÉSSZEL rendelkezik, két külön bejárattal és mérőórákkal. Alsó szint 98m2 alapterületén 3 szoba, tágas nappali, konyha, kamra, fürdőszoba, külön WC és előszoba található. Felső szint a tetőtérben 60m2 hasznos alapterületű, teljes értékű otthon, külön bejárattal, itt 2 szoba, nappali, étkező, konyha, fürdő+WC, terasz, előszoba van hűtő-fűtő KLÍMÁVAL, saját víz- és villanyórával felszerelve. A ház alsó szintje 1995-ben épült szilikátból és téglából, majd 2001-ben kialakításra került a felső szint is. Az egész ház 15cm külső szigetelést kapott, redőnnyel felszerelt hőszigetelt műanyag ablakokat és ajtókat építettek be. Az otthon melegét gázkazán biztosítja, 2019-ben fűtéskorszerűsítés keretében cserélték a radiátorokat is. 2020-ben víz- és villanyvezeték teljes cseréje, majd 2022-ben fürdőszoba teljes felújítása és villanybojler csere történt. Kiváló elhelyezkedés: buszmegálló, bölcsőde, óvoda, iskola, bolt, pékség, posta pár perc sétára van. Ez a gondosan karbantartott, kétgenerációs családi ház ideális választás nagycsaládosoknak, befektetőknek vagy mindazoknak, akik szeretnék, ha együtt élhetne a család két nemzedéke, mégis külön életterekkel. A felső szint saját bejárata és külön mérőórái lehetővé teszik, hogy akár kiadásra, akár külön családi lakrésznek használható legyen. Ingatlanirodánk ügyvédi háttérrel, babaváró hitel, falusi CSOK, CSOK Plusz, OTTHON START 3%-os hitel, valamint kamatkedvezményes hitel ügyintézésével támogatja ügyfelei ingatlanvásárlását! Érdeklődés esetén hivatkozzon az M314108 referencia számra!

Hirdetés feltöltve: 2025. 11. 06.

5 szobás családi házak ára Szirmabesenyőn

Ebből az összehasonlításból megtudhatod, hogyan viszonyul a lakás ára a környékbeli családi házak átlagos árához. Ez nem azt jelenti, hogy ennyivel olcsóbb vagy drágább, mint amennyit a lakás ér, hanem hogy ennyivel tér el a környékbeli átlagtól.

Ennek a m² ára
Szirmabesenyő m² ár
563 e Ft
263 e Ft -114%
Ennek az ára
Szirmabesenyő átlagár
89 M Ft m Ft
38.9 m Ft -129%

Az ingatlan elhelyezkedése

Cím: Szirmabesenyő

Eladó ingatlanok a környékről

Eladó családi ház
Eladó családi ház

Putnok

11 M Ft
3 szoba
79 m2
Eladó családi ház
Eladó családi ház

Nemesbikk, Kossuth utca 3

4.5 M Ft
2 szoba
80 m2
Eladó családi ház
Eladó családi ház

Szikszó

89.9 M Ft
3 szoba
100 m2
Eladó családi ház
Eladó családi ház

Miskolc

99 M Ft
6 szoba
240 m2
Eladó családi ház
Eladó családi ház

Ózd, Ózd falu, 48-as út

39.9 M Ft
3 + 1 szoba
300 m2
Eladó családi ház
Eladó családi ház

Trizs

9 M Ft
1 + 3 szoba
105 m2
Eladó családi ház
Eladó családi ház

Szirmabesenyő

89 M Ft
3 + 2 szoba
158 m2
Eladó családi ház
Eladó családi ház

Miskolc

25.9 M Ft
4 szoba
148 m2
Eladó családi ház
Eladó családi ház

Taktaszada, Thököly utca

37 M Ft
4 + 1 szoba
190 m2
Eladó családi ház
Eladó családi ház

Ózd

26.5 M Ft
3 szoba
100 m2
Eladó családi ház
Eladó családi ház

Ózd

25.99 M Ft
4 szoba
198 m2
Eladó családi ház
Eladó családi ház

Szirmabesenyő

85 M Ft
2 szoba
120 m2
Eladó téglalakás
Eladó téglalakás

Miskolc

59.9 M Ft
3 szoba
74 m2
Eladó családi ház
Eladó családi ház

Bodrogkisfalud

59.99 M Ft
5 + 1 szoba
122 m2
Eladó családi ház
Eladó családi ház

Miskolc

139.9 M Ft
4 + 1 szoba
230 m2
Eladó családi ház
Eladó családi ház

Szirmabesenyő

89 M Ft
3 + 2 szoba
158 m2
Eladó családi ház
Eladó családi ház

Gönc, Kossuth Lajos utca

26 M Ft
2 + 1 szoba
130 m2
Eladó családi ház
Eladó családi ház

Taktaharkány, Magtár utca

9.9 M Ft
3 szoba
100 m2
Eladó családi ház
Eladó családi ház

Gönc

20.5 M Ft
2 szoba
80 m2
Eladó családi ház
Eladó családi ház

Miskolc

25.9 M Ft
4 szoba
148 m2
Eladó családi ház
Eladó családi ház

Szirmabesenyő

32.5 M Ft
3 szoba
98 m2
Eladó téglalakás
Eladó téglalakás

Miskolc

34.9 M Ft
2 szoba
56 m2
Eladó panellakás
Eladó panellakás

Miskolc

28.5 M Ft
2 szoba
49 m2
Eladó családi ház
Eladó családi ház

Szirmabesenyő

85 M Ft
2 szoba
120 m2

Falusi CSOK ingatlanok

Eladó családi ház
Eladó családi ház

Csengőd, Tompa Mihály utca

34 M Ft
2 szoba
81 m2
Eladó családi ház
Eladó családi ház

Kóny, Kazinczy utca

78.9 M Ft
3 szoba
170 m2
Eladó családi ház
Eladó családi ház

Ságvár

59.9 M Ft
3 szoba
87 m2
Eladó családi ház
Eladó családi ház

Kaposgyarmat

695 M Ft
6 szoba
610 m2
Eladó családi ház
Eladó családi ház

Látrány

39.9 M Ft
1 szoba
52 m2
Eladó családi ház
Eladó családi ház

Nagyberény

24.9 M Ft
3 szoba
62 m2
Eladó családi ház
Eladó családi ház

Tápszentmiklós

64.9 M Ft
5 szoba
110 m2
Eladó családi ház
Eladó családi ház

Bágyogszovát

21.499 M Ft
2 szoba
67 m2

Falusi CSOK ingatlanok

Eladó családi ház
Eladó családi ház

Szalánta

149.9 M Ft
10 szoba
301 m2
Eladó családi ház
Eladó családi ház

Törtel

14 M Ft
3 + 2 szoba
55 m2
Eladó családi ház
Eladó családi ház

Szabadbattyán

30 M Ft
4 szoba
75 m2
Eladó családi ház
Eladó családi ház

Onga

46.8 M Ft
4 szoba
103 m2
Eladó családi ház
Eladó családi ház

Gyékényes

35.9 M Ft
5 szoba
205 m2
Eladó családi ház
Eladó családi ház

Berzence

69.9 M Ft
6 szoba
257 m2
Eladó családi ház
Eladó családi ház

Lesencetomaj

67.9 M Ft
3 szoba
90 m2
Eladó családi ház
Eladó családi ház

Látrány

39.9 M Ft
1 szoba
52 m2