BAM Living

Eladó családi ház
Bodrogkisfalud

Figyelem!

Ez az ingatlan a 2019.07.01-től induló falusi CSOK által támogatott településen található

+ 17 kép 1/20
59 990 000 Ft59.99 M Ft 491 721 Ft/m2
5 + 1 szoba
122 m2

Részletes adatok

Telekméret: 1491 m2
Fűtés: Gázkazán
Parkolás: Garázs
Közmű: Víz, Gáz, Villany, Csatorna
Energetikai besorolás: Nem adta meg a hirdető

Az OTP Bank lakáshitel ajánlataFizetett hirdetés

+36 70 698
Szőlősi Zsuzsanna Edina EV.
Szőlősi Zsuzsanna Edina EV.

Érdekel az OTP Bank kedvezményes lakáshitel ajánlata? *

* A kérdésre „Igen” válasz bejelölése esetén, az „Üzenet küldése” gombra kattintva kijelentem, hogy az OTP Bank Nyrt. Adatkezelési tájékoztatójának tartalmát megismertem és tudomásul vettem.

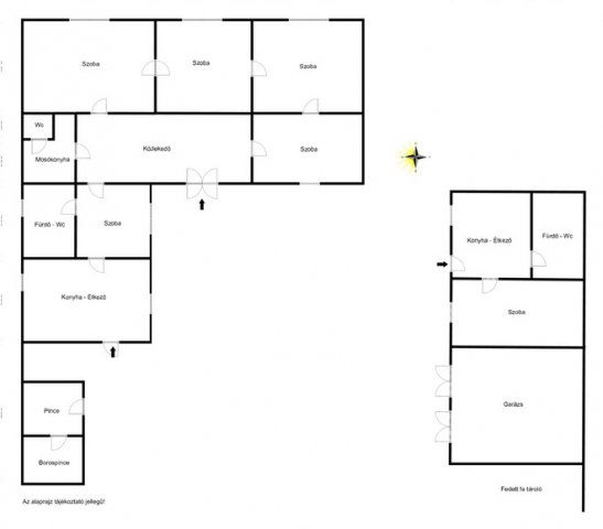
Eladó családi ház leírása

Nyugodt, csendes környezetben, Tokajtól mindössze 9,9 km-re, kb. 15 perc autóútra kínálunk megvételre egy kivételes adottságokkal rendelkező, 122 m²-es családi házat, 1491 m²-es összközműves telken. A ház stabil, masszív szerkezetű: falazata faragott kőből és keresztúri blokkból készült, 15 cm-es szigeteléssel, így energiatakarékos és időtálló.

Főbb jellemzők:

- Hőszigetelt fa nyílászárók szúnyoghálóval és redőnnyel
- Gázkazán és vegyes tüzelésű kazán fűtés, 750 l-es puffer tartállyal
- Klíma, riasztórendszer, fúrt kút
- Konyha alatt pince + borospince
- Kelet-nyugati fekvés, napfényes terek

Helyiségek:
- 5 szoba
- Közlekedő
- Konyha-étkező
- Fürdőszoba-WC
- Mosókonyha-WC

A ház bútorozottan, azonnal költözhető állapotban várja új tulajdonosát. Teljesen tehermentes!

Különálló lakrész:

A telken található egy külön bejáratú lakrész is, amely 1 szobából, konyhából és fürdőszobából áll. Ideális vállalkozás indítására, vendégháznak vagy akár két generáció összeköltözésére.

Külső épületek:
- 2 állásos garázs
- Fedett fa tároló

Ez az ingatlan tökéletes választás mindazoknak, akik csendes, természetközeli környezetben, mégis Tokaj közelségében keresnek otthont vagy befektetési lehetőséget.

Ne hagyja ki – kérjen időpontot megtekintésre még ma!

Hirdetés feltöltve: 2025. 11. 06. Utoljára módosítva: 2025. 11. 06.

Az ingatlan elhelyezkedése

Cím: Bodrogkisfalud

Eladó ingatlanok a környékről

Eladó családi ház
Eladó családi ház

Kurityán

15.8 M Ft
3 szoba
68 m2
Eladó családi ház
Eladó családi ház

Ózd, Ózd falu, 48-as út

39.9 M Ft
3 + 1 szoba
300 m2
Eladó családi ház
Eladó családi ház

Bodrogkisfalud

16 M Ft
1 szoba
60 m2
Eladó családi ház
Eladó családi ház

Bodrogkisfalud

47 M Ft
2 szoba
57 m2
Eladó családi ház
Eladó családi ház

Tiszalúc

19.9 M Ft
4 szoba
180 m2
Eladó családi ház
Eladó családi ház

Bogács

36.8 M Ft
2 szoba
64 m2
Eladó családi ház
Eladó családi ház

Miskolc

25.9 M Ft
4 szoba
148 m2
Eladó családi ház
Eladó családi ház

Bodrogkisfalud

26.9 M Ft
10 szoba
470 m2
Eladó családi ház
Eladó családi ház

Bodrogkisfalud

22 M Ft
3 szoba
100 m2
Eladó családi ház
Eladó családi ház

Putnok

11 M Ft
3 szoba
79 m2
Eladó családi ház
Eladó családi ház

Bodrogkisfalud

26.9 M Ft
10 szoba
470 m2
Eladó családi ház
Eladó családi ház

Bodrogkisfalud

29 M Ft
2 + 1 szoba
90 m2
Eladó téglalakás
Eladó téglalakás

Miskolc

32 M Ft
1 szoba
64 m2
Eladó családi ház
Eladó családi ház

Bodrogkisfalud

26.9 M Ft
10 szoba
470 m2
Eladó családi ház
Eladó családi ház

Gönc, Kossuth Lajos utca

26 M Ft
2 + 1 szoba
130 m2
Eladó panellakás
Eladó panellakás

Miskolc

23.99 M Ft
1 + 1 szoba
35 m2
Eladó családi ház
Eladó családi ház

Arnót

34.9 M Ft
3 + 1 szoba
120 m2
Eladó családi ház
Eladó családi ház

Sajószentpéter

34.9 M Ft
2 + 2 szoba
100 m2
Eladó téglalakás
Eladó téglalakás

Miskolc

24.8 M Ft
1 + 1 szoba
42 m2
Eladó családi ház
Eladó családi ház

Ózd

26.5 M Ft
3 szoba
100 m2
Eladó családi ház
Eladó családi ház

Girincs

15.5 M Ft
4 szoba
87 m2
Eladó családi ház
Eladó családi ház

Ózd

13 M Ft
5 szoba
150 m2
Eladó téglalakás
Eladó téglalakás

Miskolc

53 M Ft
3 szoba
67 m2
Eladó téglalakás
Eladó téglalakás

Miskolc

28 M Ft
1 szoba
34 m2

Falusi CSOK ingatlanok

Eladó családi ház
Eladó családi ház

Baksa

61.99 M Ft
3 szoba
100 m2
Eladó családi ház
Eladó családi ház

Törtel

10 M Ft
2 szoba
43 m2
Eladó családi ház
Eladó családi ház

Törtel

25.9 M Ft
5 szoba
95 m2
Eladó családi ház
Eladó családi ház

Nagybörzsöny

36 M Ft
2 + 1 szoba
74 m2
Eladó családi ház
Eladó családi ház

Vásárosdombó

14.99 M Ft
2 szoba
69 m2
Eladó családi ház
Eladó családi ház

Olaszfa

70.38 M Ft
3 szoba
139 m2
Eladó családi ház
Eladó családi ház

Dunaszentbenedek

24.9 M Ft
2 szoba
85 m2
Eladó családi ház
Eladó családi ház

Harsány

14.999 M Ft
4 szoba
80 m2

Falusi CSOK ingatlanok

Eladó családi ház
Eladó családi ház

Somogygeszti

10.9 M Ft
2 szoba
115 m2
Eladó családi ház
Eladó családi ház

Meggyeskovácsi

46.9 M Ft
3 szoba
91 m2
Eladó családi ház
Eladó családi ház

Besnyő

149 M Ft
6 szoba
285 m2
Eladó családi ház
Eladó családi ház

Tanakajd

17.9 M Ft
3 szoba
61 m2
Eladó családi ház
Eladó családi ház

Balatonszárszó

185 M Ft
6 szoba
260 m2
Eladó családi ház
Eladó családi ház

Himesháza

119.9 M Ft
4 szoba
160 m2
Eladó családi ház
Eladó családi ház

Jákfa

14.4 M Ft
3 szoba
70 m2
Eladó családi ház
Eladó családi ház

Márianosztra

85 M Ft
6 szoba
198 m2