Astora Márvány8

Eladó téglalakás
Miskolc, 1. emelet

+ 16 kép 1/19
27 000 000 Ft27 M Ft 509 434 Ft/m2
2 szoba
53 m2
1. emelet
építés éve:1960

Részletes adatok

Állapot: Felújítandó
Fűtés: Gázkonvektor
Energetikai besorolás: Nem adta meg a hirdető

Az OTP Bank lakáshitel ajánlataFizetett hirdetés

+36 20 361
Spéth Gábor György
OTP Ingatlanpont Miskolc Szemere

Érdekel az OTP Bank kedvezményes lakáshitel ajánlata? *

* A kérdésre „Igen” válasz bejelölése esetén, az „Üzenet küldése” gombra kattintva kijelentem, hogy az OTP Bank Nyrt. Adatkezelési tájékoztatójának tartalmát megismertem és tudomásul vettem.

Eladó téglalakás leírása

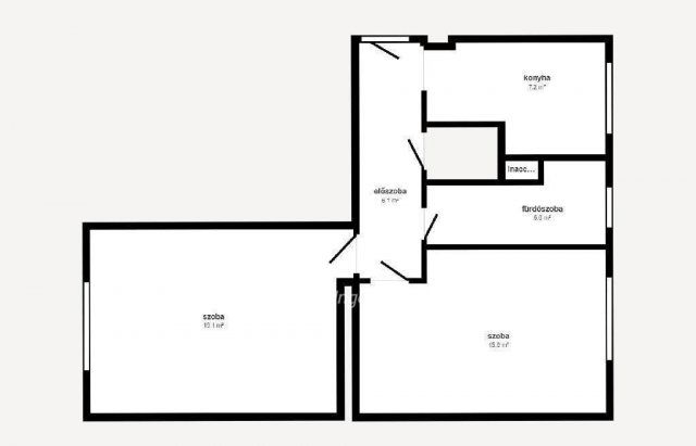
Miskolc kedvelt, jól megközelíthető részén, nyugodt környezetben a Park utcában eladó egy 52 m?-es, első emeleti, 2 szobás téglaépítésű lakás, amely felújítás alatt áll, így az új tulajdonos saját igényei szerint fejezheti be az otthon kialakítását.
A lakás főbb jellemzői:Alapterület: 52 m?, első emelet, 2 külön nyíló szoba, az otthon melegéről gázkonvektor, Meleg víz ellátás: villanybojlerrőll, nyílászárók, korszerű, hőszigetelt műanyag ablakok.
Felújítási munkálatok megkezdve:
Teljes víz- és villanyvezetékcsere megtörtént, a falak frissen vakoltak, festésre előkészítve.
A további burkolatok, szaniterek, belső ajtók, konyhabútor, stb. már az új tulajdonos ízlésére vannak bízva.
A lakás elrendezése jó adottságokkal rendelkezik: két külön nyíló szoba, ablakos konyha, fürdőszoba, WC, közlekedő, így akár kisebb családoknak, pároknak, de befektetésre (kiadásra) is kiváló lehetőség.
Közös költség: alacsony
Parkolás: ingyenes parkolási lehetőség a ház előtt.
A közelben megtalálható minden fontos infrastruktúra: iskola, óvoda, bolt, buszmegálló, orvosi rendelő , kórház ? minden elérhető távolságban.
Ha szeretne olyan otthont, amit teljes mértékben saját elképzelése szerint alakíthat ki, akkor ez a lakás ideális választás számára!
Vevőink rendelkezésére állunk finanszírozási kérdésekben is OTP banki hátterünkkel! Hívása során hivatkozzon az M308421 referenciaszámra!

Hirdetés feltöltve: 2025. 11. 25. Utoljára módosítva: 2025. 11. 25.

2 szobás téglalakások ára Miskolcon

Ebből az összehasonlításból megtudhatod, hogyan viszonyul a lakás ára a környékbeli téglalakások átlagos árához. Ez nem azt jelenti, hogy ennyivel olcsóbb vagy drágább, mint amennyit a lakás ér, hanem hogy ennyivel tér el a környékbeli átlagtól.

Ennek a m² ára
Miskolc m² ár
509 e Ft
617 e Ft 17%
Ennek az ára
Miskolc átlagár
27 M Ft m Ft
34 m Ft 21%

Az ingatlan elhelyezkedése

Cím: Miskolc, 1. emelet

Eladó téglalakások a környékről

Eladó téglalakás
Eladó téglalakás

Miskolc

59.9 M Ft
2 + 3 szoba
97 m2
Eladó téglalakás
Eladó téglalakás

Miskolc

68.99 M Ft
3 szoba
76 m2
Eladó téglalakás
Eladó téglalakás

Ózd

4.99 M Ft
2 szoba
55 m2
Eladó téglalakás
Eladó téglalakás

Miskolc

69.7 M Ft
3 szoba
60 m2
Eladó téglalakás
Eladó téglalakás

Miskolc

35.9 M Ft
1 + 1 szoba
34 m2
Eladó téglalakás
Eladó téglalakás

Miskolc

75.982 M Ft
3 szoba
78 m2
Eladó téglalakás
Eladó téglalakás

Miskolc, Új Diósgyőr, Torontáli utca

19.99 M Ft
2 szoba
49 m2
Eladó téglalakás
Eladó téglalakás

Sátoraljaújhely

32.9 M Ft
4 szoba
105 m2
Eladó téglalakás
Eladó téglalakás

Miskolc

163.35 M Ft
4 szoba
110 m2
Eladó téglalakás
Eladó téglalakás

Borsodnádasd

7.9 M Ft
4 szoba
113 m2
Eladó téglalakás
Eladó téglalakás

Miskolc

65.34 M Ft
3 szoba
60 m2
Eladó téglalakás
Eladó téglalakás

Miskolc

54.45 M Ft
2 szoba
51 m2
Eladó téglalakás
Eladó téglalakás

Miskolc

49.9 M Ft
3 szoba
122 m2
Eladó téglalakás
Eladó téglalakás

Miskolc

79.9 M Ft
4 szoba
90 m2
Eladó téglalakás
Eladó téglalakás

Sátoraljaújhely

17 M Ft
2 szoba
52 m2
Eladó téglalakás
Eladó téglalakás

Putnok

8.8 M Ft
2 szoba
52 m2
Eladó téglalakás
Eladó téglalakás

Miskolc

60.396 M Ft
2 szoba
63 m2
Eladó téglalakás
Eladó téglalakás

Putnok

13.6 M Ft
3 szoba
123 m2
Eladó téglalakás
Eladó téglalakás

Miskolc

123.048 M Ft
2 szoba
102 m2
Eladó téglalakás
Eladó téglalakás

Sárospatak

13.9 M Ft
3 szoba
89 m2
Eladó téglalakás
Eladó téglalakás

Miskolc

9.99 M Ft
2 szoba
59 m2
Eladó téglalakás
Eladó téglalakás

Miskolc

25.4 M Ft
2 szoba
51 m2
Eladó téglalakás
Eladó téglalakás

Miskolc

59.9 M Ft
2 + 3 szoba
97 m2
Eladó téglalakás
Eladó téglalakás

Miskolc

54.45 M Ft
2 szoba
51 m2

Falusi CSOK ingatlanok

Eladó családi ház
Eladó családi ház

Kétegyháza

13.9 M Ft
4 szoba
140 m2
Eladó családi ház
Eladó családi ház

Törtel

74.9 M Ft
6 szoba
143 m2
Eladó családi ház
Eladó családi ház

Zengővárkony

30.999 M Ft
3 szoba
87 m2
Eladó családi ház
Eladó családi ház

Tab

14.9 M Ft
3 szoba
110 m2
Eladó családi ház
Eladó családi ház

Devecser

62.49 M Ft
5 szoba
180 m2
Eladó családi ház
Eladó családi ház

Nagyiván, Rákóczi Ferenc út 17

4.99 M Ft
2 szoba
50 m2
Eladó családi ház
Eladó családi ház

Szabolcs

64.9 M Ft
6 szoba
272 m2
Eladó családi ház
Eladó családi ház

Nemesszalók

41.9 M Ft
5 + 1 szoba
170 m2