Eladó családi ház
Szigetbecse

Figyelem!

Ez az ingatlan a 2019.07.01-től induló falusi CSOK által támogatott településen található

+ 3 kép 1/6
84 900 000 Ft84.9 M Ft 932 967 Ft/m2
5 szoba
91 m2
építés éve:2024

Részletes adatok

Telekméret: 457 m2
Fűtés: Egyéb
Közmű: Villany, Csatorna
Energetikai besorolás: Nem adta meg a hirdető

Az OTP Bank lakáshitel ajánlataFizetett hirdetés

+36 70 465
Nemes Mária
referens

Érdekel az OTP Bank kedvezményes lakáshitel ajánlata? *

* A kérdésre „Igen” válasz bejelölése esetén, az „Üzenet küldése” gombra kattintva kijelentem, hogy az OTP Bank Nyrt. Adatkezelési tájékoztatójának tartalmát megismertem és tudomásul vettem.

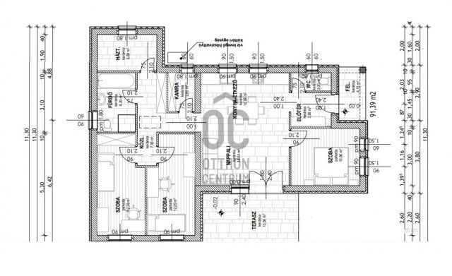
Eladó családi ház leírása

A ház minimális rezsivel fenntartható, energetikai besorolása AA.

Élhető, praktikus terekkel, nettó 91,43 nm, bruttó 109,14 nm nagyságú, a telek méret 457 nm.

Főbb műszaki paraméterek:

-30-as N+F Porotherm tégla
-12 cm homlokzati szigetelés
-Födémszigetelés: 20cm nyitott cellás purhab szigetelés
- 3 rétegű műanyag nyílászárók redőnnyel, szúnyoghálóval, teraszon alumínium motoros redőnnyel felszereltek
-Hőszivattyú: Technik cool pro split levegő-víz hőszivattyú, 8kw, 1 fázisú, 230V padlófűtéssel, fan coil hűtéssel. Technik cool fan coil, magasoldalfali, kétcsöves kivitel, 4,7kw
-Burkolólap: 6.000ft/m2-ig választható a vételárban
-riasztó vezetékelve
-térkövezett járda
-térkövezett autóbeálló

Referencia házak megtekinthetők Bugyin, Ráckevén, Délegyházán is.
Megbízható kivitelező, sok referenciával, szép munkával, saját tőkével rendelkezik!

További információért kérem keressen.

Hirdetés feltöltve: 2025. 10. 21. Utoljára módosítva: 2025. 10. 21.

5 szobás családi házak ára Szigetbecsén

Ebből az összehasonlításból megtudhatod, hogyan viszonyul a lakás ára a környékbeli családi házak átlagos árához. Ez nem azt jelenti, hogy ennyivel olcsóbb vagy drágább, mint amennyit a lakás ér, hanem hogy ennyivel tér el a környékbeli átlagtól.

Ennek a m² ára
Szigetbecse m² ár
933 e Ft
682 e Ft -37%
Ennek az ára
Szigetbecse átlagár
84.9 M Ft m Ft
71.4 m Ft -19%

Az ingatlan elhelyezkedése

Cím: Szigetbecse

Eladó családi házak a környékről

Eladó családi ház
Eladó családi ház

Szigetbecse

79.9 M Ft
5 szoba
95 m2
Eladó családi ház
Eladó családi ház

Szigetbecse

79.9 M Ft
5 szoba
98 m2
Eladó családi ház
Eladó családi ház

Tápiószele

37.9 M Ft
4 szoba
141 m2
Eladó családi ház
Eladó családi ház

Leányfalu

237 M Ft
9 szoba
800 m2
Eladó családi ház
Eladó családi ház

Szigetbecse

89.5 M Ft
5 szoba
110 m2
Eladó családi ház
Eladó családi ház

Kerepes

81.99 M Ft
5 szoba
102 m2
Eladó családi ház
Eladó családi ház

Tápiószentmárton

7.9 M Ft
2 + 1 szoba
86 m2
Eladó családi ház
Eladó családi ház

Budakeszi, Budakeszi kertváros

140 M Ft
2 szoba
55 m2
Eladó családi ház
Eladó családi ház

Érd

382 M Ft
6 szoba
420 m2
Eladó családi ház
Eladó családi ház

Szigetbecse

79.9 M Ft
5 szoba
96 m2
Eladó családi ház
Eladó családi ház

Budakeszi, Budakeszi kertváros

229 M Ft
10 szoba
450 m2
Eladó családi ház
Eladó családi ház

Szigetbecse

18.2 M Ft
4 szoba
85 m2
Eladó családi ház
Eladó családi ház

Szigetbecse

33.8 M Ft
2 szoba
72 m2
Eladó családi ház
Eladó családi ház

Szigetbecse

33.9 M Ft
2 szoba
72 m2
Eladó családi ház
Eladó családi ház

Budaörs, Odvshegy utca

268.9 M Ft
5 szoba
235 m2
Eladó családi ház
Eladó családi ház

Tápiógyörgye

19.9 M Ft
3 szoba
65 m2
Eladó családi ház
Eladó családi ház

Szigetbecse

199.9 M Ft
4 szoba
104 m2
Eladó családi ház
Eladó családi ház

Szigetbecse

79.9 M Ft
5 szoba
100 m2
Eladó családi ház
Eladó családi ház

Szigetbecse

79.9 M Ft
5 szoba
118 m2
Eladó családi ház
Eladó családi ház

Szigetbecse

89.9 M Ft
5 szoba
99 m2
Eladó családi ház
Eladó családi ház

Szigetbecse

22.9 M Ft
2 szoba
76 m2
Eladó családi ház
Eladó családi ház

Gyál, Gyál út

169.9 M Ft
2 szoba
90 m2
Eladó családi ház
Eladó családi ház

Érd

164.9 M Ft
5 szoba
192 m2
Eladó családi ház
Eladó családi ház

Budaörs, Városközpont utca

119.5 M Ft
5 + 1 szoba
140 m2

Falusi CSOK ingatlanok

Eladó családi ház
Eladó családi ház

Nagyrécse

19 M Ft
2 szoba
52 m2
Eladó családi ház
Eladó családi ház

Alattyán

8.5 M Ft
1 + 1 szoba
70 m2
Eladó családi ház
Eladó családi ház

Bakonybánk, Kossuth Lajos utca 26

13.36 M Ft
1 + 1 szoba
105 m2
Eladó családi ház
Eladó családi ház

Törökkoppány

20.9 M Ft
2 szoba
80 m2
Eladó családi ház
Eladó családi ház

Kaposmérő

68 M Ft
2 + 2 szoba
150 m2
Eladó családi ház
Eladó családi ház

Babócsa, Béke utca 9

5.08 M Ft
1 + 1 szoba
83 m2
Eladó családi ház
Eladó családi ház

Dióskál

22.9 M Ft
2 szoba
102 m2
Eladó családi ház
Eladó családi ház

Kondorfa, Alvég 139

13.3 M Ft
1 + 1 szoba
123 m2

Falusi CSOK ingatlanok

Eladó családi ház
Eladó családi ház

Kadarkút

39.9 M Ft
5 + 1 szoba
150 m2
Eladó családi ház
Eladó családi ház

Galgagyörk

46.9 M Ft
4 szoba
105 m2
Eladó családi ház
Eladó családi ház

Tésenfa, Kossuth utca 23/a

5.55 M Ft
1 + 1 szoba
109 m2
Eladó családi ház
Eladó családi ház

Tápiógyörgye

6.5 M Ft
2 szoba
62 m2
Eladó családi ház
Eladó családi ház

Dág, Petőfi Sándor utca 4.b

16.58 M Ft
1 + 1 szoba
110 m2
Eladó téglalakás
Eladó téglalakás

Hegyeshalom

35 M Ft
43 m2
Eladó ikerház
Eladó ikerház

Seregélyes

39.9 M Ft
4 szoba
150 m2
Eladó családi ház
Eladó családi ház

Nagyhegyes

47.9 M Ft
2 szoba
72 m2