City Pearl

Eladó családi ház
Szűr

Figyelem!

Ez az ingatlan a 2019.07.01-től induló falusi CSOK által támogatott településen található

+ 17 kép 1/20
8 000 000 Ft8 M Ft 117 647 Ft/m2
3 szoba
68 m²
építés éve:1970

Részletes adatok

Állapot: Átlagos
Telekméret: 353 m2
Fűtés: Gázkonvektor
Komfort: Komfortos
Energetikai besorolás: Nem adta meg a hirdető

Az OTP Bank lakáshitel ajánlataFizetett hirdetés

Hitelösszeg 10 millió Ft
Futamidő 20 év
Induló törlesztőrészlet 67 508 Ft
Törlesztőrészlet a 13. hónaptól 86 071 Ft
THM 8,6 %

A tájékoztatás nem teljes körű és nem minősül ajánlattételnek. Az OTP Évnyerő Lakáshitelei 1 éves türelmi idős kölcsönök, amellyel az első 12 hónapban alacsonyabb a havi törlesztőrészlet. A tőke törlesztését a 13. hónaptól kell megkezdeni.

    Részletes kalkuláció
    +36 20 509
    Szabó Ágnes
    OTPIP - Pécs, Rákóczi út 19.

    Érdekel az OTP Bank kedvezményes lakáshitel ajánlata? *

    * A kérdésre „Igen” válasz bejelölése esetén, az „Üzenet küldése” gombra kattintva kijelentem, hogy az OTP Bank Nyrt. Adatkezelési tájékoztatójának tartalmát megismertem és tudomásul vettem.

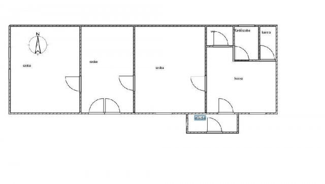
    Eladó családi ház leírása

    Eladó családi ház Szűrön! Baranya megye egyik bájos, dombos falujában, Szűrön kínálok eladásra egy 68 nm-es, háromszobás családi házat, amely 353 nm-es telken fekszik. Ez az ingatlan remek lehetőség mindazoknak, akik a nyugodt vidéki életre vágynak, de nem szeretnének lemondani a jó infrastruktúráról sem. Főbb jellemzők. Vegyes falazatú, cserépfedésű, gázkonvektor és kályha fűtéssel rendelkezik. Elrendezése, három tágas egymásból nyíló szoba, konyha, fürdőszoba és külön wc. A telekhez garázs és külön tároló is tartozik. Az új műanyag ablakok már meg vannak vásárolva, ami benne van a vételárban. Igy a felújítás költsége ezzel csökken. A 353 nm-es telek elegendő helyet biztosít kertnek, pihenő saroknak, játszótérnek, akárcsak hobbiudvarnak. Környezet és infrastruktúrája, Szűr Baranya megyében, a Geresdi-dombság lankáin fekszik, gyönyörű vidéki környezetben. Az M60-as autópálya könnyen elérhető Véméndnél vagy Mohácsnál, így Pécs és más nagyvárosok is jól megközelíthetők. A faluban buszközlekedés rendszeresen működik. Szűr könnyen elérhető Mohácsról és Pécsváradról is. Szűr községében működik falugondnoki rendszer, amely segíti a helyi közösséget. Iskola és óvoda Himesházán található, gyerekjárattal szervezetten. Elérhető minden közmű a csatornázás is megoldott, és van szélessávú internet, így a modern igények sem maradnak kielégítetlenek. Az ingatlan ideális választás lehet családoknak, idősebbeknek vagy azoknak, akik vidéki, kényelmes életre vágynak. A telek viszonylag visszafogott mérete miatt a gondozása nem jelent jelentős terhet. . A ház falusi CSOK-ra alkalmas. További kérdéseivel és személyes megtekintésért keressen bizalommal! M317454

    Referencia szám: M317454

    Hirdetés feltöltve: 2025. 12. 10. Utoljára módosítva: 2026. 05. 13.

    Az ingatlan elhelyezkedése

    Cím: Szűr

    Eladó ingatlanok a környékről

    Pécs
    Eladó panellakás

    Pécs

    69 M Ft
    2 + 1 szoba
    57 m²
    Szűr
    Eladó családi ház

    Szűr

    22 M Ft
    3 szoba
    73 m²
    Pécs
    Eladó családi ház

    Pécs

    460 M Ft
    8 szoba
    300 m²
    Lánycsók
    Eladó családi ház

    Lánycsók

    75 M Ft
    7 szoba
    247 m²
    Mohács, Szőlőhegy
    Eladó családi ház

    Mohács

    32.99 M Ft
    2 szoba
    72 m²
    Pécs
    Eladó családi ház

    Pécs

    54.9 M Ft
    3 szoba
    96 m²
    Pécsvárad, Szilágypuszta
    Eladó családi ház

    Pécsvárad

    189 M Ft
    7 szoba
    618 m²
    Pécs
    Eladó téglalakás

    Pécs

    145 M Ft
    3 szoba
    75 m²
    Harkány
    Eladó nyaraló

    Harkány

    39 M Ft
    5 szoba
    75 m²
    Pécs, Szabolcsfalu, Szabadságharc utca
    Eladó családi ház

    Pécs

    58.99 M Ft
    3 szoba
    240 m²
    Pécs
    Eladó családi ház

    Pécs

    210 M Ft
    5 szoba
    220 m²
    Pécs
    Eladó téglalakás

    Pécs

    118.9 M Ft
    3 szoba
    89 m²
    Mohács
    Eladó családi ház

    Mohács

    25 M Ft
    4 szoba
    120 m²
    Pécs
    Eladó családi ház

    Pécs

    83 M Ft
    3 szoba
    100 m²
    Magyarhertelend, Bokréta utca
    Eladó családi ház

    Magyarhertelend

    30.5 M Ft
    3 + 3 szoba
    102 m²
    Szűr, Petőfi Sándor utca
    Eladó családi ház

    Szűr

    13 M Ft
    3 szoba
    100 m²
    Pécs, Meszesi lakóövezet, Pacca dűlő
    Eladó családi ház

    Pécs

    16 M Ft
    1 szoba
    28 m²
    Pécs
    Eladó téglalakás

    Pécs

    51.9 M Ft
    3 szoba
    73 m²
    Görcsöny, Hársfa utca
    Eladó családi ház

    Görcsöny

    249 M Ft
    5 szoba
    270 m²
    Pécs
    Eladó téglalakás

    Pécs

    55 M Ft
    2 szoba
    70 m²
    Pécs
    Eladó családi ház

    Pécs

    270 M Ft
    5 szoba
    350 m²
    Egyházaskozár, Hatos Gusztáv utca
    Eladó családi ház

    Egyházaskozár

    4.7 M Ft
    3 szoba
    79 m²
    Szűr
    Eladó családi ház

    Szűr

    13 M Ft
    3 szoba
    100 m²
    Pécs
    Eladó téglalakás

    Pécs

    99.9 M Ft
    4 szoba
    114 m²

    Falusi CSOK ingatlanok

    Kaposgyarmat
    Eladó családi ház

    Kaposgyarmat

    695 M Ft
    6 szoba
    610 m²
    Zagyvarékas, Erdő utca 16
    Eladó családi ház

    Zagyvarékas

    0.1 M Ft
    2 szoba
    113 m²
    Demjén
    Eladó családi ház

    Demjén

    108 M Ft
    5 szoba
    200 m²
    Egerbakta
    Eladó családi ház

    Egerbakta

    43.9 M Ft
    5 + 1 szoba
    160 m²
    Segesd
    Eladó családi ház

    Segesd

    79.9 M Ft
    8 szoba
    500 m²
    Rábaszentmihály
    Eladó családi ház

    Rábaszentmihály

    59.9 M Ft
    3 szoba
    156 m²
    Győrság
    Eladó családi ház

    Győrság

    89.9 M Ft
    4 szoba
    92 m²
    Csurgó
    Eladó családi ház

    Csurgó

    29 M Ft
    3 szoba
    80 m²

    Falusi CSOK ingatlanok

    Csurgó
    Eladó téglalakás

    Csurgó

    12.5 M Ft
    2 szoba
    54 m²
    Seregélyes
    Eladó családi ház

    Seregélyes

    87 M Ft
    4 szoba
    96 m²
    Porva
    Eladó családi ház

    Porva

    74.6 M Ft
    3 szoba
    115 m²
    Zsámbok
    Eladó családi ház

    Zsámbok

    30 M Ft
    2 szoba
    58 m²
    Hegyeshalom, Margaréta utca 12
    Eladó téglalakás

    Hegyeshalom

    50.09 M Ft
    2 szoba
    43 m²
    Egerbakta
    Eladó családi ház

    Egerbakta

    43.9 M Ft
    5 + 1 szoba
    160 m²
    Balatonszemes
    Eladó téglalakás

    Balatonszemes

    125.2 M Ft
    2 szoba
    50 m²
    Csurgó
    Eladó családi ház

    Csurgó

    19.9 M Ft
    4 szoba
    136 m²