Avico Greentop

Eladó családi ház
Szentkirály

Figyelem!

Ez az ingatlan a 2019.07.01-től induló falusi CSOK által támogatott településen található

+ 5 kép 1/8
55 990 000 Ft55.99 M Ft 305 956 Ft/m2
4 szoba
183 m²
építés éve:2026

Részletes adatok

Telekméret: 1022 m2
Fűtés: Gázkazán
Energetikai besorolás: Nem adta meg a hirdető

Az OTP Bank lakáshitel ajánlataFizetett hirdetés

3676770730
Krék Zsuzsanna
Duna House Kecskemét, Petőfi S. u.

Érdekel az OTP Bank kedvezményes lakáshitel ajánlata? *

* A kérdésre „Igen” válasz bejelölése esetén, az „Üzenet küldése” gombra kattintva kijelentem, hogy az OTP Bank Nyrt. Adatkezelési tájékoztatójának tartalmát megismertem és tudomásul vettem.

Eladó családi ház leírása

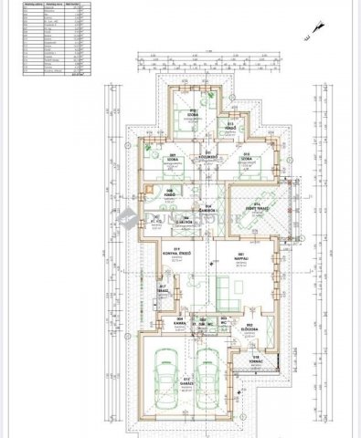
SZENTKIRÁLYON 1022 m2-es telken nettó 183 m2 + (47 nm garàzs)alapterületű ,FÉLKÉSZ családi ház ELADÓ

Az ingatlan főbb jellemzői:

-Tégla építés

-Összközmű

-3 szoba+nappali+ 2 gardrób

-Háztartási helyiség

-3 Fürdőszoba wc-vel

-Össz: több mint 50m2 terasz

-47m2 Dupla garázs ( ingatlanon belül)

Jelenleg a válaszfalak még módosíthatók,áthelyezhetőek,ezáltal plusz hálószobák kialakíthatóak!

A képek a jelenlegi készültségi állapotot tükrözik, de az ingatlan a befejezéshez szükséges összes tervdokumentációval és engedéllyel rendelkezik.,igény esetén, egyedi megállapodásban a tulajdonos vállalja az ingatlan teljes generál kivitelezését!

Ingatlan beszámítás,értékegyeztetéssel lehetséges!

További információkért kérem hívjon bizalommal!
Érd.: Krék Zsuzsanna 06 30 758 6840

Hirdetés feltöltve: 2026. 04. 02. Utoljára módosítva: 2026. 04. 02.

Az ingatlan elhelyezkedése

Cím: Szentkirály

Eladó ingatlanok a környékről

Kiskunhalas
Eladó családi ház

Kiskunhalas

24.9 M Ft
3 szoba
70 m²
Kecskemét
Eladó családi ház

Kecskemét

224.9 M Ft
5 szoba
330 m²
Kecskemét
Eladó családi ház

Kecskemét

93 M Ft
3 szoba
140 m²
Kecskemét
Eladó családi ház

Kecskemét

24.9 M Ft
3 szoba
62 m²
Kiskunhalas
Eladó családi ház

Kiskunhalas

83.9 M Ft
3 + 1 szoba
140 m²
Kiskunmajsa, 1
Eladó családi ház

Kiskunmajsa

60.9 M Ft
6 szoba
220 m²
Szentkirály
Eladó családi ház

Szentkirály

52 M Ft
2 szoba
65 m²
Baja
Eladó családi ház

Baja

53 M Ft
4 + 1 szoba
150 m²
Baja
Eladó családi ház

Baja

51 M Ft
3 + 1 szoba
110 m²
Szentkirály
Eladó családi ház

Szentkirály

59.9 M Ft
3 szoba
77 m²
Kecskemét
Eladó panellakás

Kecskemét

48 M Ft
3 szoba
63 m²
Baja
Eladó téglalakás

Baja

34.99 M Ft
2 szoba
112 m²
Kecskemét
Eladó családi ház

Kecskemét

6.9 M Ft
1 szoba
30 m²
Kecskemét
Eladó családi ház

Kecskemét

39.9 M Ft
2 szoba
110 m²
Kecskemét
Eladó téglalakás

Kecskemét

69.9 M Ft
3 szoba
77 m²
Kiskunhalas
Eladó ikerház

Kiskunhalas

79.9 M Ft
5 szoba
170 m²
Solt
Eladó családi ház

Solt

325 M Ft
4 szoba
983 m²
Szentkirály
Eladó családi ház

Szentkirály

699 M Ft
8 szoba
350 m²
Kecskemét
Eladó családi ház

Kecskemét

9.9 M Ft
2 szoba
30 m²
Érsekcsanád
Eladó családi ház

Érsekcsanád

33 M Ft
3 szoba
75 m²
Bácsalmás
Eladó családi ház

Bácsalmás

25.5 M Ft
2 + 1 szoba
90 m²
Szentkirály
Eladó családi ház

Szentkirály

55.99 M Ft
4 szoba
183 m²
Kecskemét
Eladó téglalakás

Kecskemét

54.99 M Ft
2 szoba
60 m²
Szentkirály
Eladó családi ház

Szentkirály

55.99 M Ft
4 szoba
183 m²

Falusi CSOK ingatlanok

Csemő
Eladó családi ház

Csemő

61.9 M Ft
3 szoba
88 m²
Gádoros
Eladó családi ház

Gádoros

25.5 M Ft
4 szoba
140 m²
Mezőnyárád
Eladó családi ház

Mezőnyárád

32 M Ft
3 szoba
86 m²
Verseg
Eladó családi ház

Verseg

38 M Ft
3 szoba
83 m²
Szilvásvárad
Eladó családi ház

Szilvásvárad

104.9 M Ft
5 szoba
340 m²
Mikebuda
Eladó családi ház

Mikebuda

45.9 M Ft
7 szoba
120 m²
Balatonszepezd
Eladó családi ház

Balatonszepezd

299 M Ft
5 szoba
220 m²
Ceglédbercel
Eladó családi ház

Ceglédbercel

79.9 M Ft
5 szoba
140 m²

Falusi CSOK ingatlanok

Lengyeltóti
Eladó családi ház

Lengyeltóti

59.9 M Ft
5 szoba
205 m²
Kadarkút, Körmendi utca
Eladó családi ház

Kadarkút

21 M Ft
3 szoba
82 m²
Csurgó
Eladó téglalakás

Csurgó

13.5 M Ft
2 szoba
54 m²
Pálfa
Eladó családi ház

Pálfa

22 M Ft
3 szoba
98 m²
Berzence, Mátyás utca
Eladó családi ház

Berzence

26.8 M Ft
3 szoba
94 m²
Mezőnyárád
Eladó családi ház

Mezőnyárád

32 M Ft
3 szoba
86 m²
Ábrahámhegy
Eladó családi ház

Ábrahámhegy

139 M Ft
4 szoba
106 m²
Mezőkeresztes
Eladó ikerház

Mezőkeresztes

13.5 M Ft
2 + 1 szoba
70 m²