City Pearl

Eladó családi ház
Siófok

89 900 000 Ft89.9 M Ft 1 214 865 Ft/m2
3 szoba
74 m²
építés éve:2026

Részletes adatok

Telekméret: 350 m2
Fűtés: Egyéb
Parkolás: Kocsibeálló
Közmű: Víz, Villany, Csatorna
Komfort: Összkomfortos
Energetikai besorolás: Nem adta meg a hirdető

Az OTP Bank lakáshitel ajánlataFizetett hirdetés

+36 30 147
Pintérné Németh Krisztina
referens

Érdekel az OTP Bank kedvezményes lakáshitel ajánlata? *

* A kérdésre „Igen” válasz bejelölése esetén, az „Üzenet küldése” gombra kattintva kijelentem, hogy az OTP Bank Nyrt. Adatkezelési tájékoztatójának tartalmát megismertem és tudomásul vettem.

Eladó családi ház leírása

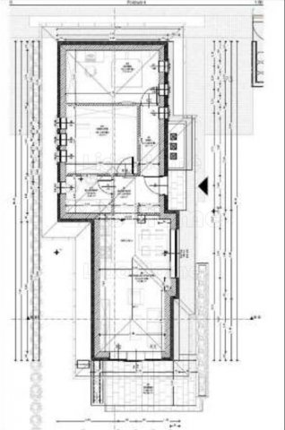
A LIDO HOME ingatlan siófoki irodája eladásra kínálja ezt az ÚJ ÉPÍTÉSŰ CSALÁDI HÁZAT Siófok belvárosában. A telek elhelyezkedése kiváló, a város központjában található, a közelben közintézmények, bevásárlási lehetőségek, iskolák, óvodák, bölcsőde is néhány percre gyalog! Vasútállomás néhány perc séta, a Balaton-part kb. 900 méterre található! Az újépítésű családi ház további jellemzői: -350 m2-es telken található, nettó 64 m2 alapterületű, 10,86 m2 terasszal -amerikai konyhás nappali + 2 szoba -előszoba, fürdőszoba WC-vel, közlekedő -a melegvíz ellátást, illetve fűtést hőszivattyú biztosítja padlófűtéssel -a nyílászárók motoros redőnnyel lesznek ellátva -a tetőre napelem kerül felhelyezésre A projekt keretében 3 db családi ház kerül megépítésre egy telken, a házak önálló helyrajzi számmal fognak rendelkezni. A házak 30 cm-es tégla falazattal készülnek, hőszigeteléssel, magas műszaki tartalommal. Minden ház esetében 1 db gépkocsi beálló zárt udvaron, viacolor burkolattal benne van az árban. Az ingatlan előre egyeztetetten megtekinthető. Az ingatlan autóval Budapestről 80 perc alatt elérhető az M7 autópályáról. Amennyiben a LIDO HOME által kínált SIÓFOKI CSALÁDI HÁZ, vagy bármely a kínálatunkban található egyéb INGATLAN felkeltette az érdeklődését, hívjon a megadott telefonszámon. Vásárolna, de nincs rá keret? Kollégám díjmentes, bank semleges hitel ügyintézéssel áll rendelkezésére. LIDO HOME- Ingatlanok egy életen át!

Hirdetés feltöltve: 2026. 04. 16. Utoljára módosítva: 2026. 05. 20.

3 szobás családi házak ára Siófokon

Ebből az összehasonlításból megtudhatod, hogyan viszonyul a lakás ára a környékbeli családi házak átlagos árához. Ez nem azt jelenti, hogy ennyivel olcsóbb vagy drágább, mint amennyit a lakás ér, hanem hogy ennyivel tér el a környékbeli átlagtól.

Ennek a m² ára
Siófok m² ár
1215 e Ft
1198 e Ft -1%
Ennek az ára
Siófok átlagár
89.9 M Ft m Ft
92.7 m Ft 3%

Az ingatlan elhelyezkedése

Cím: Siófok

Eladó családi házak a környékről

Balatonboglár
Eladó családi ház

Balatonboglár

89.9 M Ft
4 szoba
100 m²
Látrány
Eladó családi ház

Látrány

74.99 M Ft
4 szoba
138 m²
Siófok
Eladó családi ház

Siófok

596 M Ft
10 szoba
975 m²
Siófok
Eladó családi ház

Siófok

69.8 M Ft
3 szoba
59 m²
Siófok
Eladó családi ház

Siófok

120 M Ft
4 szoba
138 m²
Kaposvár
Eladó családi ház

Kaposvár

130 M Ft
4 + 2 szoba
200 m²
Zamárdi
Eladó családi ház

Zamárdi

420 M Ft
10 szoba
500 m²
Siófok
Eladó családi ház

Siófok

71.8 M Ft
3 szoba
66 m²
Siófok
Eladó családi ház

Siófok

172.99 M Ft
4 szoba
150 m²
Siófok
Eladó családi ház

Siófok

354.52 M Ft
7 szoba
444 m²
Zamárdi
Eladó családi ház

Zamárdi

126 M Ft
6 szoba
120 m²
Siófok
Eladó családi ház

Siófok

330 M Ft
12 szoba
0 m²
Siófok
Eladó családi ház

Siófok

330 M Ft
12 szoba
0 m²
Siófok
Eladó családi ház

Siófok

135 M Ft
7 + 2 szoba
250 m²
Siófok
Eladó családi ház

Siófok

596 M Ft
10 szoba
975 m²
Balatonlelle
Eladó családi ház

Balatonlelle

250 M Ft
12 szoba
260 m²
Balatonlelle
Eladó családi ház

Balatonlelle

250 M Ft
12 szoba
260 m²
Balatonberény
Eladó családi ház

Balatonberény

128 M Ft
3 + 1 szoba
121 m²
Látrány
Eladó családi ház

Látrány

74.99 M Ft
4 szoba
138 m²
Balatonföldvár
Eladó családi ház

Balatonföldvár

223 M Ft
2 + 2 szoba
184 m²
Siófok
Eladó családi ház

Siófok

72 M Ft
3 szoba
60 m²
Siófok
Eladó családi ház

Siófok

735 M Ft
10 + 4 szoba
387 m²
Siófok
Eladó családi ház

Siófok

68 M Ft
3 szoba
64 m²
Siófok, Petőfi Sándor utca
Eladó családi ház

Siófok

39.5 M Ft
3 szoba
90 m²

Falusi CSOK ingatlanok

Rétság
Eladó téglalakás

Rétság

34.9 M Ft
2 szoba
55 m²
Bak
Eladó családi ház

Bak

49.9 M Ft
5 szoba
140 m²
Nyáregyháza
Eladó ikerház

Nyáregyháza

75.9 M Ft
4 szoba
0 m²
Zsámbok
Eladó családi ház

Zsámbok

59.5 M Ft
4 szoba
108 m²
Ágasegyháza
Eladó családi ház

Ágasegyháza

69.9 M Ft
5 szoba
174 m²
Besnyő
Eladó családi ház

Besnyő

55 M Ft
2 + 1 szoba
80 m²
Tápiógyörgye
Eladó családi ház

Tápiógyörgye

16 M Ft
2 szoba
85 m²
Bükkszék
Eladó családi ház

Bükkszék

78.9 M Ft
2 + 1 szoba
160 m²