Kedves Felhasználónk! Rendszerfrissítés miatt az oldalunk 2026. február 9-én 12 órától várhatóan 20 óráig nem lesz elérhető. Köszönjük megértésed!
Avico Greentop

Eladó családi ház
Pusztaszabolcs

61 900 000 Ft61.9 M Ft 547 788 Ft/m2
3 szoba
113 m2
építés éve:1980

Részletes adatok

Telekméret: 550 m2
Fűtés: Gázkazán
Energetikai besorolás: E

Az OTP Bank lakáshitel ajánlataFizetett hirdetés

+36 20 487
Darnai Henrietta
referens

Érdekel az OTP Bank kedvezményes lakáshitel ajánlata? *

* A kérdésre „Igen” válasz bejelölése esetén, az „Üzenet küldése” gombra kattintva kijelentem, hogy az OTP Bank Nyrt. Adatkezelési tájékoztatójának tartalmát megismertem és tudomásul vettem.

Eladó családi ház leírása

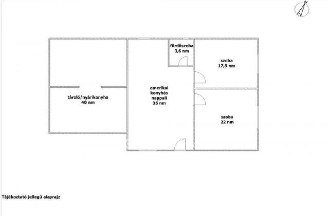
Fejér megye, Pusztaszabolcs 113 nm-es családi ház eladó. A felújított, tégla falazatú lakóingatlan a település központjához közel egy 550 nm-es telken helyezkedik el. A tehermentes családi házban amerikai konyhás nappali, két tágas hálószoba és fürdőszoba található, valamint az ingatlanhoz tartozik egy hozzáépített 40 nm-es tároló(fele beszámítva a hasznos alapterületbe), mely több szoba kialakítására alkalmas, alatta pedig egy 30 nm-es pince található. A belső felújítás során cserélték a víz-és villanyvezetékeket, az összes nyílászárót műanyagra, az összes burkolatot, teljes aljzatcsere és aljzatszigetelés, mennyezetszigetelés, új gépesített konyhabútor. A meghirdetett ár tartalmazza a külső szigetelést is. A fűtésről új kombi gázkazán és új hűtő fűtő klíma gondoskodik. Séta távolságra a vasútállomás, boltok, gyógyszertár, orvosi rendelő, óvoda, iskola, játszótér, polgármesteri hivatal. Teljes körű ügyintézésben segítjük ügyfeleinket díjtalanul: CSOK igénylése, kedvezményes hitel mobil bankári szolgáltatással, adásvétel teljes lebonyolításával.

Hirdetés feltöltve: 2026. 02. 07. Utoljára módosítva: 2026. 02. 07.

3 szobás családi házak ára Pusztaszabolcson

Ebből az összehasonlításból megtudhatod, hogyan viszonyul a lakás ára a környékbeli családi házak átlagos árához. Ez nem azt jelenti, hogy ennyivel olcsóbb vagy drágább, mint amennyit a lakás ér, hanem hogy ennyivel tér el a környékbeli átlagtól.

Ennek a m² ára
Pusztaszabolcs m² ár
548 e Ft
439 e Ft -25%
Ennek az ára
Pusztaszabolcs átlagár
61.9 M Ft m Ft
44.3 m Ft -40%

Az ingatlan elhelyezkedése

Cím: Pusztaszabolcs

Eladó családi házak a környékről

Eladó családi ház
Eladó családi ház

Pusztaszabolcs

64.9 M Ft
3 szoba
89 m2
Eladó családi ház
Eladó családi ház

Mór

110 M Ft
12 szoba
340 m2
Eladó családi ház
Eladó családi ház

Vértesacsa

86 M Ft
3 + 1 szoba
123 m2
Eladó családi ház
Eladó családi ház

Székesfehérvár

59 M Ft
3 szoba
100 m2
Eladó családi ház
Eladó családi ház

Pusztavám

22.9 M Ft
3 szoba
103 m2
Eladó családi ház
Eladó családi ház

Vereb

49.9 M Ft
1 + 3 szoba
80 m2
Eladó családi ház
Eladó családi ház

Pusztaszabolcs

79.9 M Ft
4 szoba
92 m2
Eladó családi ház
Eladó családi ház

Pusztaszabolcs

15.5 M Ft
2 szoba
68 m2
Eladó családi ház
Eladó családi ház

Pusztaszabolcs

86.9 M Ft
4 szoba
105 m2
Eladó családi ház
Eladó családi ház

Gánt, Gánti út

29.9 M Ft
2 + 1 szoba
40 m2
Eladó családi ház
Eladó családi ház

Velence

85.9 M Ft
4 szoba
103 m2
Eladó családi ház
Eladó családi ház

Pusztaszabolcs

84.9 M Ft
4 szoba
106 m2
Eladó családi ház
Eladó családi ház

Alcsútdoboz, Szabadság utca

320 M Ft
12 szoba
620 m2
Eladó családi ház
Eladó családi ház

Pusztaszabolcs

93 M Ft
4 szoba
100 m2
Eladó családi ház
Eladó családi ház

Velence, Liget utca

149 M Ft
2 + 2 szoba
150 m2
Eladó családi ház
Eladó családi ház

Pusztaszabolcs

79.9 M Ft
4 szoba
92 m2
Eladó családi ház
Eladó családi ház

Etyek

160 M Ft
6 szoba
228 m2
Eladó családi ház
Eladó családi ház

Pusztaszabolcs

89.9 M Ft
4 szoba
95 m2
Eladó családi ház
Eladó családi ház

Pusztaszabolcs

74.9 M Ft
4 szoba
92 m2
Eladó családi ház
Eladó családi ház

Pusztaszabolcs

86.9 M Ft
4 szoba
105 m2
Eladó családi ház
Eladó családi ház

Székesfehérvár

69.9 M Ft
3 szoba
95 m2
Eladó családi ház
Eladó családi ház

Iváncsa

39.9 M Ft
4 szoba
112 m2
Eladó családi ház
Eladó családi ház

Pusztaszabolcs

62 M Ft
2 szoba
74 m2
Eladó családi ház
Eladó családi ház

Pusztaszabolcs

79.9 M Ft
4 szoba
92 m2

Falusi CSOK ingatlanok

Eladó családi ház
Eladó családi ház

Csátalja, Dózsa György utca

36 M Ft
3 szoba
110 m2
Eladó családi ház
Eladó családi ház

Jánosháza

39 M Ft
2 szoba
116 m2
Eladó családi ház
Eladó családi ház

Recsk

28 M Ft
3 szoba
91 m2
Eladó családi ház
Eladó családi ház

Csátalja, Táncsics Mihály utca 2

28 M Ft
3 szoba
100 m2
Eladó családi ház
Eladó családi ház

Rábapaty

99.99 M Ft
5 szoba
132 m2
Eladó családi ház
Eladó családi ház

Iváncsa

33.9 M Ft
2 + 1 szoba
72 m2
Eladó családi ház
Eladó családi ház

Recsk

59 M Ft
2 szoba
70 m2
Eladó családi ház
Eladó családi ház

Pusztamonostor

22 M Ft
3 szoba
86 m2