NapForrás 20 - Buda

Eladó családi ház
Pusztaszabolcs

+ 3 kép 1/6
72 000 000 Ft72 M Ft 782 609 Ft/m2
4 szoba
92 m2
építés éve:2026

Részletes adatok

Telekméret: 670 m2
Fűtés: Egyéb
Energetikai besorolás: Nem adta meg a hirdető

Az OTP Bank lakáshitel ajánlataFizetett hirdetés

+36 70 389
Horgos Tamás
City & Home ingatlan

Érdekel az OTP Bank kedvezményes lakáshitel ajánlata? *

* A kérdésre „Igen” válasz bejelölése esetén, az „Üzenet küldése” gombra kattintva kijelentem, hogy az OTP Bank Nyrt. Adatkezelési tájékoztatójának tartalmát megismertem és tudomásul vettem.

Eladó családi ház leírása

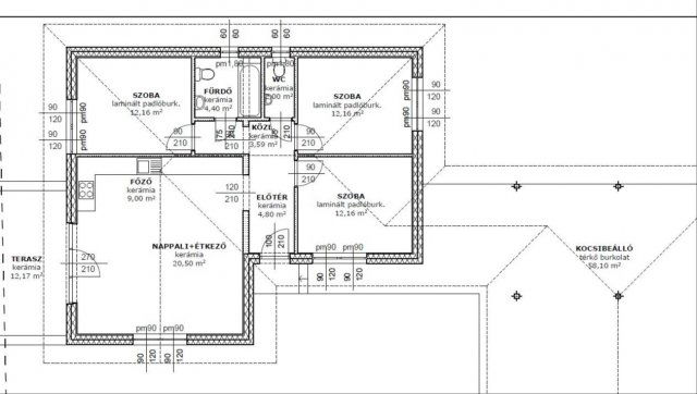
Pusztaszabolcson eladó egy hamarosan megépülő bruttó 92 m2-es, egyszintes családi ház.
A telek 670 m2, minden közmű a telek előtt (víz, villany, gáz, szennyvíz).

A tervezetben 3 tágas szoba, amerikai típusú nappali-konyha-étkező, fürdő/wc és egy vendég wc, de ezen tervezet igény szerint még szabadon módosítható!

A házba lépve egy előtérbe érkezünk, ahonnan nyílik a 30 m2-es amerikai konyhás nappali, étkező, illetve egy szoba.
Az előtérből tovább haladva közvetlenül egy közlekedőbe érkezünk, ahonnan jobbra, balra egy-egy hálószoba nyílik, illetve innen jutunk a fürdőszobába és a wc-be.
A nappaliból közvetlen kijutás lehetséges a 12 m2-es teraszra.

A fürdőszoba és a mellékhelyiség járólap fedést kap, míg a nappalit, konyhát, előszobát és a szobákat magas kopásállóságú laminált parkettával fedik.
A ház melegét hőszivattyús fűtés biztosítja padlófűtéses hőleadással, a hűtésről inverteres split klíma gondoskodik.
Kiváló energetikai jellemzők, jó minőségű műanyag nyílászárók kerülnek beépítésre, a ház a legmodernebb energetikai elvárásoknak megfelelően épül.
Látszó szarufás eresz, beton cserepes tetőfedés, 15 cm homlokzati hőszigetelés.

A csatolt alaprajz tájékoztató jellegű, a belső kialakítás jelen szakaszban még módosítható, így saját igénye szerint alakíthatja leendő otthonát.
Az épület a mai kor igényeinek megfelelő, korszerű, minőségi anyagokból és technológiával készül.
A meghirdetett ár könnyű szerkezetes kivitelre vonatkozik. Téglaház esetén az ár személyes megbeszélés tárgyát képezi.

Felhasznált készülékek és gépek márkái Legrand, Panasonic, Knauf, Mapei, Henkel, Gree…stb.

CSOK Plusz igénybe vehető! IDEI ÁTADÁS!

ÖSSZEGZÉS:
*670 m2 TELEK
* 92 m2 SZIGETELT KÖNNYŰSZERKEZETES HÁZ
* 12 m2 TERASZ
* GEOTERMIKUS FŰTÉS PADLÓFŰTÉSSEL
* AMERIKAI KONYHA + NAPPALI ÉTKEZŐVEL
* 3 SZOBA
* FÜRDŐSZOBA WC-VEL ÉS KÜLÖN WC
* 3 RÉTEGŰ MŰANYAG NYÍLÁSZÁRÓK

A megtekintéssel kapcsolatban, további kérdés esetén, vagy bármely kínálatunkban található lakás, ház felkeltette érdeklődését, vagy szeretné ingatlanát értékesíteni, keressen bizalommal!

Kapcsolat:
***City & Home Ingatlan Iroda***
8000 Székesfehérvár, Várkörút 2.
+36 70 389 1111
www.chingatlan.hu
info@chingatlan.hu

Környék:
Székesfehérvár közelében, Pusztaszabolcson található az ingatlan.
Csendes utcában, barátságos környéken, zöldövezetben. Az orvosi rendelő, állomás, és a bolt a közelben megtalálható.

V9705

Hirdetés feltöltve: 2025. 12. 19. Utoljára módosítva: 2025. 12. 19.

4 szobás családi házak ára Pusztaszabolcson

Ebből az összehasonlításból megtudhatod, hogyan viszonyul a lakás ára a környékbeli családi házak átlagos árához. Ez nem azt jelenti, hogy ennyivel olcsóbb vagy drágább, mint amennyit a lakás ér, hanem hogy ennyivel tér el a környékbeli átlagtól.

Ennek a m² ára
Pusztaszabolcs m² ár
783 e Ft
807 e Ft 3%
Ennek az ára
Pusztaszabolcs átlagár
72 M Ft m Ft
79.9 m Ft 10%

Az ingatlan elhelyezkedése

Cím: Pusztaszabolcs

Eladó családi házak a környékről

Eladó családi ház
Eladó családi ház

Pusztaszabolcs

74.9 M Ft
4 szoba
92 m2
Eladó családi ház
Eladó családi ház

Sárbogárd, Tinódy utca

19.9 M Ft
3 szoba
75 m2
Eladó családi ház
Eladó családi ház

Pusztaszabolcs

65 M Ft
5 szoba
100 m2
Eladó családi ház
Eladó családi ház

Szabadbattyán

357.518 M Ft
9 + 2 szoba
1053 m2
Eladó családi ház
Eladó családi ház

Pusztaszabolcs

84.9 M Ft
4 szoba
106 m2
Eladó családi ház
Eladó családi ház

Pusztavám

22.9 M Ft
3 szoba
103 m2
Eladó családi ház
Eladó családi ház

Pusztaszabolcs

86.9 M Ft
4 szoba
105 m2
Eladó családi ház
Eladó családi ház

Besnyő

25 M Ft
1 szoba
30 m2
Eladó családi ház
Eladó családi ház

Pusztaszabolcs

143.9 M Ft
4 szoba
149 m2
Eladó családi ház
Eladó családi ház

Tordas

105 M Ft
3 szoba
75 m2
Eladó családi ház
Eladó családi ház

Mór

110 M Ft
12 szoba
340 m2
Eladó családi ház
Eladó családi ház

Velence

85.9 M Ft
4 szoba
103 m2
Eladó családi ház
Eladó családi ház

Pusztaszabolcs

89.9 M Ft
4 szoba
95 m2
Eladó családi ház
Eladó családi ház

Alcsútdoboz, Szabadság utca

320 M Ft
12 szoba
620 m2
Eladó családi ház
Eladó családi ház

Kápolnásnyék, Bem utca

108.675 M Ft
5 szoba
136 m2
Eladó családi ház
Eladó családi ház

Pusztaszabolcs

79 M Ft
4 szoba
93 m2
Eladó családi ház
Eladó családi ház

Pusztaszabolcs

34.999 M Ft
2 szoba
40 m2
Eladó családi ház
Eladó családi ház

Pusztavám

22.9 M Ft
3 szoba
103 m2
Eladó családi ház
Eladó családi ház

Pusztaszabolcs

93 M Ft
4 szoba
100 m2
Eladó családi ház
Eladó családi ház

Tordas, Szabadság út

29.9 M Ft
2 szoba
63 m2
Eladó családi ház
Eladó családi ház

Pusztaszabolcs

86.9 M Ft
4 szoba
105 m2
Eladó családi ház
Eladó családi ház

Pusztaszabolcs

143.9 M Ft
4 szoba
149 m2
Eladó családi ház
Eladó családi ház

Velence

80 M Ft
6 szoba
200 m2
Eladó családi ház
Eladó családi ház

Baracska, Határ utca

74.9 M Ft
3 szoba
155 m2

Falusi CSOK ingatlanok

Eladó családi ház
Eladó családi ház

Sződ, Mártírok útja

73.4 M Ft
6 szoba
120 m2
Eladó családi ház
Eladó családi ház

Szabolcs

64.9 M Ft
6 szoba
272 m2
Eladó családi ház
Eladó családi ház

Nyírábrány

17.9 M Ft
2 szoba
65 m2
Eladó családi ház
Eladó családi ház

Vértesacsa

137.5 M Ft
7 szoba
178 m2
Eladó családi ház
Eladó családi ház

Somogygeszti

10.9 M Ft
2 szoba
115 m2
Eladó családi ház
Eladó családi ház

Bakonya

38.5 M Ft
2 szoba
75 m2
Eladó családi ház
Eladó családi ház

Devecser

62.49 M Ft
5 szoba
180 m2
Eladó családi ház
Eladó családi ház

Törtel

74.9 M Ft
6 szoba
143 m2