Seven Pearl

Eladó családi ház
Papkeszi

Figyelem!

Ez az ingatlan a 2019.07.01-től induló falusi CSOK által támogatott településen található

+ 7 kép 1/10
108 191 000 Ft108.191 M Ft 992 578 Ft/m2
4 szoba
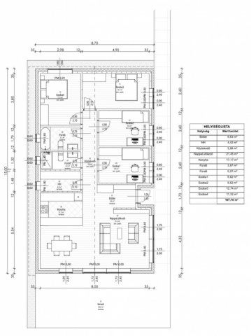
109 m2
építés éve:2026

Részletes adatok

Telekméret: 2500 m2
Fűtés: Egyéb
Energetikai besorolás: A++

Az OTP Bank lakáshitel ajánlataFizetett hirdetés

+36 30 279
Barta Kelemen Marianna
H4Y Készházak Kft.

Érdekel az OTP Bank kedvezményes lakáshitel ajánlata? *

* A kérdésre „Igen” válasz bejelölése esetén, az „Üzenet küldése” gombra kattintva kijelentem, hogy az OTP Bank Nyrt. Adatkezelési tájékoztatójának tartalmát megismertem és tudomásul vettem.

Eladó családi ház leírása

A feltüntetett ár tartalmazza a tervezést és teljes kivitelezést a lent csatolt műszaki tartalommal, és a telek vételárát is, 5% ÁFA-val.

AKCIÓ!
A cég 5. születésnapja alkalmából most 100 m² felett 5%, 160 m² felett pedig 8% kedvezmény jár decemberig!

A HANNA típusház főbb adatai:
A legnépszerűbb típusház
Bruttó alapterület: 128 m², nettó alapterület: 109 m²
3 vagy 4 hálószobás elrendezés
Amerikai konyhás nappali, 2 fürdő, kamra, gardrób
Alaprajz testreszabható – egyéni igények szerint alakítható
Az ár kulcsrakész állapotra és a kiválasztott telekre értendő

TELEK ÉS ELHELYEZKEDÉS – Papkeszi, Dózsa utca
Az ingatlanhoz tartozó építési telek Papkeszin található.
A 2500 m²-es telek egy zsákutcában, ezáltal egy csendes, természetközeli területen található; Veszprém és a Balaton is kb. 15 perc autóval. Az utca végén található egy buszmegálló is.
A településen található óvoda, iskola, orvosi rendelő és posta is, és bevásárlásra is van lehetőség.
A telken található egy bontásra váró ház is.
A telek ára: br. 32 M Ft – benne van a meghirdetett árban
A terület nem a Homes4You tulajdona, de partnerünkön keresztül megvásárolható
Más telek is választható naprakész adatbázisunkból
Meglévő saját telekre is vállalunk építést országszerte!

MŰSZAKI TARTALOM – emelt fűtéskész kivitelben:
Szigetelt vasalt lemezalap
Liapor falazat (U=0,14 W/m²K) – téglaértékű, hőszigetelt
30 cm cellulóz födém hőszigetelés
20 cm homlokzati EPS szigetelés
Kömmerling 3 rétegű műanyag nyílászárók
Bramac tetőcserép tetőfedés
Hőszivattyús mennyezetfűtés-hűtés, hővisszanyerős szellőztetés
Elektromos + gépészeti alapszerelés
Aljzatbetonozás, gipszkartonozás
Napló

KULCSRAKÉSZ KIVITELEZÉS tartalmazza:
Festés (Fehérre festés Q2 minőségben)
hidegburkolatok (lap ára 10000 Ft/nm)
melegburkolatok (lap ára 5000 Ft/nm)
Beltéri ajtók beépítése
Szaniterek előkészítése munkadíjjal
szerelvényezés (Schneider Asfora)

Miért a LIAPOR KÉSZHÁZAK az egyik legnépszerűbb választás?
Tartós tégla anyagú vasbeton falazat, több 200+ év várható élettartam
Minden bank finanszírozza (CSOK+, Babaváró, piaci hitelek – ügyintézéssel együtt)
Átlag feletti hang- és hőszigetelő képesség
Előre gyártás miatt, kevesebb élő munkaerő és hibalehetőség
Gyors építési idő, falazat összeállítása 1 munkanap alatt

Miért a HOMES4YOU?
Több mint 200 referencia projekt, rengeteg elégedett megrendelő
3 bemutatópark (Siófok, Nyúl, Érd)
Kulcsrakész átadás akár 4-6 hónapon belül
99,8%-os pontossággal tartott költségvetési keret!
Alapáron is A++ energiaosztály – minimális rezsiköltség, zöld technológia
Több, mint 50 féle választható típusterv
Homes4You – Az okos döntés.
Keressen bizalommal! Mutatunk referenciát, segítünk a döntésben!
A Homes4You csapata

Hirdetés feltöltve: 2025. 11. 16. Utoljára módosítva: 2026. 01. 13.

Az ingatlan elhelyezkedése

Cím: Papkeszi

Eladó ingatlanok a környékről

Eladó családi ház
Eladó családi ház

Pápasalamon

21 M Ft
3 szoba
80 m2
Eladó nyaraló
Eladó nyaraló

Balatonvilágos

139 M Ft
5 szoba
150 m2
Eladó családi ház
Eladó családi ház

Papkeszi

89.9 M Ft
9 szoba
403 m2
Eladó téglalakás
Eladó téglalakás

Balatonakarattya

205.384 M Ft
3 szoba
78 m2
Eladó nyaraló
Eladó nyaraló

Ábrahámhegy

79.9 M Ft
1 + 2 szoba
60 m2
Eladó családi ház
Eladó családi ház

Tihany

234 M Ft
5 szoba
185 m2
Eladó családi ház
Eladó családi ház

Berhida

39.98 M Ft
3 szoba
85 m2
Eladó téglalakás
Eladó téglalakás

Balatonakarattya

171.704 M Ft
2 szoba
65 m2
Eladó téglalakás
Eladó téglalakás

Balatonakarattya

163.576 M Ft
2 szoba
62 m2
Eladó családi ház
Eladó családi ház

Balatonfűzfő

270 M Ft
5 + 4 szoba
270 m2
Eladó családi ház
Eladó családi ház

Veszprém

80 M Ft
3 + 3 szoba
112 m2
Eladó családi ház
Eladó családi ház

Balatonalmádi

349 M Ft
12 szoba
485 m2
Eladó családi ház
Eladó családi ház

Papkeszi

121.252 M Ft
4 szoba
125 m2
Eladó családi ház
Eladó családi ház

Veszprém

148.9 M Ft
5 + 1 szoba
244 m2
Eladó családi ház
Eladó családi ház

Révfülöp

109 M Ft
5 szoba
187 m2
Eladó családi ház
Eladó családi ház

Papkeszi

21.9 M Ft
1 + 1 szoba
65 m2
Eladó téglalakás
Eladó téglalakás

Balatonakarattya

169.951 M Ft
2 szoba
64 m2
Eladó családi ház
Eladó családi ház

Tapolca

89.9 M Ft
5 szoba
120 m2
Eladó telek
Eladó telek

Révfülöp, Végmáli utca

37.9 M Ft
1717 m²
Eladó családi ház
Eladó családi ház

Balatonfőkajár

49.5 M Ft
3 szoba
96 m2
Eladó családi ház
Eladó családi ház

Pápa, Hunyadi János utca

39 M Ft
3 szoba
125 m2
Eladó családi ház
Eladó családi ház

Veszprém

149 M Ft
4 + 1 szoba
250 m2
Eladó családi ház
Eladó családi ház

Papkeszi

110 M Ft
9 szoba
306 m2
Eladó családi ház
Eladó családi ház

Balatonfőkajár, Kossuth utca

56.8 M Ft
7 szoba
195 m2

Falusi CSOK ingatlanok

Eladó családi ház
Eladó családi ház

Fonyód

89.9 M Ft
7 szoba
151 m2
Eladó családi ház
Eladó családi ház

Szakmár

12.9 M Ft
3 + 1 szoba
90 m2
Eladó családi ház
Eladó családi ház

Nagyhegyes

80 M Ft
2 szoba
94 m2
Eladó ikerház
Eladó ikerház

Balatonakali

129 M Ft
4 szoba
145 m2
Eladó ikerház
Eladó ikerház

Bodajk

64.9 M Ft
5 szoba
108 m2
Eladó családi ház
Eladó családi ház

Pánd

31.5 M Ft
4 szoba
74 m2
Eladó családi ház
Eladó családi ház

Eplény

99.9 M Ft
6 szoba
163 m2
Eladó ikerház
Eladó ikerház

Balatonakali

129 M Ft
4 szoba
145 m2

Falusi CSOK ingatlanok

Eladó családi ház
Eladó családi ház

Sükösd

40 M Ft
3 szoba
112 m2
Eladó családi ház
Eladó családi ház

Becsehely

18.5 M Ft
2 szoba
99 m2
Eladó családi ház
Eladó családi ház

Balatonfőkajár

38.5 M Ft
2 szoba
64 m2
Eladó téglalakás
Eladó téglalakás

Kőröshegy

78 M Ft
2 szoba
66 m2
Eladó családi ház
Eladó családi ház

Lesenceistvánd

75 M Ft
2 szoba
90 m2
Eladó családi ház
Eladó családi ház

Nemesbőd

87 M Ft
5 szoba
120 m2
Eladó családi ház
Eladó családi ház

Törtel

39 M Ft
1 + 1 szoba
118 m2
Eladó családi ház
Eladó családi ház

Újlengyel

108 M Ft
3 szoba
80 m2