Aerogate Homes

Eladó családi ház
Onga

Figyelem!

Ez az ingatlan a 2019.07.01-től induló falusi CSOK által támogatott településen található

+ 17 kép 1/20
99 000 000 Ft99 M Ft 618 750 Ft/m2
4 szoba
160 m2
építés éve:2014

Részletes adatok

Telekméret: 1785 m2
Fűtés: Gázkazán
Energetikai besorolás: Nem adta meg a hirdető

Az OTP Bank lakáshitel ajánlataFizetett hirdetés

+36 70 313
Pleszkó Anikó
OTP Ingatlanpont Miskolc Szemere

Érdekel az OTP Bank kedvezményes lakáshitel ajánlata? *

* A kérdésre „Igen” válasz bejelölése esetén, az „Üzenet küldése” gombra kattintva kijelentem, hogy az OTP Bank Nyrt. Adatkezelési tájékoztatójának tartalmát megismertem és tudomásul vettem.

Eladó családi ház leírása

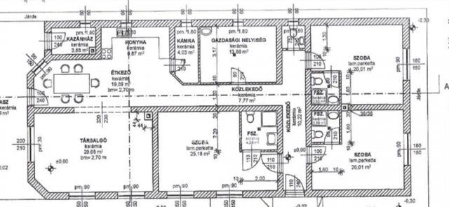
Eladó Onga nagyon jó, frekventált részén egy 160 nm-es, 2014-ben 38-as téglából épült, amerikai konyhás nappali + 3 szobás családi ház 1700 nm-es telken. Az ingatlan élettere egy szinten, nagyon jó elosztásban lett kialakítva. 3 hatalmas háló, teljes ablakfelületes, napfényes, nagyterű, részben szeparált amerikai konyhás napppali + étkező kerti terasz kapcsolattal, spájz, külön vendég WC, szoba méretű mosó gazdasági helyiség. Minden hálószobához saját fürdőszoba tartozik WC-vel. Az épület fal-és födémszigetelt, fűtése mind modern két éves kondenzációs kazánról, mind professzionális perlet és biomassza fűtésű kazánról, mind pedig alternatívaként a minden helyiségben beépítésre került Split klímákról működik. A ház méretéhez mérten rezsije kiváló.
A hatalmas telek felső része leválasztott, ez nagyrészben térburkolt és parkosított. Itt található egy kétbeállásos garázs és a nappali/terasz kapcsolat folytatásában egy épített medence profi gépészettel.
A telek másik része nagyságából adódóan sokrétű hasznosítást tesz lehetővé. ( gazdálkodás, ranch, stb.)
Onga dinamikusan fejlődő kisváros Miskolctól 10 km-re. Ideális otthon nagycsaládosoknak is! Hívjon bizalommal és nézzük meg együtt! Az ingatlan az Otthon Start Hitelprogram - nak megfelel.

Hirdetés feltöltve: 2025. 10. 18. Utoljára módosítva: 2025. 11. 02.

4 szobás családi házak ára Ongán

Ebből az összehasonlításból megtudhatod, hogyan viszonyul a lakás ára a környékbeli családi házak átlagos árához. Ez nem azt jelenti, hogy ennyivel olcsóbb vagy drágább, mint amennyit a lakás ér, hanem hogy ennyivel tér el a környékbeli átlagtól.

Ennek a m² ára
Onga m² ár
619 e Ft
574 e Ft -8%
Ennek az ára
Onga átlagár
99 M Ft m Ft
81.3 m Ft -22%

Az ingatlan elhelyezkedése

Cím: Onga

Eladó családi házak a környékről

Eladó családi ház
Eladó családi ház

Onga

92.9 M Ft
4 szoba
160 m2
Eladó családi ház
Eladó családi ház

Onga

92.9 M Ft
4 szoba
160 m2
Eladó családi ház
Eladó családi ház

Onga

89.9 M Ft
4 szoba
133 m2
Eladó családi ház
Eladó családi ház

Ózd, 48-as út

39.9 M Ft
3 + 1 szoba
300 m2
Eladó családi ház
Eladó családi ház

Onga

25 M Ft
2 + 1 szoba
96 m2
Eladó családi ház
Eladó családi ház

Putnok

11 M Ft
3 szoba
79 m2
Eladó családi ház
Eladó családi ház

Gönc

26 M Ft
3 szoba
130 m2
Eladó családi ház
Eladó családi ház

Onga

92.9 M Ft
4 szoba
160 m2
Eladó családi ház
Eladó családi ház

Miskolc

25.9 M Ft
4 szoba
148 m2
Eladó családi ház
Eladó családi ház

Tiszalúc, Alkotmány utca

16.9 M Ft
4 szoba
137 m2
Eladó családi ház
Eladó családi ház

Gönc

20.5 M Ft
2 szoba
80 m2
Eladó családi ház
Eladó családi ház

Nemesbikk, Kossuth utca 3

4.5 M Ft
2 szoba
80 m2
Eladó családi ház
Eladó családi ház

Miskolc

149 M Ft
4 szoba
463 m2
Eladó családi ház
Eladó családi ház

Taktaharkány, Magtár utca

9.9 M Ft
3 szoba
100 m2
Eladó családi ház
Eladó családi ház

Onga

46.8 M Ft
4 szoba
103 m2
Eladó családi ház
Eladó családi ház

Edelény

31.5 M Ft
2 szoba
75 m2
Eladó családi ház
Eladó családi ház

Tiszalúc

19.9 M Ft
4 szoba
180 m2
Eladó családi ház
Eladó családi ház

Onga

92.9 M Ft
4 szoba
160 m2
Eladó családi ház
Eladó családi ház

Ózd

15 M Ft
7 szoba
225 m2
Eladó családi ház
Eladó családi ház

Szikszó

89.9 M Ft
3 szoba
100 m2
Eladó családi ház
Eladó családi ház

Miskolc

25.9 M Ft
4 szoba
148 m2
Eladó családi ház
Eladó családi ház

Onga

19.35 M Ft
2 + 1 szoba
63 m2
Eladó családi ház
Eladó családi ház

Taktaszada, Thököly utca

37 M Ft
4 + 1 szoba
190 m2
Eladó családi ház
Eladó családi ház

Onga

46.8 M Ft
5 szoba
103 m2

Falusi CSOK ingatlanok

Eladó családi ház
Eladó családi ház

Recsk

59 M Ft
2 szoba
70 m2
Eladó családi ház
Eladó családi ház

Kaposgyarmat

5.9 M Ft
1 szoba
40 m2
Eladó családi ház
Eladó családi ház

Vácszentlászló

45 M Ft
4 szoba
100 m2
Eladó családi ház
Eladó családi ház

Vasszécseny

20 M Ft
2 szoba
139 m2
Eladó családi ház
Eladó családi ház

Somogygeszti

10.9 M Ft
2 szoba
115 m2
Eladó családi ház
Eladó családi ház

Nyáregyháza

124.9 M Ft
7 szoba
267 m2
Eladó családi ház
Eladó családi ház

Csemő

16 M Ft
2 szoba
46 m2
Eladó családi ház
Eladó családi ház

Berzence

38.7 M Ft
5 szoba
110 m2

Falusi CSOK ingatlanok

Eladó családi ház
Eladó családi ház

Geresdlak

44.9 M Ft
4 + 1 szoba
200 m2
Eladó családi ház
Eladó családi ház

Zákány, Május 1. utca

39.9 M Ft
2 szoba
112 m2
Eladó családi ház
Eladó családi ház

Devecser

33.9 M Ft
3 szoba
75 m2
Eladó családi ház
Eladó családi ház

Újkígyós

11.99 M Ft
2 szoba
77 m2
Eladó családi ház
Eladó családi ház

Enese

82.9 M Ft
4 szoba
90 m2
Eladó családi ház
Eladó családi ház

Hosszúhetény

89.9 M Ft
5 szoba
121 m2
Eladó családi ház
Eladó családi ház

Bőny

19.5 M Ft
1 szoba
30 m2
Eladó családi ház
Eladó családi ház

Somogygeszti

10.9 M Ft
2 szoba
115 m2