Kedves Felhasználónk! Rendszerfrissítés miatt az oldalunk 2026. február 9-én 12 órától várhatóan 20 óráig nem lesz elérhető. Köszönjük megértésed!
Metrodom

Eladó családi ház
Onga

Figyelem!

Ez az ingatlan a 2019.07.01-től induló falusi CSOK által támogatott településen található

+ 17 kép 1/20
92 900 000 Ft92.9 M Ft 580 625 Ft/m2
4 szoba
160 m2
építés éve:2014

Részletes adatok

Telekméret: 1785 m2
Fűtés: Gázkazán
Energetikai besorolás: Nem adta meg a hirdető

Az OTP Bank lakáshitel ajánlataFizetett hirdetés

+36 30 590
Drótos Bence
OTP Ingatlanpont Miskolc Szemere

Érdekel az OTP Bank kedvezményes lakáshitel ajánlata? *

* A kérdésre „Igen” válasz bejelölése esetén, az „Üzenet küldése” gombra kattintva kijelentem, hogy az OTP Bank Nyrt. Adatkezelési tájékoztatójának tartalmát megismertem és tudomásul vettem.

Eladó családi ház leírása

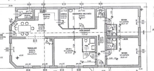
Eladásra kínálunk Onga központ közeli részén egy 210 nm-es, nappali + 3 szobás, 2014-ben épült, kiváló elosztású családi házat x nm-es telken. Az ingatlanon 10 cm-es szigetelés van, a födém is szigetelt, a házba hő-és hangszigetelt nyílászárók kerültek beépítésre. Fűtése vegyes tüzelésű kályhával (perlet, biomassza), gázcirkó kazánnal és 3 split klímával megoldott. Az ingatlanban méretes mosokónyha is található, minden szobához külön fürdőszoba tartozik, ill minden szobának külön körön van a fűtése. Az ingatlanból kilépve méretes teraszra jutunk, mely előtt medencét alakítottak ki, ill a portán szigetelt kocsibeálló ad helyet a gépjárműnek.

Hirdetés feltöltve: 2025. 10. 19. Utoljára módosítva: 2026. 01. 13.

4 szobás családi házak ára Ongán

Ebből az összehasonlításból megtudhatod, hogyan viszonyul a lakás ára a környékbeli családi házak átlagos árához. Ez nem azt jelenti, hogy ennyivel olcsóbb vagy drágább, mint amennyit a lakás ér, hanem hogy ennyivel tér el a környékbeli átlagtól.

Ennek a m² ára
Onga m² ár
581 e Ft
582 e Ft 0%
Ennek az ára
Onga átlagár
92.9 M Ft m Ft
78.4 m Ft -18%

Az ingatlan elhelyezkedése

Cím: Onga

Eladó családi házak a környékről

Eladó családi ház
Eladó családi ház

Onga

72.9 M Ft
3 szoba
109 m2
Eladó családi ház
Eladó családi ház

Onga, Ifjúság utca

63 M Ft
5 szoba
168 m2
Eladó családi ház
Eladó családi ház

Onga

92.9 M Ft
4 szoba
160 m2
Eladó családi ház
Eladó családi ház

Gönc, Kossuth Lajos utca

26 M Ft
2 + 1 szoba
130 m2
Eladó családi ház
Eladó családi ház

Gönc

20.5 M Ft
2 szoba
80 m2
Eladó családi ház
Eladó családi ház

Komlóska

55.9 M Ft
7 szoba
247 m2
Eladó családi ház
Eladó családi ház

Onga

92.9 M Ft
4 szoba
160 m2
Eladó családi ház
Eladó családi ház

Onga

89.9 M Ft
4 szoba
133 m2
Eladó családi ház
Eladó családi ház

Miskolc

149 M Ft
4 szoba
463 m2
Eladó családi ház
Eladó családi ház

Onga

65 M Ft
5 szoba
168 m2
Eladó családi ház
Eladó családi ház

Léh

23.99 M Ft
2 + 1 szoba
100 m2
Eladó családi ház
Eladó családi ház

Tiszalúc

19.9 M Ft
4 szoba
180 m2
Eladó családi ház
Eladó családi ház

Miskolc

25.9 M Ft
4 szoba
148 m2
Eladó családi ház
Eladó családi ház

Tarcal

19.9 M Ft
3 szoba
110 m2
Eladó családi ház
Eladó családi ház

Edelény

31.5 M Ft
2 szoba
75 m2
Eladó családi ház
Eladó családi ház

Ózd

25.99 M Ft
4 szoba
198 m2
Eladó családi ház
Eladó családi ház

Miskolc

54.99 M Ft
4 szoba
103 m2
Eladó családi ház
Eladó családi ház

Onga

65 M Ft
5 szoba
168 m2
Eladó családi ház
Eladó családi ház

Gönc

26 M Ft
3 szoba
130 m2
Eladó családi ház
Eladó családi ház

Ózd

26.5 M Ft
3 szoba
100 m2
Eladó családi ház
Eladó családi ház

Onga

46.8 M Ft
5 szoba
103 m2
Eladó családi ház
Eladó családi ház

Onga

72.9 M Ft
4 szoba
109 m2
Eladó családi ház
Eladó családi ház

Onga

25 M Ft
2 + 1 szoba
96 m2
Eladó családi ház
Eladó családi ház

Onga

99 M Ft
4 szoba
160 m2

Falusi CSOK ingatlanok

Eladó téglalakás
Eladó téglalakás

Balatonszemes

123.3 M Ft
2 szoba
70 m2
Eladó családi ház
Eladó családi ház

Pécsvárad

140 M Ft
2 szoba
79 m2
Eladó családi ház
Eladó családi ház

Parád

47.9 M Ft
3 szoba
85 m2
Eladó téglalakás
Eladó téglalakás

Balatonszemes

119.9 M Ft
2 szoba
81 m2
Eladó családi ház
Eladó családi ház

Gyöngyöshalász

59 M Ft
4 + 3 szoba
214 m2
Eladó téglalakás
Eladó téglalakás

Kőröshegy

68 M Ft
2 szoba
65 m2
Eladó családi ház
Eladó családi ház

Bakonyszentkirály

99.99 M Ft
5 szoba
126 m2
Eladó családi ház
Eladó családi ház

Szarvaskend

26.9 M Ft
2 szoba
83 m2

Falusi CSOK ingatlanok

Eladó családi ház
Eladó családi ház

Alattyán

8.5 M Ft
1 + 1 szoba
70 m2
Eladó családi ház
Eladó családi ház

Hercegszántó

29.9 M Ft
4 szoba
130 m2
Eladó családi ház
Eladó családi ház

Seregélyes

73.9 M Ft
4 szoba
110 m2
Eladó családi ház
Eladó családi ház

Bajna, Kossuth L. u. 28

58.5 M Ft
7 szoba
192 m2
Eladó családi ház
Eladó családi ház

Bag

16.9 M Ft
6 szoba
160 m2
Eladó családi ház
Eladó családi ház

Bag

16.9 M Ft
6 szoba
160 m2
Eladó családi ház
Eladó családi ház

Badacsonytördemic

179.07 M Ft
4 szoba
160 m2
Eladó családi ház
Eladó családi ház

Iváncsa

33.9 M Ft
2 + 1 szoba
72 m2