Astora Olive Club House

Eladó családi ház
Onga

Figyelem!

Ez az ingatlan a 2019.07.01-től induló falusi CSOK által támogatott településen található

+ 17 kép 1/20
92 900 000 Ft92.9 M Ft 580 625 Ft/m2
4 szoba
160 m2
építés éve:2014

Részletes adatok

Telekméret: 1785 m2
Fűtés: Gázkazán
Energetikai besorolás: Nem adta meg a hirdető

Az OTP Bank lakáshitel ajánlataFizetett hirdetés

+36 70 907
Klubert Gergő
OTP Ingatlanpont Miskolc Szemere

Érdekel az OTP Bank kedvezményes lakáshitel ajánlata? *

* A kérdésre „Igen” válasz bejelölése esetén, az „Üzenet küldése” gombra kattintva kijelentem, hogy az OTP Bank Nyrt. Adatkezelési tájékoztatójának tartalmát megismertem és tudomásul vettem.

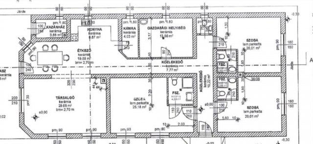
Eladó családi ház leírása

Eladásra kínálunk Onga központ közeli részén egy 210 nm-es, nappali + 3 szobás, 2014-ben épült, kiváló elosztású családi házat x nm-es telken. Az ingatlanon 10 cm-es szigetelés van, a födém is szigetelt, a házba hő-és hangszigetelt nyílászárók kerültek beépítésre. Fűtése vegyes tüzelésű kályhával (perlet, biomassza), gázcirkó kazánnal és 3 split klímával megoldott. Az ingatlanban méretes mosokónyha is található, minden szobához külön fürdőszoba tartozik, ill minden szobának külön körön van a fűtése. Az ingatlanból kilépve méretes teraszra jutunk, mely előtt medencét alakítottak ki, ill a portán szigetelt kocsibeálló ad helyet a gépjárműnek.

Hirdetés feltöltve: 2026. 01. 24. Utoljára módosítva: 2026. 01. 24.

4 szobás családi házak ára Ongán

Ebből az összehasonlításból megtudhatod, hogyan viszonyul a lakás ára a környékbeli családi házak átlagos árához. Ez nem azt jelenti, hogy ennyivel olcsóbb vagy drágább, mint amennyit a lakás ér, hanem hogy ennyivel tér el a környékbeli átlagtól.

Ennek a m² ára
Onga m² ár
581 e Ft
577 e Ft -1%
Ennek az ára
Onga átlagár
92.9 M Ft m Ft
79.1 m Ft -18%

Az ingatlan elhelyezkedése

Cím: Onga

Eladó családi házak a környékről

Eladó családi ház
Eladó családi ház

Miskolc

149 M Ft
4 szoba
463 m2
Eladó családi ház
Eladó családi ház

Miskolc

110 M Ft
6 szoba
199 m2
Eladó családi ház
Eladó családi ház

Onga

89.9 M Ft
4 szoba
133 m2
Eladó családi ház
Eladó családi ház

Szikszó

89.9 M Ft
3 szoba
100 m2
Eladó családi ház
Eladó családi ház

Onga

92.9 M Ft
4 szoba
160 m2
Eladó családi ház
Eladó családi ház

Gönc

26 M Ft
3 szoba
130 m2
Eladó családi ház
Eladó családi ház

Gönc

20.5 M Ft
2 szoba
80 m2
Eladó családi ház
Eladó családi ház

Onga

72.9 M Ft
3 szoba
109 m2
Eladó családi ház
Eladó családi ház

Komlóska

55.9 M Ft
7 szoba
247 m2
Eladó családi ház
Eladó családi ház

Onga

46.8 M Ft
5 szoba
103 m2
Eladó családi ház
Eladó családi ház

Tiszalúc, Alkotmány utca

16.9 M Ft
4 szoba
137 m2
Eladó családi ház
Eladó családi ház

Ózd

26.5 M Ft
3 szoba
100 m2
Eladó családi ház
Eladó családi ház

Onga

92.9 M Ft
4 szoba
160 m2
Eladó családi ház
Eladó családi ház

Onga

27.99 M Ft
3 szoba
88 m2
Eladó családi ház
Eladó családi ház

Ózd

25.99 M Ft
4 szoba
198 m2
Eladó családi ház
Eladó családi ház

Onga

92.9 M Ft
4 szoba
160 m2
Eladó családi ház
Eladó családi ház

Onga

25 M Ft
2 + 1 szoba
96 m2
Eladó családi ház
Eladó családi ház

Onga

92.9 M Ft
4 szoba
160 m2
Eladó családi ház
Eladó családi ház

Putnok

11 M Ft
3 szoba
79 m2
Eladó családi ház
Eladó családi ház

Onga

21.9 M Ft
3 szoba
120 m2
Eladó családi ház
Eladó családi ház

Ózd, 48-as út

39.9 M Ft
3 + 1 szoba
300 m2
Eladó családi ház
Eladó családi ház

Miskolc

25.9 M Ft
4 szoba
148 m2
Eladó családi ház
Eladó családi ház

Onga

92.9 M Ft
4 szoba
160 m2
Eladó családi ház
Eladó családi ház

Tiszalúc

19.9 M Ft
4 szoba
180 m2

Falusi CSOK ingatlanok

Eladó családi ház
Eladó családi ház

Szarvaskend

26.9 M Ft
2 szoba
83 m2
Eladó családi ház
Eladó családi ház

Eplény

99.9 M Ft
6 szoba
163 m2
Eladó családi ház
Eladó családi ház

Bozsok

290 M Ft
6 szoba
370 m2
Eladó családi ház
Eladó családi ház

Somogygeszti

38.6 M Ft
3 + 1 szoba
98 m2
Eladó családi ház
Eladó családi ház

Csurgó

23.5 M Ft
4 szoba
80 m2
Eladó ikerház
Eladó ikerház

Balatonakali

370 M Ft
4 szoba
140 m2
Eladó családi ház
Eladó családi ház

Tabdi

95 M Ft
45 szoba
1490 m2
Eladó családi ház
Eladó családi ház

Somogyszil

27.9 M Ft
3 szoba
140 m2

Falusi CSOK ingatlanok

Eladó családi ház
Eladó családi ház

Fülöpszállás

299 M Ft
14 + 5 szoba
680 m2
Eladó családi ház
Eladó családi ház

Badacsonytomaj

124.9 M Ft
4 + 1 szoba
138 m2
Eladó családi ház
Eladó családi ház

Kenyeri

39.9 M Ft
3 szoba
94 m2
Eladó családi ház
Eladó családi ház

Kengyel

22.9 M Ft
3 szoba
100 m2
Eladó családi ház
Eladó családi ház

Gáborján

5.5 M Ft
2 szoba
68 m2
Eladó családi ház
Eladó családi ház

Somogyszil

27.9 M Ft
3 szoba
140 m2
Eladó családi ház
Eladó családi ház

Kamut

28 M Ft
3 szoba
100 m2
Eladó családi ház
Eladó családi ház

Segesd

14.3 M Ft
3 szoba
100 m2