City Pearl

Eladó családi ház
Kecskemét

+ 7 kép 1/10
140 000 000 Ft140 M Ft 560 000 Ft/m2
5 szoba
250 m2
építés éve:1998

Részletes adatok

Telekméret: 539 m2
Fűtés: Gázkazán
Energetikai besorolás: Nem adta meg a hirdető

Az OTP Bank lakáshitel ajánlataFizetett hirdetés

+36 70 336
Vezsenyi Gábor
HOUSE36 Ingatlanbázis Kft.

Érdekel az OTP Bank kedvezményes lakáshitel ajánlata? *

* A kérdésre „Igen” válasz bejelölése esetén, az „Üzenet küldése” gombra kattintva kijelentem, hogy az OTP Bank Nyrt. Adatkezelési tájékoztatójának tartalmát megismertem és tudomásul vettem.

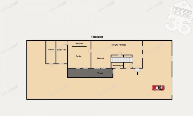
Eladó családi ház leírása

Különleges lehetőség Kecskemét belvárosában!
250 m² lakóterű családi ház – 539 m²-es telekkel, melléképülettel és kiváló adottságokkal eladó!
A város szívében, mégis csendes környezetben kínáljuk megvételre ezt a tágas, 5 szobás, kétszintes családi házat, amely igazi otthon lehet nagycsaládosoknak vagy akár vállalkozásra, rendelőnek, irodának is ideális választás.

Főbb jellemzők:

Lakótér: 250 m²
Telek területe: 539 m²
Szobák száma: 5 + konyha-étkező
Fürdőszobák: 2
WC-k: 2
Építés éve: 1998, felújítva: 2015
Fűtés: gáz cirkó rendszer
Állapot: jó állapotú, azonnal költözhető
Melléképület: tárolásra alkalmas, 18 m²
Parkolás: gépkocsi beálló
Tetőtér beépített, további bővítésre alkalmas

​Telek és beépíthetőség:

Beépíthetőség: 50%
Megengedett építménymagasság: 9,5 m

Ez kiváló lehetőség akár bővítésre, új épület kialakítására vagy befektetési célra.

Elhelyezkedés:

Belvárosi lokáció, minden elérhető közelségben:
Buszmegálló, bolt 50 méter
Iskola/óvoda: 100 méter

Mégis nyugodt, családias környezet, rendezett utcafronttal.
Figyelem az adatlap megbízónktól kapott adatok alapján készült, pontosságáért felelősséget nem tudunk vállalni!
Az iroda legfrissebb, aktuális kínálatát a HOUSE36 saját weboldalán találja!

Hirdetés feltöltve: 2025. 11. 18. Utoljára módosítva: 2026. 01. 22.

5 szobás családi házak ára Kecskeméten

Ebből az összehasonlításból megtudhatod, hogyan viszonyul a lakás ára a környékbeli családi házak átlagos árához. Ez nem azt jelenti, hogy ennyivel olcsóbb vagy drágább, mint amennyit a lakás ér, hanem hogy ennyivel tér el a környékbeli átlagtól.

Ennek a m² ára
Kecskemét m² ár
560 e Ft
721 e Ft 22%
Ennek az ára
Kecskemét átlagár
140 M Ft m Ft
147.3 m Ft 5%

Az ingatlan elhelyezkedése

Cím: Kecskemét

Eladó családi házak a környékről

Eladó családi ház
Eladó családi ház

Kecskemét, Alsószéktó, Alsószéktó 138

58 M Ft
5 szoba
92 m2
Eladó családi ház
Eladó családi ház

Kecskemét, Alsószéktó, Alsószéktó 138

55 M Ft
5 szoba
91 m2
Eladó családi ház
Eladó családi ház

Kecskemét

219 M Ft
5 szoba
190 m2
Eladó családi ház
Eladó családi ház

Bácsalmás

46.5 M Ft
5 szoba
232 m2
Eladó családi ház
Eladó családi ház

Kecskemét

39.9 M Ft
2 szoba
110 m2
Eladó családi ház
Eladó családi ház

Kecskemét, Alsószéktó, Alsószéktó 138

63 M Ft
5 szoba
91 m2
Eladó családi ház
Eladó családi ház

Kunadacs

210 M Ft
14 szoba
920 m2
Eladó családi ház
Eladó családi ház

Kecskemét

6.9 M Ft
1 szoba
30 m2
Eladó családi ház
Eladó családi ház

Kecskemét

119.8 M Ft
5 szoba
138 m2
Eladó családi ház
Eladó családi ház

Kiskunmajsa, Kiskunmajsa - Birtok

91.8 M Ft
5 szoba
170 m2
Eladó családi ház
Eladó családi ház

Kecskemét, Alsószéktó, Alsószéktó 138

65 M Ft
5 szoba
98 m2
Eladó családi ház
Eladó családi ház

Kecskemét, Alsószéktó, Alsószéktó 138

55 M Ft
5 szoba
91 m2
Eladó családi ház
Eladó családi ház

Kecskemét

300 M Ft
19 szoba
1100 m2
Eladó családi ház
Eladó családi ház

Kecskemét

24.9 M Ft
3 szoba
62 m2
Eladó családi ház
Eladó családi ház

Kecskemét

24.9 M Ft
3 szoba
62 m2
Eladó családi ház
Eladó családi ház

Kecskemét

199 M Ft
5 szoba
350 m2
Eladó családi ház
Eladó családi ház

Kecskemét

259 M Ft
3 + 7 szoba
266 m2
Eladó családi ház
Eladó családi ház

Kecskemét

185 M Ft
3 szoba
140 m2
Eladó családi ház
Eladó családi ház

Kecskemét

93 M Ft
3 szoba
140 m2
Eladó családi ház
Eladó családi ház

Kecskemét, Alsószéktó, Alsószéktó 138

63 M Ft
5 szoba
91 m2
Eladó családi ház
Eladó családi ház

Kecskemét

199 M Ft
5 szoba
350 m2
Eladó családi ház
Eladó családi ház

Kecskemét

135 M Ft
5 szoba
220 m2
Eladó családi ház
Eladó családi ház

Kecskemét

135 M Ft
5 szoba
220 m2
Eladó családi ház
Eladó családi ház

Dunavecse

88.49 M Ft
8 szoba
378 m2

Falusi CSOK ingatlanok

Eladó családi ház
Eladó családi ház

Kesztölc

37.9 M Ft
3 szoba
75 m2
Eladó családi ház
Eladó családi ház

Tab

14.9 M Ft
3 szoba
110 m2
Eladó családi ház
Eladó családi ház

Szentbékkálla, Szentbékkálla

63.9 M Ft
2 szoba
143 m2
Eladó családi ház
Eladó családi ház

Ácsteszér

59 M Ft
5 szoba
116 m2
Eladó családi ház
Eladó családi ház

Seregélyes

75 M Ft
6 szoba
160 m2
Eladó családi ház
Eladó családi ház

Csengőd

42 M Ft
2 szoba
81 m2
Eladó családi ház
Eladó családi ház

Úri

260 M Ft
7 szoba
300 m2
Eladó családi ház
Eladó családi ház

Kétpó

14.9 M Ft
1 + 2 szoba
86 m2