Astora Márvány8

Eladó családi ház
Helvécia

+ 4 kép 1/7
72 000 000 Ft72 M Ft 800 000 Ft/m2
4 szoba
90 m2
építés éve:2025

Részletes adatok

Telekméret: 400 m2
Fűtés: Gázkazán
Energetikai besorolás: Nem adta meg a hirdető

Az OTP Bank lakáshitel ajánlataFizetett hirdetés

+36 70 389
Várnagy Krisztina
HOUSE36 Ingatlanbázis Kft.

Érdekel az OTP Bank kedvezményes lakáshitel ajánlata? *

* A kérdésre „Igen” válasz bejelölése esetén, az „Üzenet küldése” gombra kattintva kijelentem, hogy az OTP Bank Nyrt. Adatkezelési tájékoztatójának tartalmát megismertem és tudomásul vettem.

Eladó családi ház leírása

Kecskeméthez közel, Helvécián a központtól gyors, új úton, 10 perc alatt megközelíthető részen kínálunk eladó házakat!!!

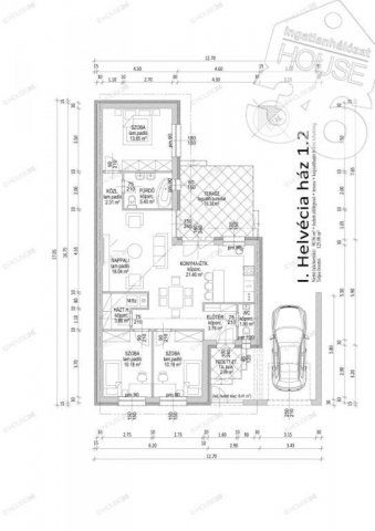
Kiváló elhelyezkedésű, új építésű környéken kínáljuk ezt a90 m2-es, Nappali + 3 szobás prémium kategóriás családi házat, önálló 400 m2-es telken fedett beállóval.
Aszfaltozott út készül hamarosan./10

Egyéb paraméterek:
- nappali + 3 szoba
- nettó 90 m2
- oldalhatáros építési mód
-Wienerberger Porotherm X-Therm tégla (+ 40 % hőtartás)
- 15 cm szigetelés
- 400 m2 -es összközműves önálló telek
- hőszivattyús fűtésrendszer
- padlófűtés
- prémium minőségű műanyag nyílászárók
- szaniterek 1 millió forintig az árban
- hideg - meleg burkolatok 9000.-/ m2
- ár garancia
- idő garancia
- várható átadás szerződéskötéstől számított 8-10hónap
- módosítható tervek

AZ ÁR AZ ÉPÍTÉSI TELEK ÁRÁT IS TARTALMAZZA!
A képek az egyik referenciaházban készültek!!!!

CSAK NÁLUNK KERESSE!!!


RÉGI MEGY, ÚJ JÖN? KERESSEN BIZALOMMAL!! SEGÍTEK MEGOLDANI!!

Figyelem, az adatlap megbízóinktól kapott adatok alapján készültek, pontosságáért felelősséget nem tudunk vállalni!
A HOUSE36 kínálatában található összes ingatlannal kapcsolatban tudok felvilágosítást nyújtani.
Szolgáltatásaink ügyfeleink részére díjmentesek!
Az iroda legfrissebb, aktuális kínálatát a HOUSE36 saját weboldalán találja!

Hirdetés feltöltve: 2025. 12. 06. Utoljára módosítva: 2026. 02. 06.

4 szobás családi házak ára Helvécián

Ebből az összehasonlításból megtudhatod, hogyan viszonyul a lakás ára a környékbeli családi házak átlagos árához. Ez nem azt jelenti, hogy ennyivel olcsóbb vagy drágább, mint amennyit a lakás ér, hanem hogy ennyivel tér el a környékbeli átlagtól.

Ennek a m² ára
Helvécia m² ár
800 e Ft
780 e Ft -3%
Ennek az ára
Helvécia átlagár
72 M Ft m Ft
84.6 m Ft 15%

Az ingatlan elhelyezkedése

Cím: Helvécia

Eladó családi házak a környékről

Eladó családi ház
Eladó családi ház

Helvécia

66 M Ft
3 szoba
97 m2
Eladó családi ház
Eladó családi ház

Helvécia

108 M Ft
4 szoba
130 m2
Eladó családi ház
Eladó családi ház

Kiskunmajsa

30 M Ft
5 szoba
95 m2
Eladó családi ház
Eladó családi ház

Fajsz

12 M Ft
4 szoba
129 m2
Eladó családi ház
Eladó családi ház

Helvécia

64.75 M Ft
4 + 1 szoba
160 m2
Eladó családi ház
Eladó családi ház

Kecskemét, Alsószéktó, Alsószéktó 138

63 M Ft
5 szoba
91 m2
Eladó családi ház
Eladó családi ház

Kecskemét

119.8 M Ft
5 szoba
138 m2
Eladó családi ház
Eladó családi ház

Helvécia

74 M Ft
4 szoba
90 m2
Eladó családi ház
Eladó családi ház

Helvécia, Helvécia

46.3 M Ft
4 szoba
98 m2
Eladó családi ház
Eladó családi ház

Helvécia

22 M Ft
2 szoba
70 m2
Eladó családi ház
Eladó családi ház

Helvécia

85.8 M Ft
3 szoba
170 m2
Eladó családi ház
Eladó családi ház

Kecskemét

26 M Ft
3 szoba
110 m2
Eladó családi ház
Eladó családi ház

Kecskemét, Alsószéktó, Alsószéktó 138

55 M Ft
5 szoba
91 m2
Eladó családi ház
Eladó családi ház

Helvécia

139.9 M Ft
3 szoba
584 m2
Eladó családi ház
Eladó családi ház

Helvécia

59.9 M Ft
3 szoba
80 m2
Eladó családi ház
Eladó családi ház

Bácsalmás

25.5 M Ft
2 + 1 szoba
90 m2
Eladó családi ház
Eladó családi ház

Kiskunmajsa, Kiskunmajsa - Birtok

91.8 M Ft
5 szoba
170 m2
Eladó családi ház
Eladó családi ház

Kecskemét

135 M Ft
5 szoba
220 m2
Eladó családi ház
Eladó családi ház

Helvécia

71.999 M Ft
3 szoba
90 m2
Eladó családi ház
Eladó családi ház

Fülöpháza

68 M Ft
6 szoba
250 m2
Eladó családi ház
Eladó családi ház

Helvécia

85 M Ft
5 szoba
175 m2
Eladó családi ház
Eladó családi ház

Dunavecse

88.49 M Ft
8 szoba
378 m2
Eladó családi ház
Eladó családi ház

Kecskemét

120 M Ft
6 szoba
215 m2
Eladó családi ház
Eladó családi ház

Dunapataj

15 M Ft
5 szoba
150 m2

Falusi CSOK ingatlanok

Eladó családi ház
Eladó családi ház

Badacsonytördemic

179.07 M Ft
4 szoba
160 m2
Eladó ikerház
Eladó ikerház

Söpte

79.9 M Ft
4 szoba
80 m2
Eladó családi ház
Eladó családi ház

Pusztamonostor

22 M Ft
3 szoba
86 m2
Eladó családi ház
Eladó családi ház

Szilvásvárad

50 M Ft
3 szoba
69 m2
Eladó családi ház
Eladó családi ház

Bátmonostor

22.9 M Ft
3 szoba
82 m2
Eladó családi ház
Eladó családi ház

Kemeneshőgyész

8 M Ft
2 szoba
60 m2
Eladó családi ház
Eladó családi ház

Szigetcsép

110 M Ft
3 szoba
137 m2
Eladó családi ház
Eladó családi ház

Véménd

81.9 M Ft
3 szoba
150 m2