Astora Art House

Eladó családi ház
Győrújfalu

+ 7 kép 1/10
116 000 000 Ft116 M Ft 1 054 545 Ft/m2
5 szoba
110 m2
építés éve:2025

Részletes adatok

Telekméret: 800 m2
Fűtés: Gázkazán
Parkolás: Garázs
Közmű: Víz, Gáz, Villany, Csatorna
Energetikai besorolás: Nem adta meg a hirdető

Az OTP Bank lakáshitel ajánlataFizetett hirdetés

+36 30 651
Balogh János
B&B Ingatlaniroda

Érdekel az OTP Bank kedvezményes lakáshitel ajánlata? *

* A kérdésre „Igen” válasz bejelölése esetén, az „Üzenet küldése” gombra kattintva kijelentem, hogy az OTP Bank Nyrt. Adatkezelési tájékoztatójának tartalmát megismertem és tudomásul vettem.

Eladó családi ház leírása

Győr közelében Győrújfalun, újonnan épülő, igényes kialakítású, tégla építésű családi ház leköthető.

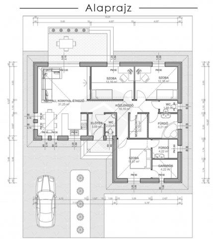
A nappali + négy szobával(vagy akár több szobával) rendelkező ingatlan alapterülete nettó 110 m2, mely igény szerint módosítható.
A praktikusan tervezett házban a szobákon kívül tágas és napfényes amerikai konyhás nappali, gardrób, kamra, szélfogó, közlekedő, fürdőszoba+wc, háztartási helyiség és egy külön mellékhelyiség is kialakításra kerül.
Az élhető méretű telek összesen 800 m2-es, mely 30%-ban beépíthető.
A feltüntetett vételár az emelt szintű fűtés kész árat és a telek árát tartalmazza, de igény esetén kulcsra kész befejezésre is van lehetőség!
Továbbá az ár tartalmazza a komplett tervezői díjat(gépészet, metszetek, statika, energetika, engedélyek), plusz egy inverteres(hűtő-fűtő) klímát!
A jelenlegi árajánlatban az otthon melegéről gáz-cirkó kazán gondoskodik, padlófűtéses hőleadással, de a fűtésrendszer is az építtető igényei alapján módosítható!
A részletes műszaki leírást és az Építőipari cég weboldalát kérésére e-mailben elküldöm.

Más az elképzelése? Válassza ki Ön a saját elképzeléseinek megfelelő alaprajzot!
Amennyiben teljesen egyedi tervezést szeretne, az is lehetséges!
A képek látványtervek.

Jól átgondolt tervezés, megfelelő szakmai tudás és háttér garantálja a MINŐSÉGI OTTHON megvalósítását!

További kérdés esetén állok rendelkezésére!
Amennyiben megbízható építtetőt szeretne, referenciamunkákkal, minőségi anyagokkal és kivitelezéssel, hívjon bizalommal akár hétvégén is!
Teljes körű ügyintézéssel:
- Ügyvéd
- Biztosítás
- Hiteltanácsadás
- Generálkivitelezés
- Ingatlanértékesítés
- Teljeskörű ingatlanfelújítás
- CSOK, babaváró, áfa visszaigénylés - állunk rendelkezésére!

Hirdetés feltöltve: 2025. 02. 10. Utoljára módosítva: 2025. 09. 17.

5 szobás családi házak ára Győrújfalun

Ebből az összehasonlításból megtudhatod, hogyan viszonyul a lakás ára a környékbeli családi házak átlagos árához. Ez nem azt jelenti, hogy ennyivel olcsóbb vagy drágább, mint amennyit a lakás ér, hanem hogy ennyivel tér el a környékbeli átlagtól.

Ennek a m² ára
Győrújfalu m² ár
1055 e Ft
417 e Ft -153%
Ennek az ára
Győrújfalu átlagár
116 M Ft m Ft
58 m Ft -100%

Az ingatlan elhelyezkedése

Cím: Győrújfalu

Eladó ingatlanok a környékről

Eladó családi ház
Eladó családi ház

Győrújfalu

145.51 M Ft
4 szoba
158 m2
Eladó családi ház
Eladó családi ház

Kapuvár

115 M Ft
5 szoba
222 m2
Eladó családi ház
Eladó családi ház

Veszprémvarsány

129 M Ft
6 szoba
215 m2
Eladó családi ház
Eladó családi ház

Mosonmagyaróvár

64.99 M Ft
3 szoba
112 m2
Eladó téglalakás
Eladó téglalakás

Mosonmagyaróvár, Tímár utca

64.846 M Ft
3 szoba
66 m2
Eladó téglalakás
Eladó téglalakás

Mosonmagyaróvár, Tímár utca

40.195 M Ft
2 szoba
41 m2
Eladó családi ház
Eladó családi ház

Győrújfalu

275 M Ft
6 szoba
236 m2
Eladó családi ház
Eladó családi ház

Sopron

170 M Ft
4 szoba
122 m2
Eladó családi ház
Eladó családi ház

Nagycenk

80.6 M Ft
4 szoba
106 m2
Eladó családi ház
Eladó családi ház

Harka

99 M Ft
4 szoba
103 m2
Eladó családi ház
Eladó családi ház

Nagycenk

64.8 M Ft
3 + 1 szoba
76 m2
Eladó családi ház
Eladó családi ház

Sopron

130 M Ft
3 szoba
140 m2
Eladó téglalakás
Eladó téglalakás

Mosonmagyaróvár, Tímár utca

56.772 M Ft
3 szoba
55 m2
Eladó családi ház
Eladó családi ház

Győrság

93.45 M Ft
4 szoba
96 m2
Eladó családi ház
Eladó családi ház

Győrújfalu

139 M Ft
4 szoba
230 m2
Eladó családi ház
Eladó családi ház

Győrszemere

90.588 M Ft
5 szoba
95 m2
Eladó családi ház
Eladó családi ház

Enese

64.664 M Ft
3 szoba
75 m2
Eladó téglalakás
Eladó téglalakás

Mosonmagyaróvár, Tímár utca

67.014 M Ft
3 szoba
66 m2
Eladó téglalakás
Eladó téglalakás

Mosonmagyaróvár, Tímár utca

74.847 M Ft
2 + 2 szoba
71 m2
Eladó családi ház
Eladó családi ház

Győr

365 M Ft
3 + 2 szoba
478 m2
Eladó családi ház
Eladó családi ház

Harka

60.9 M Ft
3 + 1 szoba
67 m2
Eladó téglalakás
Eladó téglalakás

Mosonmagyaróvár, Tímár utca

76.098 M Ft
3 szoba
69 m2
Eladó családi ház
Eladó családi ház

Harka

86.7 M Ft
3 szoba
102 m2
Eladó családi ház
Eladó családi ház

Győrújfalu

94.9 M Ft
5 szoba
112 m2

Falusi CSOK ingatlanok

Eladó családi ház
Eladó családi ház

Katymár

6.7 M Ft
4 szoba
136 m2
Eladó családi ház
Eladó családi ház

Gyékényes

29.99 M Ft
3 szoba
151 m2
Eladó családi ház
Eladó családi ház

Bősárkány

46.99 M Ft
3 szoba
86 m2
Eladó családi ház
Eladó családi ház

Nagybörzsöny

39.9 M Ft
2 + 1 szoba
74 m2
Eladó családi ház
Eladó családi ház

Tápiószőlős

17 M Ft
2 szoba
60 m2
Eladó családi ház
Eladó családi ház

Gyékényes

35.9 M Ft
5 szoba
205 m2
Eladó családi ház
Eladó családi ház

Tápióság

12.9 M Ft
1 szoba
50 m2
Eladó családi ház
Eladó családi ház

Tápiószőlős

3.5 M Ft
1 szoba
75 m2