BAM Living

Eladó családi ház
Budapest, XXII. kerület

+ 17 kép 1/20
163 000 000 Ft163 M Ft 673 554 Ft/m2
9 + 2 szoba
242 m2
építés éve:1970

Részletes adatok

Telekméret: 728 m2
Fűtés: Gázkazán
Energetikai besorolás: Nem adta meg a hirdető

Az OTP Bank lakáshitel ajánlataFizetett hirdetés

+36 70 237
Zatykó Krisztina
Budapest XI. kerület OTP Ingatlanpont

Érdekel az OTP Bank kedvezményes lakáshitel ajánlata? *

* A kérdésre „Igen” válasz bejelölése esetén, az „Üzenet küldése” gombra kattintva kijelentem, hogy az OTP Bank Nyrt. Adatkezelési tájékoztatójának tartalmát megismertem és tudomásul vettem.

Eladó családi ház leírása

A XXII. kerület legkedveltebb részén, DUNATELEPEN három lakásos családiház eladó.
Az utca végén Duna part, Kis-Háros sziget, természetvédelmi terület, lovarda, kajak-kenu egyesület és SUP kölcsönzési lehetőség!
Eladásra kínálok egy nettó 242m2-es két szintes családi házat, melyben jelenleg három különálló lakás van kialakítva. A 724m2-es telken a házon felül fedett sütögető hely, tárolók, és mászóka is található.
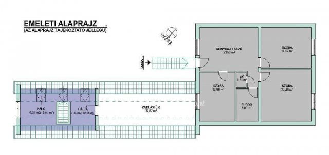
Az épületen belül a három lakás a mellékelt alaprajz szerint helyezkedik el. Az 1. lakás 122m2, a 2. lakás, ami két szintes nettó 35m2-es, a 3. lakás pedig 86m2-es.
A fűtést automata váltókapcsolóval ellátott kondenzációs-, vagy vegyestüzelésű kazán biztosítja.
Az épület szigetelt, 2005-ben teljeskörűen felújították, azóta is folyamatosan karbantartják.
A parkolás a telken belül, és az utcán is lehetséges. Az utca zsákutca, átmenő forgalomtól mentes.
Lke-2/D/1-es övezeti besorolás alapján a telek 20%-os beépíthetőségi, 50% zöldterületi mutató, és 6 m-es építménymagassági maximummal rendelkezik.

Dunatelep lakó pihenő övezet, a lakók összetartóak, utcabálokat szerveznek, saját facebook csoportban segítik egymást. A Covid óta ez a legkedveltebb része a kerületnek.
Az ingatlan közvetlen közelében helyezkedik el a Dunapart ABC, mely élelmiszer kiskereskedés. 800m-re pedig két élelmiszer áruházlánci egység is elérhető (ALDI, LIDL). Bevásárló központ két kilométerre található, ahol a közműszolgáltatók, telefontársaságok kirendeltségein kívül posta, gyógyszertár, fodrász, fitnesz-terem, benzinkút is megtalálható (CAMPONA Bevásárló Központ)
Háziorvosi rendelő, bölcsőde, óvoda, iskola, 1 km távolságra.
A közelben éjszakai és nappali BKV járatok, agglomeráció felé közlekedő távolsági buszok megállói, és vasútállomás is található, a part mentén kerékpárút vezet, melyen szintén elérhetjük a belvárost.

Ne szalassza el ezt a lehetőséget.
Igény szerint hitelügyintézést, ügyvédi közreműködést biztosítunk, és segítséget nyújtunk az adásvétel folyamatának intézéséhez.

Amennyiben érdekli az ingatlan, vagy további kérdései vannak, hívjon telefonon.

Referencia szám: M298131

Hirdetés feltöltve: 2025. 11. 25. Utoljára módosítva: 2026. 01. 13.

Az ingatlan elhelyezkedése

Cím: Budapest, XXII. kerület

Eladó ingatlanok a környékről

Eladó családi ház
Eladó családi ház

XXII. kerület, Nagytétény, Aranyhegyi utca

45 M Ft
2 szoba
35 m2
Eladó téglalakás
Eladó téglalakás

I. kerület, Krisztinaváros, Feszty Árpád utca

78.99 M Ft
1 szoba
28 m2
Eladó téglalakás
Eladó téglalakás

VI. kerület, Külső Terézváros, Szófia utca

112.9 M Ft
4 szoba
103 m2
Eladó téglalakás
Eladó téglalakás

III. kerület, Óbudaisziget, Folyamőr utca

69.9 M Ft
1 szoba
25 m2
Eladó téglalakás
Eladó téglalakás

XI. kerület, Gellérthegy, Gyula utca

130 M Ft
2 szoba
56 m2
Eladó családi ház
Eladó családi ház

XXII. kerület, Baross Gábor telep

142 M Ft
5 szoba
120 m2
Eladó téglalakás
Eladó téglalakás

VII. kerület, Belső Erzsébetváros, Erzsébet körút

89.9 M Ft
1 + 1 szoba
71 m2
Eladó családi ház
Eladó családi ház

XXII. kerület

540 M Ft
7 szoba
600 m2
Eladó családi ház
Eladó családi ház

XXII. kerület, Budafok

399 M Ft
5 szoba
300 m2
Eladó családi ház
Eladó családi ház

XXII. kerület, Budafok, Alkotmány utca

380 M Ft
5 szoba
310 m2
Eladó családi ház
Eladó családi ház

XXII. kerület, Budafok, Baross utca

222 M Ft
6 + 1 szoba
200 m2
Eladó téglalakás
Eladó téglalakás

VIII. kerület, Palotanegyed, Rákóczi út

185 M Ft
5 szoba
121 m2
Eladó téglalakás
Eladó téglalakás

XVIII. kerület

64.99 M Ft
2 szoba
49 m2
Eladó családi ház
Eladó családi ház

XXII. kerület

399 M Ft
5 szoba
300 m2
Eladó családi ház
Eladó családi ház

XXII. kerület, Budafok

239 M Ft
9 szoba
325 m2
Eladó családi ház
Eladó családi ház

XXII. kerület, Barackos út

119 M Ft
2 + 2 szoba
104 m2
Eladó családi ház
Eladó családi ház

XXII. kerület, Nagytétény, Máriás utca

149 M Ft
3 szoba
88 m2
Eladó családi ház
Eladó családi ház

XXII. kerület, Nagytétény, Nagytétényi út

60 M Ft
3 szoba
75 m2
Eladó családi ház
Eladó családi ház

XXII. kerület

399 M Ft
5 szoba
300 m2
Eladó téglalakás
Eladó téglalakás

VIII. kerület

110.823 M Ft
2 + 2 szoba
70 m2
Eladó téglalakás
Eladó téglalakás

VI. kerület, Külső Terézváros, Szív utca

119.5 M Ft
3 szoba
94 m2
Eladó családi ház
Eladó családi ház

XXII. kerület

204.9 M Ft
6 szoba
260 m2
Eladó téglalakás
Eladó téglalakás

XIV. kerület, Kiszugló, Kövér Lajos utca

168 M Ft
3 + 1 szoba
84 m2
Eladó téglalakás
Eladó téglalakás

VII. kerület, Belső Erzsébetváros, Erzsébet körút

160 M Ft
3 szoba
88 m2

Falusi CSOK ingatlanok

Eladó családi ház
Eladó családi ház

Recsk

23 M Ft
3 szoba
98 m2
Eladó családi ház
Eladó családi ház

Véménd

59 M Ft
2 szoba
200 m2
Eladó családi ház
Eladó családi ház

Berzence

14.9 M Ft
4 szoba
132 m2
Eladó családi ház
Eladó családi ház

Hercegszántó

7 M Ft
3 szoba
120 m2
Eladó ikerház
Eladó ikerház

Balatonvilágos

175.9 M Ft
4 szoba
130 m2
Eladó családi ház
Eladó családi ház

Recsk

40 M Ft
3 + 1 szoba
130 m2
Eladó ikerház
Eladó ikerház

Bodajk

64.9 M Ft
5 szoba
108 m2
Eladó családi ház
Eladó családi ház

Berzence

38.7 M Ft
5 szoba
110 m2