City Pearl

Eladó családi ház
Budapest, XIV. kerület, Alsórákos

+ 7 kép 1/10
180 900 000 Ft180.9 M Ft 1 435 714 Ft/m2
3 + 2 szoba
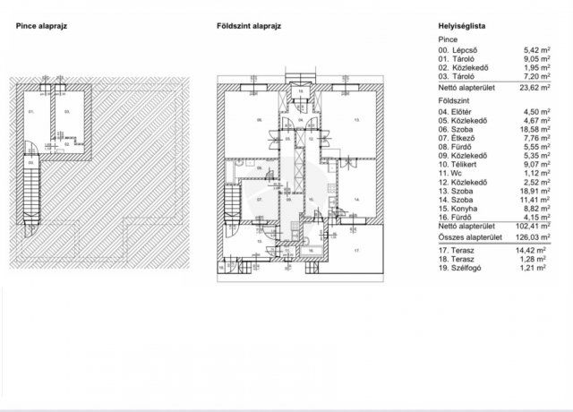
126 m2
építés éve:1900

Részletes adatok

Állapot: Felújítandó
Telekméret: 521 m2
Fűtés: Gázkazán
Parkolás: Garázs, Kocsibeálló
Közmű: Víz, Gáz, Villany, Csatorna
Energetikai besorolás: Nem adta meg a hirdető

Az OTP Bank lakáshitel ajánlataFizetett hirdetés

+36 70 412
Rusznák Zoltán
referens

Érdekel az OTP Bank kedvezményes lakáshitel ajánlata? *

* A kérdésre „Igen” válasz bejelölése esetén, az „Üzenet küldése” gombra kattintva kijelentem, hogy az OTP Bank Nyrt. Adatkezelési tájékoztatójának tartalmát megismertem és tudomásul vettem.

Eladó családi ház leírása

Csendes, zöldövezeti 2 generációs családi ház Zuglóban, a Gödöllői utcában ????

Eladó XIV. kerület, Alsórákos egyik legkedveltebb utcájában egy 110 m²-es, tégla építésű, 2 generációs családi ház, 521 m²-es telken.

Főbb jellemzők:

Alapterület: 110 m²

Telek: 521 m²

Szobák: 3 + 1 félszoba

Konyha: 2 étkezős konyha

Fürdőszobák: 2

Építés éve: 1951

Fűtés: gázcirkó

Szerkezet: tégla

Tető: pala (tetőtér beépíthető)

Belmagasság: 230 cm

Tájolás: dél

Nyílászárók: fa (felújítandó állapotban)

???? Leírás:

A ház két külön bejáratú lakrészt kínál, külön villanyórákkal és fürdőkkel, így kiválóan alkalmas két generáció együttélésére vagy akár befektetésre.
A nagy, napfényes terasz és a tágas, gondozott kert ideális helyszíne a pihenésnek és családi, baráti összejöveteleknek.
A kertben fészer és fedett sütögetős rész is található.

Az ingatlan lakható állapotú, de igény szerint felújítható, így az új tulajdonos saját ízlésére formálhatja.

???? Környék:

Nyugodt, zöldövezeti, csendes utca, jó szomszédság, családias hangulat.
Mégis minden néhány perc sétával elérhető – buszmegálló, iskola, óvoda, bevásárlási lehetőségek a közelben.
Kiváló közlekedés és gyors elérhetőség a belváros felé.

Hirdetés feltöltve: 2025. 11. 04. Utoljára módosítva: 2026. 01. 25.

5 szobás családi házak ára Budapesten

Ebből az összehasonlításból megtudhatod, hogyan viszonyul a lakás ára a környékbeli családi házak átlagos árához. Ez nem azt jelenti, hogy ennyivel olcsóbb vagy drágább, mint amennyit a lakás ér, hanem hogy ennyivel tér el a környékbeli átlagtól.

Ennek a m² ára
Alsórákos m² ár
XIV. kerület m² ár
Budapest m² ár
1436 e Ft
885 e Ft -62%
990 e Ft -45%
970 e Ft -48%
Ennek az ára
Alsórákos átlagár
XIV. kerület átlagár
Budapest átlagár
180.9 M Ft m Ft
314.8 m Ft 43%
325.1 m Ft 44%
242.9 m Ft 26%

Az ingatlan elhelyezkedése

Cím: Budapest, XIV. kerület, Alsórákos

Eladó ingatlanok a környékről

Eladó téglalakás
Eladó téglalakás

IV. kerület

87.5 M Ft
3 szoba
60 m2
Eladó családi ház
Eladó családi ház

XIV. kerület

285 M Ft
13 szoba
470 m2
Eladó családi ház
Eladó családi ház

XIV. kerület, Alsórákos

230 M Ft
7 + 1 szoba
170 m2
Eladó családi ház
Eladó családi ház

XIV. kerület

269 M Ft
7 szoba
280 m2
Eladó családi ház
Eladó családi ház

XIV. kerület, Alsórákos

179 M Ft
7 szoba
270 m2
Eladó családi ház
Eladó családi ház

XIV. kerület, Alsórákos

285 M Ft
13 szoba
460 m2
Eladó családi ház
Eladó családi ház

XIV. kerület, Alsórákos

225 M Ft
7 szoba
229 m2
Eladó téglalakás
Eladó téglalakás

IV. kerület, Újpest, Kassai utca

84.9 M Ft
2 + 1 szoba
71 m2
Eladó családi ház
Eladó családi ház

XIV. kerület, Nagyzugló

174.9 M Ft
6 szoba
204 m2
Eladó családi ház
Eladó családi ház

XIV. kerület, Alsórákos

155 M Ft
4 + 1 szoba
200 m2
Eladó téglalakás
Eladó téglalakás

VII. kerület, Belső Erzsébetváros, Erzsébet körút

160 M Ft
3 szoba
88 m2
Eladó téglalakás
Eladó téglalakás

V. kerület, Belváros, Belgrád rakpart

78 M Ft
1 + 1 szoba
42 m2
Eladó családi ház
Eladó családi ház

XVI. kerület

89.9 M Ft
2 + 1 szoba
100 m2
Eladó családi ház
Eladó családi ház

XIV. kerület, Alsórákos

285 M Ft
13 szoba
470 m2
Eladó téglalakás
Eladó téglalakás

VI. kerület, Külső Terézváros, Szófia utca

112.9 M Ft
4 szoba
103 m2
Eladó téglalakás
Eladó téglalakás

XIV. kerület, Kiszugló, Kövér Lajos utca

168 M Ft
3 + 1 szoba
84 m2
Eladó téglalakás
Eladó téglalakás

XVIII. kerület

87.5 M Ft
3 szoba
67 m2
Eladó családi ház
Eladó családi ház

XXII. kerület, Budafok, Baross utca

222 M Ft
6 + 1 szoba
200 m2
Eladó családi ház
Eladó családi ház

II. kerület

224.8 M Ft
5 szoba
240 m2
Eladó téglalakás
Eladó téglalakás

XI. kerület, Lágymányos, Móricz Zsigmond körtér

89.5 M Ft
2 szoba
52 m2
Eladó téglalakás
Eladó téglalakás

XI. kerület, Gellérthegy, Gyula utca

130 M Ft
2 szoba
56 m2
Eladó téglalakás
Eladó téglalakás

I. kerület

106.9 M Ft
2 szoba
60 m2
Eladó téglalakás
Eladó téglalakás

XIII. kerület, Angyalföld, Fiastyúk utca

39.9 M Ft
1 + 1 szoba
34 m2
Eladó téglalakás
Eladó téglalakás

III. kerület, Óbudaisziget, Folyamőr utca

69.9 M Ft
1 szoba
25 m2

Falusi CSOK ingatlanok

Eladó családi ház
Eladó családi ház

Szigetcsép, Szabadság utca

62 M Ft
4 szoba
120 m2
Eladó családi ház
Eladó családi ház

Balatonfenyves

430 M Ft
4 szoba
274 m2
Eladó családi ház
Eladó családi ház

Kislőd

53.2 M Ft
3 szoba
86 m2
Eladó téglalakás
Eladó téglalakás

Várbalog

38.9 M Ft
3 szoba
45 m2
Eladó családi ház
Eladó családi ház

Somogygeszti

10.9 M Ft
2 szoba
115 m2
Eladó ikerház
Eladó ikerház

Balatonakali

129 M Ft
4 szoba
145 m2
Eladó családi ház
Eladó családi ház

Bugac

18.5 M Ft
2 szoba
73 m2
Eladó családi ház
Eladó családi ház

Mezőkeresztes

14.9 M Ft
2 + 1 szoba
65 m2