Seven Pearl

Eladó családi ház
Budapest, XIV. kerület, Alsórákos

+ 17 kép 1/20
369 000 000 Ft369 M Ft 878 571 Ft/m2
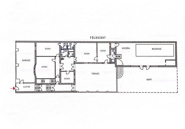
10 + 9 szoba
420 m2
építés éve:1980

Részletes adatok

Állapot: Felújítandó
Telekméret: 449 m2
Fűtés: Gázkazán
Parkolás: Garázs
Energetikai besorolás: Nem adta meg a hirdető

Az OTP Bank lakáshitel ajánlataFizetett hirdetés

+36 30 445
Csóka Annamária
referens

Érdekel az OTP Bank kedvezményes lakáshitel ajánlata? *

* A kérdésre „Igen” válasz bejelölése esetén, az „Üzenet küldése” gombra kattintva kijelentem, hogy az OTP Bank Nyrt. Adatkezelési tájékoztatójának tartalmát megismertem és tudomásul vettem.

Eladó családi ház leírása

A FEJLŐDŐ BOSNYÁK TÉR SZOMSZÉDSÁGÁBAN!!!

TÁRSASHÁZ!!! EGÉSZSÉGÜGYI INTÉZMÉNY!!! IRODAHÁZ!!! WELNESS KÖZPONT!!!

XIV. kerületben, ALSÓRÁKOSON, eladó egy bruttó 449 m2-es telken fekvő bruttó 600 m2-es családi ház. (nettó 420 m2) 10 szoba + 9 félszoba. A házban 5-6 lakás kialakítása lehetséges.

A ház az 1980-as években épült. A welness részleg az 1990-es években lett hozzáépítve.

A ház további jellemzői:

- PER- és TEHERMENTES

- RÖVID HATÁRIDŐVEL BIRTOKBA VEHETŐ

- CSENDES kertvárosi környezet

- terasz (kb. 70 m2)

- minden közmű egyedileg mérhető

- garázs (3 db.)

- kert

- klíma (2 db.)

Fűtése: cirkó és gázkazán. (3 DB.)

Közlekedés: kiváló (5, 69, 32-es busz, 3, 62, 62A villamos, 74, 74A, 82-es trolibusz, M1 MEXIKÓI ÚT metróállomás pár percen belül elérhető, 973 éjszakai járat).

Az M3 bevezető szakasza autóval 5 percen belül elérhető.

A hirdetésben feltüntetett adatok és információk csak tájékoztató jellegűek, jogi kötelezettséggel nem bíró jognyilatkozatnak minősülnek, mely nem tekinthető ajánlat tételnek és nem járnak az eladóra nézve kötelező ajánlati kötöttséggel.

Ügyfeleink részére BANKFÜGGETLEN hitelügyintéző kollégáink szívesen nyújtanak segítséget.

Amennyiben felkeltettem az érdeklődését vagy bármely további kérdése lenne, keressen bizalommal.

Akár hétvégén is!

CSA ...TOVÁBBI, TÖBBEZRES INGATLAN KÍNÁLAT: www.gdn-ingatlan.hu - GDN azonosító: 376343

Hirdetés feltöltve: 2025. 02. 16. Utoljára módosítva: 2025. 11. 28.

Az ingatlan elhelyezkedése

Cím: Budapest, XIV. kerület, Alsórákos

Eladó ingatlanok a környékről

Eladó családi ház
Eladó családi ház

XIV. kerület

199 M Ft
6 szoba
288 m2
Eladó családi ház
Eladó családi ház

XIV. kerület

300 M Ft
5 szoba
280 m2
Eladó családi ház
Eladó családi ház

XIV. kerület, Alsórákos

230 M Ft
7 + 1 szoba
170 m2
Eladó téglalakás
Eladó téglalakás

VII. kerület, Belső Erzsébetváros, Erzsébet körút

160 M Ft
3 szoba
88 m2
Eladó családi ház
Eladó családi ház

XIV. kerület, Alsórákos

179 M Ft
7 szoba
270 m2
Eladó családi ház
Eladó családi ház

XIV. kerület, Alsórákos

285 M Ft
13 szoba
470 m2
Eladó panellakás
Eladó panellakás

IV. kerület

66.9 M Ft
2 szoba
53 m2
Eladó téglalakás
Eladó téglalakás

IV. kerület, Újpest, Kassai utca

84.9 M Ft
2 + 1 szoba
71 m2
Eladó családi ház
Eladó családi ház

XIV. kerület

345 M Ft
8 szoba
330 m2
Eladó családi ház
Eladó családi ház

XIV. kerület, Rákosfalva

190.5 M Ft
5 szoba
200 m2
Eladó családi ház
Eladó családi ház

XIV. kerület, Alsórákos

225 M Ft
7 szoba
229 m2
Eladó téglalakás
Eladó téglalakás

XIII. kerület, Angyalföld, Fiastyúk utca

39.9 M Ft
1 + 1 szoba
34 m2
Eladó téglalakás
Eladó téglalakás

VIII. kerület, Palotanegyed, Rákóczi út

190 M Ft
5 szoba
121 m2
Eladó téglalakás
Eladó téglalakás

III. kerület, Óbuda, Szomolnok utca

89.9 M Ft
2 + 2 szoba
96 m2
Eladó családi ház
Eladó családi ház

XIV. kerület, Alsórákos

149.7 M Ft
5 szoba
220 m2
Eladó panellakás
Eladó panellakás

XI. kerület, Őrmező, Bornemissza tér

79.9 M Ft
3 szoba
63 m2
Eladó üzlethelyiség
Eladó üzlethelyiség

II. kerület, Országút, Margit körút

6.999 M Ft
5 m2
Eladó téglalakás
Eladó téglalakás

I. kerület, Krisztinaváros, Feszty Árpád utca

78.99 M Ft
1 szoba
28 m2
Eladó téglalakás
Eladó téglalakás

V. kerület, Belváros, Belgrád rakpart

78 M Ft
1 + 1 szoba
42 m2
Eladó téglalakás
Eladó téglalakás

VIII. kerület, Delej utca

59.9 M Ft
1 szoba
36 m2
Eladó családi ház
Eladó családi ház

XXII. kerület, Budafok, Baross utca

199 M Ft
6 + 1 szoba
200 m2
Eladó családi ház
Eladó családi ház

XIV. kerület, Alsórákos

380 M Ft
14 szoba
478 m2
Eladó téglalakás
Eladó téglalakás

VI. kerület, Külső Terézváros, Szófia utca

114.9 M Ft
4 szoba
103 m2
Eladó téglalakás
Eladó téglalakás

XI. kerület, Gellérthegy, Gyula utca

130 M Ft
2 szoba
56 m2

Falusi CSOK ingatlanok

Eladó családi ház
Eladó családi ház

Berzence

38.7 M Ft
5 szoba
110 m2
Eladó családi ház
Eladó családi ház

Enese

82.9 M Ft
4 szoba
90 m2
Eladó családi ház
Eladó családi ház

Nagyhegyes

55.9 M Ft
3 szoba
85 m2
Eladó családi ház
Eladó családi ház

Tótújfalu

6.9 M Ft
4 szoba
120 m2
Eladó családi ház
Eladó családi ház

Nagyberki

39.9 M Ft
5 szoba
170 m2
Eladó családi ház
Eladó családi ház

Zákány, Május 1. utca

39.9 M Ft
2 szoba
112 m2
Eladó családi ház
Eladó családi ház

Hahót

64.9 M Ft
5 szoba
118 m2
Eladó családi ház
Eladó családi ház

Iváncsa

70 M Ft
5 szoba
340 m2