Avico Greentop

Eladó családi ház
Budapest, X. kerület

149 900 000 Ft149.9 M Ft 1 228 689 Ft/m2
4 szoba
122 m²
építés éve:2026

Részletes adatok

Telekméret: 205 m2
Fűtés: Egyéb
Energetikai besorolás: B

Az OTP Bank lakáshitel ajánlataFizetett hirdetés

+36 1 690
Lenti Alexandra
referens

Érdekel az OTP Bank kedvezményes lakáshitel ajánlata? *

* A kérdésre „Igen” válasz bejelölése esetén, az „Üzenet küldése” gombra kattintva kijelentem, hogy az OTP Bank Nyrt. Adatkezelési tájékoztatójának tartalmát megismertem és tudomásul vettem.

Eladó családi ház leírása

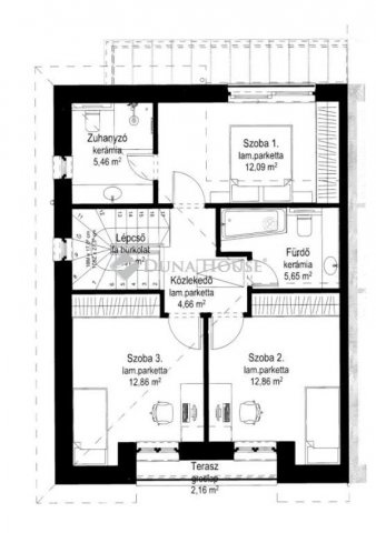
Modern, kétszintes újépítésű ikerház! Budapest X. kerület egyik legnyugodtabb területén, egy csendes mellékutcában, gyönyörű és minőségi családi otthon épül!Az ingatlan a mai kor műszaki elvárásai szerint kerül felépítésre. Prémium minőségű gépészet és kiváló minőségű anyagok felhasználásával. A telek adta lehetőségek a leg optimálisabban került kihasználásra, az ikerház felépítésére. Belső terei megtervezésekor első számú szempont volt a XXI. századi modern kialakítás, a kényelmes és egyben praktikus tér elrendezés.Az ingatlanhoz tartozik egy 231 m2-es kert, amely tökéletes egy nagyobb család számára is. A kert privát és nem látni be rá, megfelelő intimitást nyújt.A csendes elhelyezkedés egyben egy remek infrastruktúrát jelent. A környéken minden megtalálható amire az embernek szüksége lehet, illetve a belváros is rendkívül gyorsan megközelíthető, autóval, és tömegközlekedéssel is.A ház helységei két szinten oszlanak meg, a hasznos alapterület 122 m2.Az otthon szíve a, közel 33 m2-es amerikai konyhás nappali, ami terasz kapcsolatos, ezen a szinten még zuhanyzó+wc, háztartási helyiség kerül kialakításra.Tartozik az ingatlanhoz egy fedett garázs is, ahova bőven be lehet parkolni egy nagyméretű autóval is, illetve a holmik tárolására is tökéletes.A felső szinten további 3 db teljes értékű szoba várja új tulajdonosait, a lakók kényelmét még két db fürdőszoba szolgálja.FELÁR ELLENÉBEN, a vállalkozó vállalja:- beépített gépesített konyabútort,- a teljes kertépítést,- a beépített gardróbszekrényeket.MŰSZAKI TARTALOM:- Főfalak: 30 cm POROTHERM 30 N+F vázkerámia falazóblokk falazat ragasztva,- Válaszfalak: 10 cm vtg. kerámia válaszfallapból, speciális ragasztóval, - Koszorúk: monolit vasbeton szerkezet, külső oldalán 5 cm plusz kiegészítő hőszigeteléssel,- Födém: monolit vasbeton födém készül, statikai méretezés szerint, emelet felett fa fedélszék ,- Tető: hagyományos ácsszerkezetű magastető készül 25 fokos hajlásszöggel, dobozolt eresz kialakítással, Terrán Zenit Max Carbon szürke színben cserépfedéssel.- Műanyag nyílászárók fenyő színben, 3 rétegű hőszigetelő üvegezéssel és több pontonzáródó biztonsági bejárati ajtóval.- Burkolatok: hálószobákban laminált parketta melegburkolat, vizes helyiségeben kerámia-, és csempeburkolat készül. Kültéren a gépkocsi behajtó és járdák térkő burkolatúak.- Homlokzati hőszigetelés expandált polisztirol hőszigetelő lemez 15 cm vtg-ban- Lábazati hőszigetelés extrudált polisztirol hőszigetelő lemez 12 cm vtg-ban- Koszorú külső hőszigetelés expandált polisztirol hőszigetelő lemez 5 cm vtg-ban- Hőszigetelés padlóban expandált polisztirol hőszigetelő lemez 10 cm vtg-ban- Födém feletti hőszigetelés EPS hőszigetelés, 20 cm vtg-ban,- hőszivattyús fűtés, mennyezeti fűtés, hútés.EXTRÁK:- OKOS RENDSZER,- elektromos redőnyök,- kamera és riasztó rendszer kiépítés,- videó kaputelefon,- elektromos kapu,- öntöző rendszer,- elektromos autótöltő kiépítés,- Wpc kerítés,- 3 rétegű üvegek,- rejtett világítások,- udvar világítások,- légtechnika.Teljes átláthatóság az építkezés során digitálisan, kényelmesen, biztonságosan!Az építkezés nálunk nem csak szakmai precizitásról szól, hanem valódi átláthatóságról is. A PlanRadar digitális projektkövető rendszerének köszönhetően Ön, mint leendő tulajdonos: Valós időben nyomon követheti az építkezés minden lépését akár mobilról is. Kéthetente részletes jelentést kap az aktuális állapotról, fotókkal, dokumentumokkal. A projekt végén digitálisan megkapja az összes hivatalos dokumentumot, beleértve a garanciákat, tervrajzokat, átadási jegyzőkönyveket mindezt egyetlen, biztonságos platformon.FINANSZÍROZÁS: Hitelre megvásárolható, vevőink részére díjmentes hitel közvetítés, minden magyarországi bankból. Állami támogatások felvehetőek rá!Átadás: 2026. III. NEGYEDÉVNe hagyja ki ezt a páratlan lehetőséget! Egy ilyen prémium ingatlan ritkán kerül piacra, és most Ön előtt áll a lehetőség, hogy a város egyik legvonzóbb helyén éljen. Tökéletes választás a modern, kényelmes és biztonságos életstílust keresők számára!Várom megtisztelő hívását a hét minden napján!

Hirdetés feltöltve: 2026. 03. 18.

4 szobás családi házak ára Budapesten

Ebből az összehasonlításból megtudhatod, hogyan viszonyul a lakás ára a környékbeli családi házak átlagos árához. Ez nem azt jelenti, hogy ennyivel olcsóbb vagy drágább, mint amennyit a lakás ér, hanem hogy ennyivel tér el a környékbeli átlagtól.

Ennek a m² ára
X. kerület m² ár
Budapest m² ár
1229 e Ft
1205 e Ft -2%
1089 e Ft -13%
Ennek az ára
X. kerület átlagár
Budapest átlagár
149.9 M Ft m Ft
147.5 m Ft -2%
153.7 m Ft 2%

Az ingatlan elhelyezkedése

Cím: Budapest, X. kerület

Eladó ingatlanok a környékről

XIV. kerület, Alsórákos, Bosnyák tér
Eladó téglalakás

Budapest, XIV. kerület

67.5 M Ft
1 + 1 szoba
43 m²
X. kerület, Óhegy
Eladó családi ház

Budapest, X. kerület

149.9 M Ft
5 szoba
119 m²
X. kerület
Eladó családi ház

Budapest, X. kerület

145 M Ft
1 + 2 szoba
74 m²
X. kerület, Óhegy
Eladó családi ház

Budapest, X. kerület

92 M Ft
5 szoba
102 m²
XIII. kerület
Eladó téglalakás

Budapest, XIII. kerület

184.9 M Ft
3 szoba
81 m²
VII. kerület
Eladó téglalakás

Budapest, VII. kerület

53.9 M Ft
1 szoba
30 m²
XIV. kerület, Alsórákos
Eladó téglalakás

Budapest, XIV. kerület

138.9 M Ft
3 szoba
110 m²
X. kerület
Eladó téglalakás

Budapest, X. kerület

165 M Ft
4 szoba
109 m²
X. kerület, Felsőrákos
Eladó családi ház

Budapest, X. kerület

334.99 M Ft
11 szoba
400 m²
XI. kerület
Eladó panellakás

Budapest, XI. kerület

119.85 M Ft
2 szoba
54 m²
X. kerület, Óhegy
Eladó családi ház

Budapest, X. kerület

249 M Ft
6 + 1 szoba
186 m²
XI. kerület
Eladó panellakás

Budapest, XI. kerület

88.5 M Ft
2 szoba
50 m²
X. kerület, Óhegy
Eladó családi ház

Budapest, X. kerület

149.9 M Ft
5 szoba
119 m²
XI. kerület
Eladó panellakás

Budapest, XI. kerület

89.5 M Ft
2 szoba
52 m²
X. kerület, Felsőrákos
Eladó családi ház

Budapest, X. kerület

334.99 M Ft
11 szoba
400 m²
VII. kerület
Eladó téglalakás

Budapest, VII. kerület

72.5 M Ft
2 szoba
35 m²
XVIII. kerület
Eladó ikerház

Budapest, XVIII. kerület

162.9 M Ft
5 szoba
140 m²
X. kerület, Óhegy
Eladó családi ház

Budapest, X. kerület

145 M Ft
1 + 2 szoba
74 m²
XIII. kerület
Eladó téglalakás

Budapest, XIII. kerület

64.9 M Ft
2 szoba
50 m²
XII. kerület, Farkasvölgy, Edvi Illés u
Eladó telek

Budapest, XII. kerület

480 M Ft
2623 m²
0 m²
X. kerület
Eladó családi ház

Budapest, X. kerület

160 M Ft
6 szoba
204 m²
X. kerület
Eladó családi ház

Budapest, X. kerület

160 M Ft
6 szoba
204 m²
XV. kerület, Pestújhely
Eladó ikerház

Budapest, XV. kerület

285 M Ft
6 szoba
174 m²
XIV. kerület, Herminamező, Dorozsmai utca
Eladó téglalakás

Budapest, XIV. kerület

72.1 M Ft
2 szoba
39 m²

Falusi CSOK ingatlanok

Tiszasziget, Sziget lakópark
Eladó sorház

Tiszasziget

33.9 M Ft
2 szoba
48 m²
Kétpó
Eladó családi ház

Kétpó

14.9 M Ft
1 + 2 szoba
86 m²
Törtel
Eladó családi ház

Törtel

35 M Ft
3 szoba
52 m²
Szabadbattyán
Eladó családi ház

Szabadbattyán

147.99 M Ft
5 szoba
255 m²
Bag
Eladó családi ház

Bag

16.9 M Ft
6 szoba
160 m²
Ostffyasszonyfa
Eladó családi ház

Ostffyasszonyfa

37.9 M Ft
5 szoba
494 m²
Badacsonytördemic
Eladó családi ház

Badacsonytördemic

86 M Ft
4 szoba
110 m²
Zagyvarékas
Eladó családi ház

Zagyvarékas

42.5 M Ft
3 szoba
140 m²