Astora Olive Club House

Eladó családi ház
Budapest, X. kerület, Újhegy

+ 9 kép 1/12
149 900 000 Ft149.9 M Ft 1 228 689 Ft/m2
4 szoba
122 m2
építés éve:2026

Részletes adatok

Telekméret: 205 m2
Fűtés: Egyéb
Energetikai besorolás: Nem adta meg a hirdető

Az OTP Bank lakáshitel ajánlataFizetett hirdetés

+36 1 690
Zöldi Norbert
referens

Érdekel az OTP Bank kedvezményes lakáshitel ajánlata? *

* A kérdésre „Igen” válasz bejelölése esetén, az „Üzenet küldése” gombra kattintva kijelentem, hogy az OTP Bank Nyrt. Adatkezelési tájékoztatójának tartalmát megismertem és tudomásul vettem.

Eladó családi ház leírása

Az ingatlanhoz tartozik egy 231 m2-es kert, amely tökéletes egy nagyobb család számára is. A kert privát és nem látni be rá, megfelelő intimitást nyújt.

A csendes elhelyezkedés egyben egy remek infrastruktúrát jelent. A környéken minden megtalálható amire az embernek szüksége lehet, illetve a belváros is rendkívül gyorsan megközelíthető, autóval, és tömegközlekedéssel is.

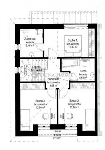
A ház helységei két szinten oszlanak meg, a hasznos alapterület 122 m2.

Az otthon szíve a közel 33 m2-es amerikai konyhás nappali, ami terasz kapcsolatos, ezen a szinten még zuhanyzó+wc, háztartási helyiség kerül kialakításra.

Tartozik az ingatlanhoz egy fedett garázs is, ahova bőven be lehet parkolni egy nagyméretű autóval is, illetve a holmik tárolására is tökéletes.

A felső szinten további 3 db teljes értékű szoba várja új tulajdonosait, a lakók kényelmét még 2 db fürdőszoba szolgálja.

A vételár tartalmazza:
- beépített gépesített konyabútort,
- a teljes kertépítést,
- a beépített gardróbszekrényeket.

MŰSZAKI TARTALOM:
- Főfalak: 30 cm POROTHERM 30 N+F vázkerámia falazóblokk falazat ragasztva,
- Válaszfalak: 10 cm vtg. kerámia válaszfallapból, speciális ragasztóval,
- Koszorúk: monolit vasbeton szerkezet, külső oldalán 5 cm plusz kiegészítő hőszigeteléssel,
- Födém: monolit vasbeton födém készül, statikai méretezés szerint, emelet felett fa fedélszék ,
- Tető: hagyományos ácsszerkezetű magastető készül 25 fokos hajlásszöggel, dobozolt eresz kialakítással, Terrán Zenit Max Carbon szürke színben cserépfedéssel.
- Műanyag nyílászárók fenyő színben, 3 rétegű hőszigetelő üvegezéssel és több ponton záródó biztonsági bejárati ajtóval.
- Burkolatok: hálószobákban laminált parketta melegburkolat, vizes helyiségeben kerámia-, és csempeburkolat készül. Kültéren a gépkocsi behajtó és járdák térkő burkolatúak.
- Homlokzati hőszigetelés expandált polisztirol hőszigetelő lemez 15 cm vtg-ban
- Lábazati hőszigetelés extrudált polisztirol hőszigetelő lemez 12 cm vtg-ban
- Koszorú külső hőszigetelés expandált polisztirol hőszigetelő lemez 5 cm vtg-ban
- Hőszigetelés padlóban expandált polisztirol hőszigetelő lemez 10 cm vtg-ban
- Födém feletti hőszigetelés EPS hőszigetelés, 20 cm vtg-ban,
- hőszivattyús fűtés, mennyezeti fűtés, hútés.

EXTRÁK:
- OKOS RENDSZER,
- elektromos redőnyök,
- kamera és riasztó rendszer kiépítés,
- videó kaputelefon,
- elektromos kapu,
- öntöző rendszer,
- elektromos autótöltő kiépítés,
- Wpc kerítés,
- 3 rétegű üvegek,
- rejtett világítások,
- udvar világítások,
- légtechnika.

Teljes átláthatóság az építkezés során digitálisan, kényelmesen, biztonságosan!

Az építkezés nálunk nem csak szakmai precizitásról szól, hanem valódi átláthatóságról is. A PlanRadar digitális projektkövető rendszerének köszönhetően Ön, mint leendő tulajdonos:

Valós időben nyomon követheti az építkezés minden lépését akár mobilról is.

Kéthetente részletes jelentést kap az aktuális állapotról, fotókkal, dokumentumokkal.

A projekt végén digitálisan megkapja az összes hivatalos dokumentumot, beleértve a garanciákat, tervrajzokat, átadási jegyzőkönyveket mindezt egyetlen, biztonságos platformon.

FINANSZÍROZÁS: Hitelre megvásárolható, vevőink részére díjmentes hitel közvetítés, minden magyarországi bankból. Állami támogatások felvehetőek rá!

Átadás: 2026. III. NEGYEDÉV

Ne hagyja ki ezt a páratlan lehetőséget! Egy ilyen prémium ingatlan ritkán kerül piacra, és most Ön előtt áll a lehetőség, hogy a város egyik legvonzóbb helyén éljen. Tökéletes választás a modern, kényelmes és biztonságos életstílust keresők számára!

Várom megtisztelő hívását a hét minden napján!
Zöldi Norbert +36709450148

Referencia szám: HZ085582

Hirdetés feltöltve: 2025. 11. 18. Utoljára módosítva: 2025. 12. 13.

4 szobás családi házak ára Budapesten

Ebből az összehasonlításból megtudhatod, hogyan viszonyul a lakás ára a környékbeli családi házak átlagos árához. Ez nem azt jelenti, hogy ennyivel olcsóbb vagy drágább, mint amennyit a lakás ér, hanem hogy ennyivel tér el a környékbeli átlagtól.

Ennek a m² ára
X. kerület m² ár
Budapest m² ár
1229 e Ft
1232 e Ft 0%
1065 e Ft -15%
Ennek az ára
X. kerület átlagár
Budapest átlagár
149.9 M Ft m Ft
162.3 m Ft 8%
154.9 m Ft 3%

Az ingatlan elhelyezkedése

Cím: Budapest, X. kerület, Újhegy

Eladó ingatlanok a környékről

Eladó családi ház
Eladó családi ház

X. kerület

125 M Ft
3 + 1 szoba
100 m2
Eladó telek
Eladó telek

X. kerület, Óhegy

428.625 M Ft
3720 m²
Eladó téglalakás
Eladó téglalakás

I. kerület, Krisztinaváros, Feszty Árpád utca

78.99 M Ft
1 szoba
28 m2
Eladó téglalakás
Eladó téglalakás

XI. kerület, Gellérthegy, Gombócz Zoltán utca

142 M Ft
2 + 1 szoba
71 m2
Eladó családi ház
Eladó családi ház

II. kerület

475 M Ft
5 + 2 szoba
254 m2
Eladó téglalakás
Eladó téglalakás

VII. kerület, Belső Erzsébetváros, Erzsébet körút

89.9 M Ft
1 + 1 szoba
71 m2
Eladó üzlethelyiség
Eladó üzlethelyiség

II. kerület, Országút, Margit körút

6.999 M Ft
5 m2
Eladó téglalakás
Eladó téglalakás

V. kerület, Belváros, Petőfi Sándor utca

134 M Ft
2 szoba
59 m2
Eladó családi ház
Eladó családi ház

X. kerület

160 M Ft
7 szoba
204 m2
Eladó családi ház
Eladó családi ház

II. kerület, Széphalom, Muhar utca

208.8 M Ft
5 + 1 szoba
260 m2
Eladó családi ház
Eladó családi ház

X. kerület, Újhegy

199 M Ft
4 szoba
180 m2
Eladó családi ház
Eladó családi ház

X. kerület, Újhegy

199.9 M Ft
3 szoba
160 m2
Eladó családi ház
Eladó családi ház

X. kerület

339.9 M Ft
15 szoba
651 m2
Eladó családi ház
Eladó családi ház

X. kerület, Felsőrákos, Dömsödi utca

150 M Ft
2 szoba
150 m2
Eladó téglalakás
Eladó téglalakás

VII. kerület, Belső Erzsébetváros, Rózsa utca

170 M Ft
5 szoba
124 m2
Eladó téglalakás
Eladó téglalakás

III. kerület, Rómaifürdő, Királyok útja

139 M Ft
3 szoba
65 m2
Eladó téglalakás
Eladó téglalakás

IV. kerület, Újpest, Kassai utca

84.9 M Ft
2 + 1 szoba
71 m2
Eladó téglalakás
Eladó téglalakás

V. kerület, Belváros, Belgrád rakpart

78 M Ft
1 + 1 szoba
42 m2
Eladó téglalakás
Eladó téglalakás

VI. kerület, Külső Terézváros, Szív utca

119.5 M Ft
3 szoba
94 m2
Eladó családi ház
Eladó családi ház

X. kerület, Óhegy

145 M Ft
1 + 2 szoba
74 m2
Eladó téglalakás
Eladó téglalakás

VII. kerület, Belső Erzsébetváros, Erzsébet körút

160 M Ft
3 szoba
88 m2
Eladó családi ház
Eladó családi ház

X. kerület

149.9 M Ft
7 szoba
360 m2
Eladó téglalakás
Eladó téglalakás

III. kerület, Óbuda, Szomolnok utca

89.9 M Ft
2 + 2 szoba
96 m2
Eladó családi ház
Eladó családi ház

X. kerület, Óhegy

160 M Ft
7 szoba
204 m2

Falusi CSOK ingatlanok

Eladó családi ház
Eladó családi ház

Ipolyvece

18.9 M Ft
3 + 1 szoba
91 m2
Eladó családi ház
Eladó családi ház

Bag

16.9 M Ft
6 szoba
160 m2
Eladó családi ház
Eladó családi ház

Balatonfenyves

430 M Ft
4 szoba
274 m2
Eladó családi ház
Eladó családi ház

Szentistván

22.5 M Ft
2 + 1 szoba
120 m2
Eladó családi ház
Eladó családi ház

Vásárosdombó

14.99 M Ft
2 szoba
69 m2
Eladó családi ház
Eladó családi ház

Vajszló

18 M Ft
2 szoba
91 m2
Eladó családi ház
Eladó családi ház

Olaszfa

70.38 M Ft
3 szoba
139 m2
Eladó családi ház
Eladó családi ház

Ceglédbercel

67 M Ft
3 szoba
173 m2