Kiadó üzlethelyiség
Budapest, IX. kerület, földszint
Részletes adatok
Az OTP Bank lakáshitel ajánlataFizetett hirdetés
A tájékoztatás nem teljes körű és nem minősül ajánlattételnek. Az OTP Évnyerő Lakáshitelei 1 éves türelmi idős kölcsönök, amellyel az első 12 hónapban alacsonyabb a havi törlesztőrészlet. A tőke törlesztését a 13. hónaptól kell megkezdeni.
Kiadó üzlethelyiség leírása
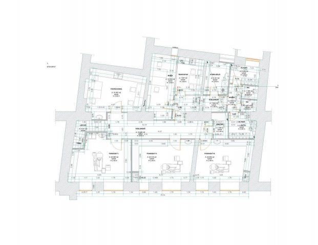
IX. Ferencváros szívében, a Kálvin-tértől pár percre, utcaportálos, irodának, rendelőnek, üzletnek is kiválóan alkalmas, nagy méretű, két bejárattal rendelkező, belső két szintes üzlethelyiség kiadó.
A tulajdonos elkezdte fogászati és egyéb orvosi rendelőnek a kialakítást, így a szellőztető-rendszer, víz- és csatorna, elektromos kiállások szinte minden helyiségben rendelkezésre állnak. A belső munkálatokat nem fejezték be, így rugalmasan a bérlő igényei szerint alakítható a funkciója és az elrendezése.
Közös költség: 32 700 Ft
Földszint 156 m2): 3 nagy méretű utcai ablakos helyiség, 3 további helyiség, vizesblokk (2 wc, mosdó), közlekedő, raktárak
Emelet (154 m2): 3 nagy méretű, utcai ablakos helyiség, 4 további helyiség, vizesblokk (2 wc, mosdó, 2 öltöző), közlekedő, raktár
A két szint akár szeparálható is, külön bejárattal is használhatóak.
Bérleti díj: 2.2 MFt + ÁFA (Ez a bérleti díj tartalmazza a teljes kialakítást és a fogászati székeket is igény szerint.)
Hirdetés feltöltve: 2024. 11. 29. Utoljára módosítva: 2025. 09. 17.
üzlethelyiségek ára Budapesten
Ebből az összehasonlításból megtudhatod, hogyan viszonyul a lakás ára a környékbeli üzlethelyiségek átlagos árához. Ez nem azt jelenti, hogy ennyivel olcsóbb vagy drágább, mint amennyit a lakás ér, hanem hogy ennyivel tér el a környékbeli átlagtól.
Az ingatlan elhelyezkedése
Cím: Budapest, IX. kerület, földszint
Kiadó ingatlanok a környékről

IX. kerület, Ferencváros, Villamosmegállóban átadó MELEGKONYHÁS vendéglátóegység

VIII. kerület, Palotanegyed, Bródy Sándor utca
