BAM Living

Kiadó iroda
Budapest, XI. kerület, földszint

+ 7 kép 1/10
1 200 000 Ft1200 E Ft / hó 7 273 Ft/m2
165 m²
földszint
építés éve:2000

Részletes adatok

Állapot: Felújított
Fűtés: Elektromos
Emelet: földszint
Energetikai besorolás: C

Az OTP Bank lakáshitel ajánlataFizetett hirdetés

Hitelösszeg 10 millió Ft
Futamidő 20 év
Induló törlesztőrészlet 67 508 Ft
Törlesztőrészlet a 13. hónaptól 86 071 Ft
THM 8,6 %

A tájékoztatás nem teljes körű és nem minősül ajánlattételnek. Az OTP Évnyerő Lakáshitelei 1 éves türelmi idős kölcsönök, amellyel az első 12 hónapban alacsonyabb a havi törlesztőrészlet. A tőke törlesztését a 13. hónaptól kell megkezdeni.

    Részletes kalkuláció
    +36 30 202
    Kovács Dénes
    referens

    Érdekel az OTP Bank kedvezményes lakáshitel ajánlata? *

    * A kérdésre „Igen” válasz bejelölése esetén, az „Üzenet küldése” gombra kattintva kijelentem, hogy az OTP Bank Nyrt. Adatkezelési tájékoztatójának tartalmát megismertem és tudomásul vettem.

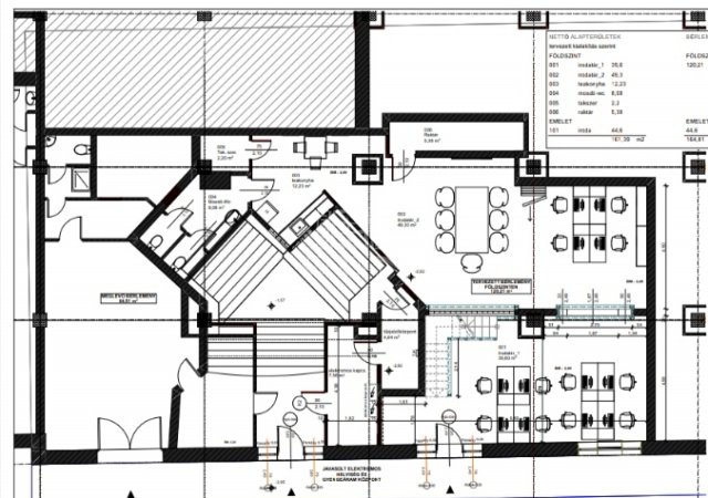
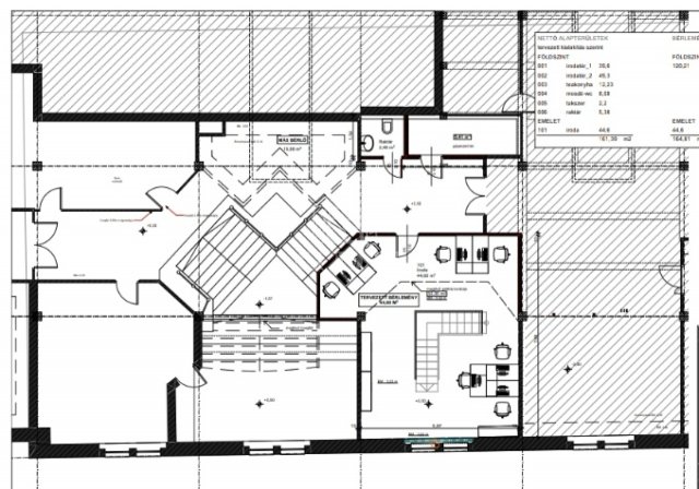
    Kiadó iroda leírása

    A XI. kerületben,a Karolina úton kiadó a fotókon látható, utcai bejáratú, belső kétszintes, 165 négyzetméteres teljesen felújított helyiség, iroda vagy más üzleti tevékenység céljára. A környék forgalmas, több üzlet is található a házban és a közvetlen környékén.
    A felújítás jelenleg még folyamatban van, a fotók a tervek alapján IA segítségével készültek.
    Amennyiben felkeltette érdeklődését és szeretné személyesen is látni, várom hívását a hét bármely napján. ...TOVÁBBI, TÖBBEZRES INGATLAN KÍNÁLAT: www.gdn-ingatlan.hu - GDN azonosító: 395413

    Hirdetés feltöltve: 2026. 04. 30. Utoljára módosítva: 2026. 05. 10.

    Irodák ára Budapesten

    Ebből az összehasonlításból megtudhatod, hogyan viszonyul a lakás ára a környékbeli irodák átlagos árához. Ez nem azt jelenti, hogy ennyivel olcsóbb vagy drágább, mint amennyit a lakás ér, hanem hogy ennyivel tér el a környékbeli átlagtól.

    Ennek a m² ára
    XI. kerület m² ár
    Budapest m² ár
    7 e Ft
    4 e Ft -73%
    4 e Ft -68%
    Ennek az ára
    XI. kerület átlagár
    Budapest átlagár
    1200 E Ft / hó m Ft
    0.8 m Ft -44%
    1 m Ft -22%

    Az ingatlan elhelyezkedése

    Cím: Budapest, XI. kerület, földszint

    Kiadó ingatlanok a környékről

    VI. kerület, Külső Terézváros, Benczúr utca
    Kiadó téglalakás, albérlet

    Budapest, VI. kerület

    350 E Ft / hó
    3 szoba
    72 m²
    III. kerület
    Kiadó téglalakás, albérlet

    Budapest, III. kerület

    650 E Ft / hó
    5 szoba
    107 m²
    VI. kerület, Külső Terézváros, Benczúr utca
    Kiadó téglalakás, albérlet

    Budapest, VI. kerület

    350 E Ft / hó
    3 szoba
    72 m²
    XI. kerület, Albertfalva, Karcag utca
    Kiadó téglalakás, albérlet

    Budapest, XI. kerület

    225 E Ft / hó
    1 szoba
    34 m²
    I. kerület, Gellérthegy, Avar utca
    Kiadó téglalakás, albérlet

    Budapest, I. kerület

    310 E Ft / hó
    2 szoba
    47 m²
    IX. kerület, Ferencváros, Lenhossék utca
    Kiadó téglalakás, albérlet

    Budapest, IX. kerület

    290 E Ft / hó
    2 szoba
    49 m²
    XI. kerület, Kelenföld, Újbuda
    Kiadó iroda

    Budapest, XI. kerület

    2715 E Ft / hó
    500 m²
    XIII. kerület, Vizafogó, Dagály utca
    Kiadó téglalakás, albérlet

    Budapest, XIII. kerület

    320 E Ft / hó
    2 szoba
    40 m²
    XI. kerület, Kelenföld
    Kiadó iroda

    Budapest, XI. kerület

    1404 E Ft / hó
    300 m²
    XI. kerület, Dobogó, Budaörsi út
    Kiadó iroda

    Budapest, XI. kerület

    269 E Ft / hó
    67 m²
    XI. kerület, Kelenföld, Hunyadi János út
    Kiadó iroda

    Budapest, XI. kerület

    1269 E Ft / hó
    11 szoba
    439 m²
    XXI. kerület, Gyártelep, Központi
    Kiadó ipari ingatlan

    Budapest, XXI. kerület

    235 E Ft / hó
    296 m²
    XI. kerület, Kelenföld, Budapest XI. kerület, Fehérvári út
    Kiadó iroda

    Budapest, XI. kerület

    2583 E Ft / hó
    738 m²
    XXI. kerület
    Kiadó iroda

    Budapest, XXI. kerület

    990 E Ft / hó
    1180 m²
    638 m²
    XI. kerület, Hosszúrét, Budapest XI. kerület, Rétkerülő út
    Kiadó iroda

    Budapest, XI. kerület

    3300 E Ft / hó
    643 m²
    643 m²
    IV. kerület, Újpest, Árpád út
    Kiadó téglalakás, albérlet

    Budapest, IV. kerület

    260 E Ft / hó
    1 szoba
    51 m²
    I. kerület, Víziváros, Donáti utca
    Kiadó téglalakás, albérlet

    Budapest, I. kerület

    380 E Ft / hó
    3 szoba
    91 m²
    XIX. kerület, Kispest, Kosárfonó
    Kiadó panellakás, albérlet

    Budapest, XIX. kerület

    210 E Ft / hó
    2 szoba
    34 m²
    XI. kerület, Kelenföld, Temesvár utca
    Kiadó iroda

    Budapest, XI. kerület

    43 E Ft / hó
    14 m²
    XI. kerület, Őrmező, Hengerhalom út
    Kiadó iroda

    Budapest, XI. kerület

    1251 E Ft / hó
    433 m²
    III. kerület, Óbuda, Nagyszombat utca
    Kiadó téglalakás, albérlet

    Budapest, III. kerület

    230 E Ft / hó
    1 szoba
    28 m²
    XI. kerület, Kelenföld
    Kiadó iroda

    Budapest, XI. kerület

    144 E Ft / hó
    25 m²
    XI. kerület, Kelenföld, Újbuda
    Kiadó iroda

    Budapest, XI. kerület

    1800 E Ft / hó
    1.37 ha
    XXIII. kerület
    Kiadó téglalakás, albérlet

    Budapest, XXIII. kerület

    300 E Ft / hó
    3 szoba
    85 m²

    Falusi CSOK ingatlanok

    Balatonkenese
    Eladó családi ház

    Balatonkenese

    165.7 M Ft
    2 + 4 szoba
    179 m²
    Parád
    Eladó családi ház

    Parád

    140 M Ft
    4 szoba
    200 m²
    Iváncsa
    Eladó családi ház

    Iváncsa

    93.5 M Ft
    5 szoba
    283 m²
    Seregélyes
    Eladó családi ház

    Seregélyes

    71.4 M Ft
    3 szoba
    120 m²
    Újkígyós
    Eladó családi ház

    Újkígyós

    29.9 M Ft
    4 szoba
    145 m²
    Ceglédbercel
    Eladó családi ház

    Ceglédbercel

    89 M Ft
    4 szoba
    135 m²
    Becsehely
    Eladó családi ház

    Becsehely

    24.6 M Ft
    2 szoba
    99 m²
    Bogács
    Eladó családi ház

    Bogács

    45 M Ft
    4 szoba
    134 m²