Seven Pearl

Eladó üzlethelyiség
Püspökladány, földszint

+ 17 kép 1/20
148 900 000 Ft148.9 M Ft 365 848 Ft/m2
407 m2
földszint
építés éve:2001

Részletes adatok

Fűtés: Gázkazán
Energetikai besorolás: Nem adta meg a hirdető

Az OTP Bank lakáshitel ajánlataFizetett hirdetés

+36 30 167
Balázscsikné Hanzel Renáta
OTPIP Nyíregyháza Hunyadi u.

Érdekel az OTP Bank kedvezményes lakáshitel ajánlata? *

* A kérdésre „Igen” válasz bejelölése esetén, az „Üzenet küldése” gombra kattintva kijelentem, hogy az OTP Bank Nyrt. Adatkezelési tájékoztatójának tartalmát megismertem és tudomásul vettem.

Eladó üzlethelyiség leírása

Eladó Püspökladányban egy sokoldalúan hasznosítható üzlethelyiség!

Kiváló adottságokkal rendelkező földszintes + tetőtér beépítéses épület, amely számos lehetőséget kínál üzleti és lakófunkcióra egyaránt.

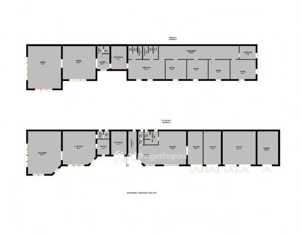
Az épület összesen 407 m2 beépített területtel rendelkezik, több különálló helyiségből áll, így akár üzletek, irodák, műhelyek vagy akár 4 lakás is kialakítható benne.

Főbb jellemzők:
- Telek mérete és beépíthetősége: 830 m2 és 40%
- Beépített terület: 236 m2 (földszint) + 171 m2 (tetőtér)
- Használati lehetőségek: üzletek, irodák, szolgáltatói egységek, lakások
- Parkolás: Telken belül 5 saját parkolóhely
- Elhelyezkedés: sík terepen, központi lokációban, oldalhatáron álló épület

Kialakítás és helyiségek:
Földszint:
- 2 db üzlethelyiség
- Raktárak - Különálló vizesblokkok (mosdók, WC-k)
- Garázsok és műhelyek

Tetőtér:
- Különálló szobák
- Üzlethelyiségek
- Különálló mosdók, WC-k

Műszaki adatok és felszereltség:
- Falazat: tégla
- Födém: monolit vasbeton
- Tető: nyeregtető, cserépfedéssel
- Nyílászárók: fa és fém szerkezetek
- Fűtés: gázkazán, melegvizes radiátorok, vegyestüzelésű kazán egy 1000 literes puffertartállyal, hűtő-fűtő klíma
- Közművek: teljes közművesítés (víz, csatorna, gáz, villany)

Az épület többféle funkcióra is alkalmas, így kiváló lehetőség vállalkozások, befektetők és ingatlanfejlesztők számára is. Az elrendezésnek és az építési szabályoknak megfelelően akár 4 önálló lakás, vagy több különálló üzlet és iroda is kialakítható benne.

A hirdetésben tervezett látványképek is meg vannak jelenítve, hogy segítsenek a végleges megjelenés pontosabb elképzelésében!

További információért hívjon bizalommal akár hétvégén is. Megtekintésre telefonos egyeztetés alapján van lehetőség. Kedvezményes kamatozású lakásvásárlási, felújítási hitelek, OTTHON START valamint CSOK és Babaváró ügyintézés az OTP hátterével irodánkban.

Hirdetés feltöltve: 2025. 12. 14. Utoljára módosítva: 2025. 12. 14.

Az ingatlan elhelyezkedése

Cím: Püspökladány, földszint

Eladó ingatlanok a környékről

Eladó családi ház
Eladó családi ház

Hajdúszoboszló

142 M Ft
3 + 4 szoba
320 m2
Eladó ikerház
Eladó ikerház

Debrecen

139 M Ft
4 szoba
112 m2
Eladó családi ház
Eladó családi ház

Hajdúdorog

95 M Ft
9 szoba
270 m2
Eladó családi ház
Eladó családi ház

Hajdúszoboszló

125 M Ft
3 + 2 szoba
277 m2
Eladó üzlethelyiség
Eladó üzlethelyiség

Hortobágy, Számadó utca

59.9 M Ft
203 m2
Eladó üzlethelyiség
Eladó üzlethelyiség

Debrecen

177 M Ft
384 m2
Eladó téglalakás
Eladó téglalakás

Debrecen

59.5 M Ft
2 szoba
54 m2
Eladó üzlethelyiség
Eladó üzlethelyiség

Mezőpeterd

340 M Ft
11 szoba
764 m2
Eladó üzlethelyiség
Eladó üzlethelyiség

Debrecen, Miklóskapu, Erzsébet u

69.9 M Ft
5 szoba
104 m2
Eladó családi ház
Eladó családi ház

Hajdúszoboszló

149 M Ft
8 szoba
290 m2
Eladó családi ház
Eladó családi ház

Biharkeresztes, Széchenyi utca

17 M Ft
3 szoba
78 m2
Eladó téglalakás
Eladó téglalakás

Debrecen

140 M Ft
4 szoba
91 m2
Eladó családi ház
Eladó családi ház

Püspökladány

37 M Ft
3 szoba
119 m2
Eladó téglalakás
Eladó téglalakás

Debrecen

59.5 M Ft
2 szoba
54 m2
Eladó üzlethelyiség
Eladó üzlethelyiség

Hajdúböszörmény

39 M Ft
80 m2
Eladó családi ház
Eladó családi ház

Pocsaj

12.9 M Ft
3 szoba
71 m2
Eladó üzlethelyiség
Eladó üzlethelyiség

Püspökladány

148.9 M Ft
407 m2
Eladó üzlethelyiség
Eladó üzlethelyiség

Debrecen

139 M Ft
299 m²
183 m2
Eladó üzlethelyiség
Eladó üzlethelyiség

Körösszegapáti

6.9 M Ft
96 m2
Eladó téglalakás
Eladó téglalakás

Debrecen

15 M Ft
1 szoba
9 m2
Eladó üzlethelyiség
Eladó üzlethelyiség

Polgár

52 M Ft
153 m2
Eladó téglalakás
Eladó téglalakás

Hajdúsámson

55.89 M Ft
1 + 2 szoba
80 m2
Eladó üzlethelyiség
Eladó üzlethelyiség

Püspökladány

148.9 M Ft
407 m2
Eladó üzlethelyiség
Eladó üzlethelyiség

Ártánd

17 M Ft
6 szoba
180 m2

Falusi CSOK ingatlanok

Eladó családi ház
Eladó családi ház

Somlóvásárhely

39.8 M Ft
1 szoba
78 m2
Eladó családi ház
Eladó családi ház

Marcaltő

26 M Ft
3 szoba
103 m2
Eladó ikerház
Eladó ikerház

Söpte

79.9 M Ft
4 szoba
80 m2
Eladó családi ház
Eladó családi ház

Alattyán

8.5 M Ft
1 + 1 szoba
70 m2
Eladó családi ház
Eladó családi ház

Kemeneshőgyész

8 M Ft
2 szoba
60 m2
Eladó családi ház
Eladó családi ház

Hernádnémeti

18.9 M Ft
2 szoba
62 m2
Eladó családi ház
Eladó családi ház

Balatonfenyves

430 M Ft
4 szoba
274 m2
Eladó családi ház
Eladó családi ház

Patak

26.9 M Ft
4 szoba
160 m2