Eladó üzlethelyiség
Püspökladány

+ 17 kép 1/20
148 900 000 Ft148.9 M Ft 365 848 Ft/m2
407 m2
építés éve:2001

Részletes adatok

Állapot: Átlagos
Fűtés: Gázkazán
Energetikai besorolás: Nem adta meg a hirdető

Az OTP Bank lakáshitel ajánlataFizetett hirdetés

+36 20 806
Mester Tibor
referens

Érdekel az OTP Bank kedvezményes lakáshitel ajánlata? *

* A kérdésre „Igen” válasz bejelölése esetén, az „Üzenet küldése” gombra kattintva kijelentem, hogy az OTP Bank Nyrt. Adatkezelési tájékoztatójának tartalmát megismertem és tudomásul vettem.

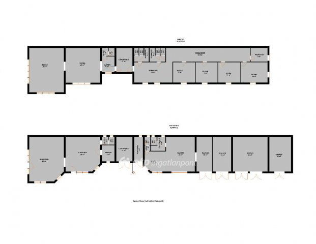
Eladó üzlethelyiség leírása

Eladó Püspökladányban egy sokoldalúan hasznosítható üzlethelyiség!

Kiváló adottságokkal rendelkező földszintes + tetőtér beépítéses épület, amely számos lehetőséget kínál üzleti és lakófunkcióra egyaránt.

Az épület összesen 407 m2 beépített területtel rendelkezik, több különálló helyiségből áll, így akár üzletek, irodák, műhelyek vagy akár 4 lakás is kialakítható benne.

Főbb jellemzők:
- Telek mérete és beépíthetősége: 830 m2 és 40%
- Beépített terület: 236 m2 (földszint) + 171 m2 (tetőtér)
- Használati lehetőségek: üzletek, irodák, szolgáltatói egységek, lakások
- Parkolás: Telken belül 5 saját parkolóhely
- Elhelyezkedés: sík terepen, központi lokációban, oldalhatáron álló épület

Kialakítás és helyiségek:
Földszint:
- 2 db üzlethelyiség
- Raktárak - Különálló vizesblokkok (mosdók, WC-k)
- Garázsok és műhelyek

Tetőtér:
- Különálló szobák
- Üzlethelyiségek
- Különálló mosdók, WC-k

Műszaki adatok és felszereltség:
- Falazat: tégla
- Födém: monolit vasbeton
- Tető: nyeregtető, cserépfedéssel
- Nyílászárók: fa és fém szerkezetek
- Fűtés: gázkazán, melegvizes radiátorok, vegyestüzelésű kazán egy 1000 literes puffertartállyal, hűtő-fűtő klíma
- Közművek: teljes közművesítés (víz, csatorna, gáz, villany)

Az épület többféle funkcióra is alkalmas, így kiváló lehetőség vállalkozások, befektetők és ingatlanfejlesztők számára is. Az elrendezésnek és az építési szabályoknak megfelelően akár 4 önálló lakás, vagy több különálló üzlet és iroda is kialakítható benne.

A hirdetésben tervezett látványképek is meg vannak jelenítve, hogy segítsenek a végleges megjelenés pontosabb elképzelésében!

További információért hívjon bizalommal akár hétvégén is. Megtekintésre telefonos egyeztetés alapján van lehetőség. Kedvezményes kamatozású lakásvásárlási, felújítási hitelek, OTTHON START valamint CSOK és Babaváró ügyintézés az OTP hátterével irodánkban.

Hirdetés feltöltve: 2025. 10. 09. Utoljára módosítva: 2025. 10. 09.

Az ingatlan elhelyezkedése

Cím: Püspökladány

Eladó családi házak a környékről

Eladó családi ház
Eladó családi ház

Püspökladány

34.9 M Ft
3 + 1 szoba
110 m2
Eladó családi ház
Eladó családi ház

Debrecen

150 M Ft
7 szoba
300 m2
Eladó családi ház
Eladó családi ház

Püspökladány

13.9 M Ft
2 szoba
100 m2
Eladó családi ház
Eladó családi ház

Püspökladány

27.9 M Ft
2 szoba
72 m2
Eladó családi ház
Eladó családi ház

Hajdúszoboszló

99 M Ft
5 + 1 szoba
160 m2
Eladó családi ház
Eladó családi ház

Sáránd

53.99 M Ft
2 + 1 szoba
150 m2
Eladó családi ház
Eladó családi ház

Debrecen

121 M Ft
5 szoba
142 m2
Eladó családi ház
Eladó családi ház

Püspökladány

29.1 M Ft
3 szoba
515 m2
Eladó családi ház
Eladó családi ház

Püspökladány

63.5 M Ft
4 szoba
140 m2
Eladó családi ház
Eladó családi ház

Püspökladány

45 M Ft
3 szoba
92 m2
Eladó családi ház
Eladó családi ház

Püspökladány

22.9 M Ft
5 szoba
130 m2
Eladó családi ház
Eladó családi ház

Püspökladány, Kiss Ferenc utca

49.8 M Ft
5 szoba
150 m2
Eladó családi ház
Eladó családi ház

Püspökladány

4.99 M Ft
1 + 1 szoba
38 m2
Eladó családi ház
Eladó családi ház

Debrecen

245 M Ft
5 + 1 szoba
275 m2
Eladó családi ház
Eladó családi ház

Püspökladány, Kiss Ferenc utca

49.8 M Ft
5 szoba
150 m2
Eladó családi ház
Eladó családi ház

Hajdúböszörmény

15.5 M Ft
2 szoba
45 m2
Eladó családi ház
Eladó családi ház

Debrecen, Lencztelep, Szeged utca

129.9 M Ft
7 szoba
240 m2
Eladó családi ház
Eladó családi ház

Hajdúböszörmény

99 M Ft
2 + 1 szoba
142 m2
Eladó családi ház
Eladó családi ház

Debrecen

590 M Ft
8 szoba
740 m2
Eladó családi ház
Eladó családi ház

Püspökladány

59.9 M Ft
5 szoba
180 m2
Eladó családi ház
Eladó családi ház

Hajdúszoboszló

8.49 M Ft
1 szoba
24 m2
Eladó családi ház
Eladó családi ház

Hajdúsámson

48.5 M Ft
2 szoba
75 m2
Eladó családi ház
Eladó családi ház

Püspökladány

39.5 M Ft
4 szoba
120 m2
Eladó családi ház
Eladó családi ház

Püspökladány

89.999 M Ft
4 + 2 szoba
264 m2

Falusi CSOK ingatlanok

Eladó családi ház
Eladó családi ház

Szécsisziget

12.5 M Ft
1 szoba
57 m2
Eladó családi ház
Eladó családi ház

Fonyód

495 M Ft
5 szoba
149 m2
Eladó családi ház
Eladó családi ház

Miháld

39.9 M Ft
5 szoba
101 m2
Eladó családi ház
Eladó családi ház

Törtel

39 M Ft
1 + 1 szoba
118 m2
Eladó családi ház
Eladó családi ház

Bakonya

48 M Ft
3 szoba
168 m2
Eladó téglalakás
Eladó téglalakás

Balatonszemes

91.5 M Ft
2 szoba
60 m2
Eladó családi ház
Eladó családi ház

Magyarszék

89.9 M Ft
5 szoba
130 m2
Eladó családi ház
Eladó családi ház

Fülöpjakab

57 M Ft
6 szoba
219 m2