Aerogate Homes

Eladó telek
Csömör

+ 17 kép 1/20
59 900 000 Ft59.9 M Ft 74 502 Ft/m2
804 m²

Részletes adatok

Telekméret: 804 m2
Fűtés: Egyéb
Közmű: Víz, Villany, Csatorna
Övezet: Lakóövezet
Energetikai besorolás: Nem adta meg a hirdető

Az OTP Bank lakáshitel ajánlataFizetett hirdetés

+36 70 465
Mészáros Anita
referens

Érdekel az OTP Bank kedvezményes lakáshitel ajánlata? *

* A kérdésre „Igen” válasz bejelölése esetén, az „Üzenet küldése” gombra kattintva kijelentem, hogy az OTP Bank Nyrt. Adatkezelési tájékoztatójának tartalmát megismertem és tudomásul vettem.

Eladó telek leírása

CSÖMÖRÖN, CSENDES UTCÁJÁBAN! Eladó egy szerkezetkész ház, teljes tervdokumentációval!

Eladásra kínálunk egy 804 nm-es, összközműves telket, melyen található egy szerkezetkész ingatlan, amely egyedi tervek alapján készült, masszív, stabil alapra, ami egy igazán különleges otthon alapjait képezi.
Az ingatlan egy nyugodt, csendes utcában helyezkedik el. Ideális választás mindazok számára, akik szeretnék saját elképzeléseik szerint befejezni új otthonukat.

Ingatlan paraméterek:
Telek mérete: 804 m²
A házhoz teljeskörűen megtervezett építési és engedélyezési tervek állnak rendelkezésre, amik a településképi véleményezés által is el lettek fogadva, így az új tulajdonosnak már csak a kiviteli terveket kell megcsináltatnia.
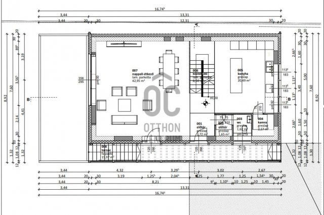
Tervezett ingatlan paraméterei: 3 x 77 nm, egy nyitott galériával, ahol ki lehet alakítani akár szobákat is. A fűtés hőszivattyúval van megtervezve.
Kivitelezési lehetőségek: Az épület modern, egyedi tervek szerint készült, amik az optimális térkihasználást és funkcionalitást célozzák meg, mégis maximálisan lehetőséget biztosítanak a személyre szabott kivitelezésre.
Kiemelt előnyök:
Csendes környék, a telek egy nyugodt, forgalommentes utcában található, ahol a mindennapi élethez szükséges kényelmet és nyugalmat biztosítja a környezet.
Közel a városhoz, a buszvégállomáshoz, boltokhoz, óvodához, mégis a természet közelében: Az ingatlan elhelyezkedése ideális azoknak, akik a város közelségét szeretnék élvezni, de értékelik a zöld környezetet és a nyugodt lakóhelyet.
Ez a kivételes ingatlan lehetőséget biztosít arra, hogy a leendő tulajdonos egy saját igényeire szabott, prémium minőségű otthont valósítson meg.

Az ingatlan felépítését is tudjuk vállalni, kulcsrakész állapotban az ára: 169 Mft.

Ne hagyja ki ezt a ritka lehetőséget és lépjen kapcsolatba velünk további információkért!

Ez az ingatlan a Felező csomag megbízási portfólióhoz tartozik. Részletek az Otthon Centrum weboldalán.

Hirdetés feltöltve: 2026. 02. 16. Utoljára módosítva: 2026. 02. 17.

Telkek ára Csömörön

Ebből az összehasonlításból megtudhatod, hogyan viszonyul a lakás ára a környékbeli telkek átlagos árához. Ez nem azt jelenti, hogy ennyivel olcsóbb vagy drágább, mint amennyit a lakás ér, hanem hogy ennyivel tér el a környékbeli átlagtól.

Ennek a m² ára
Csömör m² ár
75 e Ft
6 e Ft -1,233%
Ennek az ára
Csömör átlagár
59.9 M Ft m Ft
57.1 m Ft -5%

Az ingatlan elhelyezkedése

Cím: Csömör

Eladó telkek a környékről

Csömör
Eladó telek

Csömör

18.9 M Ft
2073 m²
0 m²
Csömör, Csömör - üdülő övezet
Eladó telek

Csömör

21.5 M Ft
2143 m²
0 m²
Budakeszi, Budakeszi külterület
Eladó telek

Budakeszi

39.9 M Ft
2800 m²
0 m²
Szentendre
Eladó telek

Szentendre

32 M Ft
2926 m²
0 m²
Tápiószele
Eladó telek

Tápiószele

2.8 M Ft
1140 m²
0 m²
Szigetszentmiklós
Eladó telek

Szigetszentmiklós

29.9 M Ft
2234 m²
Törökbálint
Eladó telek

Törökbálint

4748.75 M Ft
43.69 ha
0 m²
Budakeszi, Budakeszi kertváros
Eladó telek

Budakeszi

6.9 M Ft
1400 m²
0 m²
Csömör
Eladó telek

Csömör

59.9 M Ft
804 m²
0 m²
Csömör
Eladó telek

Csömör

4 M Ft
1011 m²
Szentendre, Szarvas hegyen eladó belterületi telek!
Eladó telek

Szentendre

69 M Ft
1590 m²
50 m²
Csömör, Csömör - szántó terület
Eladó telek

Csömör

70 M Ft
9000 m²
0 m²
Csömör
Eladó telek

Csömör

3 M Ft
551 m²
Csömör, Csömör - zártkerti
Eladó telek

Csömör

15 M Ft
2200 m²
0 m²
Tápiószele
Eladó telek

Tápiószele

1.8 M Ft
600 m²
0 m²
Csömör, Középhegy
Eladó telek

Csömör

123 M Ft
1923 m²
0 m²
Csömör, Csömör
Eladó telek

Csömör

91 M Ft
2.14 ha
0 m²
Csömör
Eladó telek

Csömör

20.5 M Ft
2143 m²
Üllő
Eladó telek

Üllő

775 M Ft
6.2 ha
Szigetszentmiklós
Eladó telek

Szigetszentmiklós

38 M Ft
2766 m²
Gödöllő, Központhoz közeli csendes utca
Eladó telek

Gödöllő

350.5 M Ft
9825 m²
0 m²
Csömör
Eladó telek

Csömör

9.9 M Ft
2073 m²
0 m²
Csömör, Csömör - szántó
Eladó telek

Csömör

30 M Ft
6000 m²
0 m²
Törökbálint
Eladó telek

Törökbálint

96 M Ft
9600 m²

Falusi CSOK ingatlanok

Tésenfa, Kossuth utca 23/a
Eladó családi ház

Tésenfa

5.55 M Ft
1 + 1 szoba
109 m²
Végegyháza
Eladó családi ház

Végegyháza

62.9 M Ft
4 + 1 szoba
150 m²
Fertőszentmiklós
Eladó családi ház

Fertőszentmiklós

94.5 M Ft
2 + 2 szoba
130 m²
Letenye
Eladó családi ház

Letenye

46.5 M Ft
7 szoba
220 m²
Balatonfenyves
Eladó családi ház

Balatonfenyves

179.9 M Ft
5 szoba
210 m²
Háromfa, Kossuth
Eladó családi ház

Háromfa

22.4 M Ft
1247 m²
139 m²
Sály, Kossuth Lajos 128
Eladó családi ház

Sály

30.48 M Ft
6 szoba
160 m²
Nyáregyháza
Eladó családi ház

Nyáregyháza

68.9 M Ft
4 szoba
142 m²