Astora Márvány8

Eladó téglalakás
Tiszavasvári, 3. emelet

+ 12 kép 1/15
18 000 000 Ft18 M Ft 264 706 Ft/m2
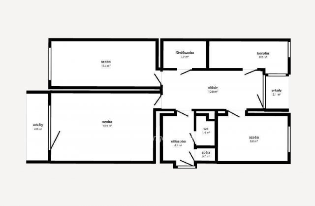
2 + 1 szoba
68 m²
3. emelet
építés éve:1980

Részletes adatok

Állapot: Átlagos
Fűtés: Távfűtés
Emelet: 3. emelet
Energetikai besorolás: Nem adta meg a hirdető

Az OTP Bank lakáshitel ajánlataFizetett hirdetés

+36 30 689
Karczub Erika
OTPIP Nyíregyháza Hunyadi u.

Érdekel az OTP Bank kedvezményes lakáshitel ajánlata? *

* A kérdésre „Igen” válasz bejelölése esetén, az „Üzenet küldése” gombra kattintva kijelentem, hogy az OTP Bank Nyrt. Adatkezelési tájékoztatójának tartalmát megismertem és tudomásul vettem.

Eladó téglalakás leírása

Eladó tágas, 72 nm-es, 3. emeleti téglalakás Tiszavasváriban!

Tiszavasvári központjától néhány percre, egy négyemeletes téglaépület 3. emeletén kínálunk eladásra egy karbantartott, világos, 72 nm-es lakást.
Az ingatlan beton alapon épült, tégla falazatú, és központi, radiátoros fűtéssel rendelkezik, amely rendkívül kedvező rezsivel üzemel ? a téli hónapokban is tízezer forint alatt marad a fűtés költsége.
A keleti fekvésű lakás nyáron is kellemesen hűvös, köszönhetően a ház előtt álló nagy, árnyékot adó fáknak.
A környék csendes, rendezett, a városközpont, üzletek, óvoda és iskola mind pár perc sétára találhatók, így ideális választás családok számára is.
OTP Banki hátterünknek köszönhetően finanszírozási igényekben (pl. Otthon Start Hitelprogram, Babaváró, Falusi CSOK, CSOK Plusz, Lakáshitel, Személyi kölcsön stb.), illetve biztosítások tekintetében is díjmentesen, soron kívüli ügyintézéssel segítem ügyfeleim!
Referenciaszám : M315013

Hirdetés feltöltve: 2026. 04. 01. Utoljára módosítva: 2026. 04. 02.

3 szobás téglalakások ára Tiszavasváriban

Ebből az összehasonlításból megtudhatod, hogyan viszonyul a lakás ára a környékbeli téglalakások átlagos árához. Ez nem azt jelenti, hogy ennyivel olcsóbb vagy drágább, mint amennyit a lakás ér, hanem hogy ennyivel tér el a környékbeli átlagtól.

Ennek a m² ára
Tiszavasvári m² ár
265 e Ft
325 e Ft 19%
Ennek az ára
Tiszavasvári átlagár
18 M Ft m Ft
21.1 m Ft 15%

Az ingatlan elhelyezkedése

Cím: Tiszavasvári, 3. emelet

Eladó ingatlanok a környékről

Tiszavasvári
Eladó téglalakás

Tiszavasvári

31.5 M Ft
3 + 1 szoba
115 m²
Tiszavasvári
Eladó téglalakás

Tiszavasvári

31.5 M Ft
3 + 1 szoba
115 m²
Tiszavasvári
Eladó téglalakás

Tiszavasvári

31.5 M Ft
3 + 1 szoba
115 m²
Nyíregyháza
Eladó családi ház

Nyíregyháza

68.9 M Ft
3 szoba
95 m²
Nyíregyháza
Eladó téglalakás

Nyíregyháza

36 M Ft
2 szoba
58 m²
Nyíregyháza
Eladó téglalakás

Nyíregyháza

55.9 M Ft
2 szoba
74 m²
Nyíregyháza
Eladó téglalakás

Nyíregyháza

67.3 M Ft
2 szoba
55 m²
Tiszavasvári
Eladó téglalakás

Tiszavasvári

6.99 M Ft
2 szoba
63 m²
Tiszavasvári
Eladó téglalakás

Tiszavasvári

31.5 M Ft
3 + 1 szoba
115 m²
Tiszavasvári
Eladó téglalakás

Tiszavasvári

31.5 M Ft
3 + 1 szoba
115 m²
Tiszavasvári
Eladó téglalakás

Tiszavasvári

6.99 M Ft
2 szoba
63 m²
Tiszavasvári, Kossuth Lajos utca
Eladó téglalakás

Tiszavasvári

18 M Ft
3 szoba
61 m²
Nyíregyháza, Örökösföld, Törzs utca 2
Eladó téglalakás

Nyíregyháza

74.9 M Ft
3 szoba
75 m²
Nyíregyháza
Eladó téglalakás

Nyíregyháza

53.7 M Ft
3 szoba
83 m²
Tiszanagyfalu
Eladó családi ház

Tiszanagyfalu

12.49 M Ft
2 szoba
55 m²
Nyíregyháza
Eladó téglalakás

Nyíregyháza

64.9 M Ft
5 szoba
120 m²
Nyíregyháza
Eladó téglalakás

Nyíregyháza

43.5 M Ft
3 + 1 szoba
79 m²
Nyíregyháza
Eladó téglalakás

Nyíregyháza

59.9 M Ft
3 + 1 szoba
120 m²
Nyíregyháza
Eladó téglalakás

Nyíregyháza

72.5 M Ft
3 + 1 szoba
170 m²
Tiszavasvári
Eladó téglalakás

Tiszavasvári

16.99 M Ft
2 + 1 szoba
63 m²
Nyíregyháza
Eladó téglalakás

Nyíregyháza

77 M Ft
3 szoba
61 m²
Tiszavasvári
Eladó téglalakás

Tiszavasvári

16.5 M Ft
3 szoba
61 m²
Nyírpazony
Eladó telek

Nyírpazony

52.9 M Ft
2000 m²
0 m²
Tiszavasvári
Eladó téglalakás

Tiszavasvári

25.5 M Ft
1 + 2 szoba
59 m²

Falusi CSOK ingatlanok

Badacsonytomaj
Eladó családi ház

Badacsonytomaj

285 M Ft
4 szoba
230 m²
Csemő
Eladó családi ház

Csemő

55 M Ft
3 szoba
108 m²
Gesztely
Eladó családi ház

Gesztely

34.9 M Ft
3 szoba
95 m²
Tornyiszentmiklós, Kossuth Lajos utca
Eladó családi ház

Tornyiszentmiklós

29.9 M Ft
3 szoba
110 m²
Somogyszil
Eladó családi ház

Somogyszil

27.9 M Ft
3 szoba
140 m²
Gesztely
Eladó családi ház

Gesztely

12.5 M Ft
3 szoba
65 m²
Badacsonytördemic
Eladó családi ház

Badacsonytördemic

90 M Ft
3 szoba
130 m²
Hegyeshalom, Margaréta utca 12
Eladó téglalakás

Hegyeshalom

50.09 M Ft
2 szoba
43 m²