NapForrás 20 - Buda

Eladó téglalakás
Szombathely, földszint

+ 6 kép 1/9
52 800 000 Ft52.8 M Ft 1 015 385 Ft/m2
3 szoba
52 m2
földszint
építés éve:2025

Részletes adatok

Fűtés: Házközponti egyedi méréssel
Parkolás: Kocsibeálló
Extrák: Lift
Energetikai besorolás: Nem adta meg a hirdető

Az OTP Bank lakáshitel ajánlataFizetett hirdetés

+36 70 575
Berkéné Szűcs Judit
referens

Érdekel az OTP Bank kedvezményes lakáshitel ajánlata? *

* A kérdésre „Igen” válasz bejelölése esetén, az „Üzenet küldése” gombra kattintva kijelentem, hogy az OTP Bank Nyrt. Adatkezelési tájékoztatójának tartalmát megismertem és tudomásul vettem.

Eladó téglalakás leírása

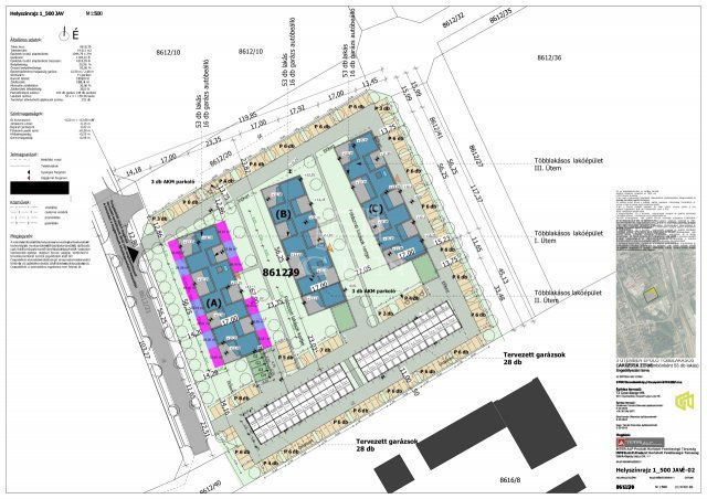
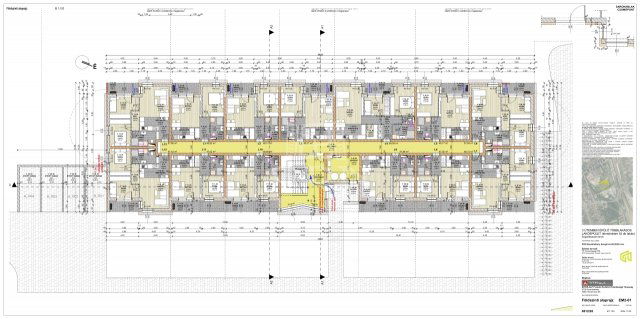
Szombathelyen, jó infrastruktúrával rendelkező Joskar Ola városrészen, modern, 58 lakásos tégla építésű társasházban, magas műszaki tartalommal épülő lakásokat kínálunlk eladásra. Az ingatlanok 36-66 m2 nagyságúak, nappali+1, illetve nappali+2 szobásak, erkélyekkel, teraszokkal. Központi távhős fűtés tervezett, a lakásokban padlófűtéssel egyedi hőmennyiség szabályozással és mérővel.
A használati melegvizet is a távhő központból biztosítják, a fogyasztás
lakásonként egyedi mérővel történik.
Az ingatlanban 1 db 2,5 kw-os hőszivattyús Green vagy azzal egyenértékű típusú klíma kerül felszerelésre. Nyílászárói fokozottan hang-és hőszigeteltek, redőny fogadására alkalmas szemöldökkel. Az épület homlokzatára 15 cm vastag EPS rendszerű szigetelés kerül. A lakásokhoz felszíni parkoló, tároló és garázs is vásárolható. Parkoló 1.8 millió forint, tároló nagyságtól függően 2.2-4.5 millió forint, garázs 10.9 millió forint. Várható átadás 2026 ősze. Ha teljeskörű tájékoztatást szeretne, kérem keressen . Az irodánkban személyes találkozóra van lehetőség. Ha hitere van szüksége, abban is segítünk.
A hirdetésben szereplő lakás : Fsz.6. 52.800.000 Ft. Az ÁFA visszaigényelhető.
Az ingatlan alapterülete 52.17 m2, 6 m2 erkéllyel. ...TOVÁBBI, TÖBBEZRES INGATLAN KÍNÁLAT: www.gdn-ingatlan.hu - GDN azonosító: 388916

Hirdetés feltöltve: 2025. 10. 28. Utoljára módosítva: 2025. 11. 02.

3 szobás téglalakások ára Szombathelyen

Ebből az összehasonlításból megtudhatod, hogyan viszonyul a lakás ára a környékbeli téglalakások átlagos árához. Ez nem azt jelenti, hogy ennyivel olcsóbb vagy drágább, mint amennyit a lakás ér, hanem hogy ennyivel tér el a környékbeli átlagtól.

Ennek a m² ára
Szombathely m² ár
1015 e Ft
870 e Ft -17%
Ennek az ára
Szombathely átlagár
52.8 M Ft m Ft
61.2 m Ft 14%

Az ingatlan elhelyezkedése

Cím: Szombathely, földszint

Eladó téglalakások a környékről

Eladó téglalakás
Eladó téglalakás

Szombathely

59.9 M Ft
3 szoba
61 m2
Eladó téglalakás
Eladó téglalakás

Szombathely

77.9 M Ft
4 + 1 szoba
112 m2
Eladó téglalakás
Eladó téglalakás

Szombathely

71.99 M Ft
120 m2
Eladó téglalakás
Eladó téglalakás

Vasvár

19 M Ft
1 + 1 szoba
56 m2
Eladó téglalakás
Eladó téglalakás

Szombathely

69 M Ft
4 szoba
112 m2
Eladó téglalakás
Eladó téglalakás

Szombathely, Belváros környéke, Tóth Árpád utca

86.73 M Ft
5 szoba
85 m2
Eladó téglalakás
Eladó téglalakás

Répcelak, Petőfi Sándor utca

47.6 M Ft
4 szoba
68 m2
Eladó téglalakás
Eladó téglalakás

Szombathely

69 M Ft
4 szoba
136 m2
Eladó téglalakás
Eladó téglalakás

Szombathely

86.73 M Ft
4 szoba
96 m2
Eladó téglalakás
Eladó téglalakás

Szombathely

36 M Ft
1 szoba
50 m2
Eladó téglalakás
Eladó téglalakás

Szombathely

62.9 M Ft
3 szoba
62 m2
Eladó téglalakás
Eladó téglalakás

Szombathely

86.73 M Ft
4 szoba
86 m2
Eladó téglalakás
Eladó téglalakás

Szombathely

62.8 M Ft
3 szoba
66 m2
Eladó téglalakás
Eladó téglalakás

Sárvár

25.99 M Ft
2 szoba
110 m2
Eladó téglalakás
Eladó téglalakás

Kőszeg

46 M Ft
4 szoba
142 m2
Eladó téglalakás
Eladó téglalakás

Szombathely

30 M Ft
3 szoba
83 m2
Eladó téglalakás
Eladó téglalakás

Répcelak, Petőfi Sándor utca

46.2 M Ft
4 szoba
65 m2
Eladó téglalakás
Eladó téglalakás

Szombathely

69.9 M Ft
4 szoba
77 m2
Eladó téglalakás
Eladó téglalakás

Szombathely

86.73 M Ft
4 szoba
96 m2
Eladó téglalakás
Eladó téglalakás

Répcelak, Petőfi Sándor utca

35.7 M Ft
2 szoba
54 m2
Eladó téglalakás
Eladó téglalakás

Körmend, Bástya utca

12 M Ft
2 szoba
70 m2
Eladó téglalakás
Eladó téglalakás

Szombathely

69 M Ft
4 szoba
136 m2
Eladó téglalakás
Eladó téglalakás

Szombathely

71.99 M Ft
120 m2
Eladó téglalakás
Eladó téglalakás

Szombathely

74.99 M Ft
3 szoba
71 m2

Falusi CSOK ingatlanok

Eladó családi ház
Eladó családi ház

Mezőfalva

39 M Ft
3 szoba
77 m2
Eladó családi ház
Eladó családi ház

Emőd

29.9 M Ft
2 szoba
75 m2
Eladó családi ház
Eladó családi ház

Rábapaty

110 M Ft
5 szoba
132 m2
Eladó családi ház
Eladó családi ház

Sárosd

21.9 M Ft
3 szoba
86 m2
Eladó családi ház
Eladó családi ház

Helesfa

17.999 M Ft
2 szoba
74 m2
Eladó családi ház
Eladó családi ház

Bükkszentkereszt, Zrínyi u 13

51.9 M Ft
5 szoba
230 m2
Eladó családi ház
Eladó családi ház

Recsk

59 M Ft
2 szoba
70 m2
Eladó ikerház
Eladó ikerház

Táborfalva

49.9 M Ft
4 szoba
54 m2