Oasis Residence

Eladó téglalakás
Szolnok, 3. emelet

+ 8 kép 1/11
72 257 000 Ft72.257 M Ft 950 750 Ft/m2
2 szoba
76 m2
3. emelet
építés éve:2023

Részletes adatok

Fűtés: Gázkazán
Extrák: Lift
Energetikai besorolás: Nem adta meg a hirdető

Az OTP Bank lakáshitel ajánlataFizetett hirdetés

+36 30 266
Czinegéné Deák Judit
referens

Érdekel az OTP Bank kedvezményes lakáshitel ajánlata? *

* A kérdésre „Igen” válasz bejelölése esetén, az „Üzenet küldése” gombra kattintva kijelentem, hogy az OTP Bank Nyrt. Adatkezelési tájékoztatójának tartalmát megismertem és tudomásul vettem.

Eladó téglalakás leírása

Jász-Nagykun Szolnok vármegye, Szolnok településen eladásra kínálunk egy 2023 szeptember óta használatbavételi engedéllyel rendelkező, tehermentes, 1/1 tulajdonú, 3. emeleti lakást egy liftes társasházban.
A társasház igényes, összetartó lakóközösséggel rendelkezik.
Nívósan kialakított, prémium lakás, ahonnan pár perc sétával elérhető a belváros központja.
A társasház előtt buszmegálló is található, így tömegközlekedéssel is jól megközelíthető.
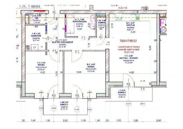
A lakás 70,27 m2, két, egyenként 6.13 illetve 5.45 nm-es erkéllyel rendelkezik, tartozik hozzá egy előtér, amerikai konyhás nappali és étkező, két szoba, gardrób, ízlésesen kialakított fürdőkádas fürdőszoba, önálló WC.
A lakás dél-keleti fekvésű magas benapozott óraszámmal rendelkezik. Minőségi kivitelezésű, a tervezéskor nagyon figyeltek a tökéletes térkihasználásra.
A homlokzati felületeken korszerű, 7 légkamrás műanyag profilú, háromrétegű, hő és hanggátló üvegezésű nyílászárók kerültek beépítésre.
A bejárati ajtó a biztosító társaságok által minősített, több ponton záródó, hanggátló Rolla biztonsági ajtó, a kialakításnak megfelelően fúrásbiztos hengerzár betéttel. A belső ajtók Borovi gyártmányú, HDF hordozó felületre ragasztott, dekor felületű, nyomtatott famintázatúak.
Egyedi fűtési és melegvíz előállítási rendszert alakítottunk ki. Bosch kondenzációs kombi gázkazán biztosítja az ingatlan számára a maximális komfortot, kényelmet és hatékonyságot.
A lakás nyári hűtéséhez klíma előszerelelés került kialakításra.
A korszerű fűtési rendszer, a jó hőszigetelő képességű falak és nyílászárók a tapasztalatok alapján rendkívül alacsony fenntartási költséget eredményeztek.
A lakás azonnal költözhető!
Konyhabútor gépekkel igény esetén 4.500.000.- Ft

A Társasház földszintjén önálló helyrajzi számmal rendelkező garázsok is vásárolhatók. Amennyiben felkeltette érdeklődését ez az ingatlan, ismerje meg egy személyes bejárás során

Amennyiben az OTP Ingatlanpont kínálatából választ ingatlant, úgy kedvezőbb kamatozású OTP Bank hitelhez juthat.
Vállalom Babaváró kölcsön, CSOK Plusz illetve Otthon Start Program ügyintézését is!
Ingatlant kereső ügyfeleink részére szolgáltatásaink és az ingatlanvásárlással, ingatlan felújítással kapcsolatos hitel ügyintézése ingyenes.
Az adás-vétel lebonyolításához korrekt ügyvédi közreműködést tudunk biztosítunk.

Hirdetés feltöltve: 2025. 12. 13. Utoljára módosítva: 2026. 01. 05.

2 szobás téglalakások ára Szolnokon

Ebből az összehasonlításból megtudhatod, hogyan viszonyul a lakás ára a környékbeli téglalakások átlagos árához. Ez nem azt jelenti, hogy ennyivel olcsóbb vagy drágább, mint amennyit a lakás ér, hanem hogy ennyivel tér el a környékbeli átlagtól.

Ennek a m² ára
Szolnok m² ár
951 e Ft
786 e Ft -21%
Ennek az ára
Szolnok átlagár
72.257 M Ft m Ft
56.4 m Ft -28%

Az ingatlan elhelyezkedése

Cím: Szolnok, 3. emelet

Eladó téglalakások a környékről

Eladó téglalakás
Eladó téglalakás

Jászberény

47 M Ft
1 + 1 szoba
60 m2
Eladó téglalakás
Eladó téglalakás

Szolnok

45.9 M Ft
4 szoba
93 m2
Eladó téglalakás
Eladó téglalakás

Jászberény

49.5 M Ft
1 szoba
60 m2
Eladó téglalakás
Eladó téglalakás

Szolnok

34.99 M Ft
2 szoba
59 m2
Eladó téglalakás
Eladó téglalakás

Szolnok

45.9 M Ft
4 szoba
93 m2
Eladó téglalakás
Eladó téglalakás

Szolnok, Katonaváros, Tófenék utca

63.5 M Ft
1 szoba
94 m2
Eladó téglalakás
Eladó téglalakás

Szolnok

90 M Ft
3 szoba
100 m2
Eladó téglalakás
Eladó téglalakás

Szászberek

79.9 M Ft
4 szoba
103 m2
Eladó téglalakás
Eladó téglalakás

Szolnok

65.55 M Ft
2 szoba
69 m2
Eladó téglalakás
Eladó téglalakás

Jászberény

49.5 M Ft
1 szoba
60 m2
Eladó téglalakás
Eladó téglalakás

Szolnok

63.5 M Ft
4 szoba
64 m2
Eladó téglalakás
Eladó téglalakás

Szolnok

34.9 M Ft
3 szoba
86 m2
Eladó téglalakás
Eladó téglalakás

Jászberény

52 M Ft
1 szoba
60 m2
Eladó téglalakás
Eladó téglalakás

Szolnok

90 M Ft
3 szoba
100 m2
Eladó téglalakás
Eladó téglalakás

Jászberény

61.9 M Ft
2 szoba
78 m2
Eladó téglalakás
Eladó téglalakás

Szászberek

81.9 M Ft
4 szoba
103 m2
Eladó téglalakás
Eladó téglalakás

Szolnok

90 M Ft
3 szoba
100 m2
Eladó téglalakás
Eladó téglalakás

Szolnok

34.99 M Ft
2 szoba
59 m2
Eladó téglalakás
Eladó téglalakás

Szolnok, Katonaváros, Tófenék utca

63.5 M Ft
1 szoba
94 m2
Eladó téglalakás
Eladó téglalakás

Szolnok

95.7 M Ft
4 szoba
134 m2
Eladó téglalakás
Eladó téglalakás

Jászberény

47 M Ft
1 + 1 szoba
60 m2
Eladó téglalakás
Eladó téglalakás

Szolnok

69 M Ft
5 szoba
144 m2
Eladó téglalakás
Eladó téglalakás

Szolnok

90 M Ft
3 szoba
100 m2
Eladó téglalakás
Eladó téglalakás

Szolnok

90 M Ft
3 szoba
100 m2

Falusi CSOK ingatlanok

Eladó családi ház
Eladó családi ház

Lad, Ady Endre utca

40 M Ft
4 szoba
110 m2
Eladó családi ház
Eladó családi ház

Vasvár

48.5 M Ft
4 szoba
105 m2
Eladó családi ház
Eladó családi ház

Nagynyárád, Arany János

22.9 M Ft
3 szoba
110 m2
Eladó családi ház
Eladó családi ház

Fertőd

65 M Ft
3 szoba
90 m2
Eladó családi ház
Eladó családi ház

Szentliszló

29.9 M Ft
3 + 2 szoba
157 m2
Eladó családi ház
Eladó családi ház

Tápiógyörgye

44.9 M Ft
3 + 1 szoba
120 m2
Eladó családi ház
Eladó családi ház

Kaposgyarmat

695 M Ft
6 szoba
610 m2
Eladó családi ház
Eladó családi ház

Győrság

475 M Ft
13 szoba
1115 m2