Pesti Házak

Eladó téglalakás
Szolnok, Tetőtér

+ 1 kép 1/4
93 100 000 Ft93.1 M Ft 950 000 Ft/m2
3 szoba
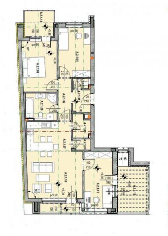
98 m2
Tetőtér

Részletes adatok

Telekméret: 1415 m2
Fűtés: Egyéb
Extrák: Lift
Energetikai besorolás: Nem adta meg a hirdető

Az OTP Bank lakáshitel ajánlataFizetett hirdetés

+36 70 387
Fejes Pál
Árkádia Ingatlaniroda

Érdekel az OTP Bank kedvezményes lakáshitel ajánlata? *

* A kérdésre „Igen” válasz bejelölése esetén, az „Üzenet küldése” gombra kattintva kijelentem, hogy az OTP Bank Nyrt. Adatkezelési tájékoztatójának tartalmát megismertem és tudomásul vettem.

Eladó téglalakás leírása

Az építésitelek 1415 m2, melyen “A” épület 10 lakás és “B” épület 9 lakás kerül kialakításra.

A lakások méretei:

A épület:

Fsz.: 41 m2, 53 m2

1em.: 88 m2 + 20 m2 terasz, 63 m2 + 6 m2 terasz, 78 m2 + 12 m2 terasz

2em.: 88 m2 + 20 m2 terasz, 63 m2 + 6 m2 terasz, 78 m2 + 12 m2 terasz

Tetőtér: 70 m2 + 12 m2 terasz, 89 m2 + 12m2terasz

B épület:

Fsz.: 49 m2, 63 m2

1em.: 63 m2 + 7 m2 terasz, 49 m2 + 5 m2 terasz, 66 m2 + 7 m2 terasz

2em.: 88 m2 + 20 m2 terasz, 63 m2 + 6 m2 terasz, 77 m2 + 12 m2 terasz

Tetőtér: 93 m2 + 22 m2 terasz

A lakások 30% előleg befizetésével foglalhatók le.

Parkolás: minden lakáshoz 1db fedett, vagy szabadtéri szilárdburkolatú parkolóhely kialakítása tervezett.

A fedett parkoló ára 6.000.000.Ft., a fedetlen 4.500.000.Ft.

Szerkezeti kialakítás:

Alapozás: talpgerendaráccsal, tartószerkezeti műszaki leírás szerint.

Lábazat: A gerendarács tetején fagyálló lábazat készül 2 sorzsalukőből, tartó szerkezeti műszaki leírás szerint.

Falszerkezet: Homlokzati falak: PTH30N + F kerámia falazóblokk, 15 cm. polisztirol, illetve a szükséges helyeken ásványiszálas hőszigeteléssel, tűzvédelmi műszakileírás szerint.

Födémszerkezet: helyszínen készített monolit vasbetonfödémszerkezet készül.

Nyílászárók: Homlokzaton hőszigetelőüvegezésű műanyag ajtók és ablakok.

Lakásokon hőszigetelő műanyag bejárati ajtó.

Lakásokban MDF lapos beltéri ajtók, utólagos tokos kivitelben.

Tetőtérben Velux hőszigetelő tetősíkú ablakok.

Földszinti tárolókban fémszerkezetű ajtók.

Burkolatok: Padlóburkolat: kerámialap burkolat, illetve laminált parketta.

Falburkolat: vizes helyiségek oldalfalain csempeburkolat.

Mennyezetburkolat tetőtérben: tűzálló gipszkarton.

Lift: Épületenként egy-egy 630 kg. teherbírású, 8 személyes OTIS személyfelvonó

létesül egyoldali beszállóhely kialakítással, 4 beszállóhellyel, villamoshajtással,

szakági tervek szerint.

Amennyiben hirdetésem felkeltette érdeklődését várom megtisztelő

hívását.

Hirdetés feltöltve: 2025. 05. 22. Utoljára módosítva: 2025. 12. 16.

3 szobás téglalakások ára Szolnokon

Ebből az összehasonlításból megtudhatod, hogyan viszonyul a lakás ára a környékbeli téglalakások átlagos árához. Ez nem azt jelenti, hogy ennyivel olcsóbb vagy drágább, mint amennyit a lakás ér, hanem hogy ennyivel tér el a környékbeli átlagtól.

Ennek a m² ára
Szolnok m² ár
950 e Ft
781 e Ft -22%
Ennek az ára
Szolnok átlagár
93.1 M Ft m Ft
62.2 m Ft -50%

Az ingatlan elhelyezkedése

Cím: Szolnok, Tetőtér

Eladó téglalakások a környékről

Eladó téglalakás
Eladó téglalakás

Jászberény

53 M Ft
1 + 1 szoba
62 m2
Eladó téglalakás
Eladó téglalakás

Jászberény

61.9 M Ft
3 szoba
93 m2
Eladó téglalakás
Eladó téglalakás

Szászberek

81.9 M Ft
4 szoba
103 m2
Eladó téglalakás
Eladó téglalakás

Jászberény

49.5 M Ft
1 szoba
60 m2
Eladó téglalakás
Eladó téglalakás

Jászberény

61.5 M Ft
1 + 1 szoba
71 m2
Eladó téglalakás
Eladó téglalakás

Szolnok, Katonaváros, Tófenék utca

63.5 M Ft
1 szoba
94 m2
Eladó téglalakás
Eladó téglalakás

Jászberény

61.9 M Ft
2 szoba
78 m2
Eladó téglalakás
Eladó téglalakás

Jászberény

52 M Ft
1 szoba
60 m2
Eladó téglalakás
Eladó téglalakás

Szolnok

90 M Ft
3 szoba
100 m2
Eladó téglalakás
Eladó téglalakás

Szolnok

63.5 M Ft
4 szoba
64 m2
Eladó téglalakás
Eladó téglalakás

Kisújszállás

31 M Ft
2 szoba
86 m2
Eladó téglalakás
Eladó téglalakás

Jászberény

49.5 M Ft
1 szoba
60 m2
Eladó téglalakás
Eladó téglalakás

Szászberek

81.9 M Ft
4 szoba
103 m2
Eladó téglalakás
Eladó téglalakás

Szolnok

72.2 M Ft
3 szoba
98 m2
Eladó téglalakás
Eladó téglalakás

Szolnok

83.9 M Ft
4 szoba
114 m2
Eladó téglalakás
Eladó téglalakás

Szolnok

90 M Ft
3 szoba
100 m2
Eladó téglalakás
Eladó téglalakás

Szászberek

79.9 M Ft
4 szoba
103 m2
Eladó téglalakás
Eladó téglalakás

Jászberény

47 M Ft
1 + 1 szoba
60 m2
Eladó téglalakás
Eladó téglalakás

Jászberény

49.5 M Ft
1 szoba
60 m2
Eladó téglalakás
Eladó téglalakás

Szolnok

90 M Ft
3 szoba
100 m2
Eladó téglalakás
Eladó téglalakás

Szolnok

59.9 M Ft
5 szoba
96 m2
Eladó téglalakás
Eladó téglalakás

Szolnok

50.9 M Ft
2 szoba
85 m2
Eladó téglalakás
Eladó téglalakás

Szolnok

34.9 M Ft
3 szoba
86 m2
Eladó téglalakás
Eladó téglalakás

Jászberény

53 M Ft
1 + 1 szoba
62 m2

Falusi CSOK ingatlanok

Eladó családi ház
Eladó családi ház

Sellye

21.6 M Ft
2 szoba
72 m2
Eladó családi ház
Eladó családi ház

Annavölgy

44 M Ft
3 szoba
84 m2
Eladó családi ház
Eladó családi ház

Szabadbattyán

30 M Ft
4 szoba
75 m2
Eladó családi ház
Eladó családi ház

Tokodaltáró

95 M Ft
7 szoba
220 m2
Eladó családi ház
Eladó családi ház

Bábolna

90.3 M Ft
5 szoba
100 m2
Eladó családi ház
Eladó családi ház

Baksa

61.99 M Ft
3 szoba
100 m2
Eladó családi ház
Eladó családi ház

Mezőlak, Arany János utca

35.7 M Ft
3 szoba
104 m2
Eladó családi ház
Eladó családi ház

Győrság

475 M Ft
13 szoba
1115 m2