River Life

Eladó téglalakás
Sopron, Családi ház

83 325 000 Ft83.325 M Ft 1 262 500 Ft/m2
3 szoba
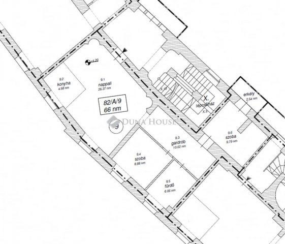
66 m2
Családi ház
építés éve:2025

Részletes adatok

Állapot: Újszerű
Fűtés: Házközponti egyedi méréssel
Emelet: 1. emelet
Energetikai besorolás: F

Az OTP Bank lakáshitel ajánlataFizetett hirdetés

3694814114
Goldschmidt Ferenc
Duna House Uránia Szombathely

Érdekel az OTP Bank kedvezményes lakáshitel ajánlata? *

* A kérdésre „Igen” válasz bejelölése esetén, az „Üzenet küldése” gombra kattintva kijelentem, hogy az OTP Bank Nyrt. Adatkezelési tájékoztatójának tartalmát megismertem és tudomásul vettem.

Eladó téglalakás leírása

Azonnal birtokba vehető Új kialakítású lakások eladóak, Sopron történelmi belvárosában!

Az épület Sopron belvárosának emblematikus helyén, az Orsolya teret a Várkerülettel összekötő Hátsókapu utca tört vonalának belső, városmag felőli részét foglalja el. A korai historizmus klasszicizáló stílusában épült kétemeletes lakóház Hasenauer Márton tervei alapján készült, ez volt Sopron első bérháza.

Az elmúlt időszakban fejeződött be az ingatlan teljeskörű korszerűsítése a Műemlékvédelmi hivatal Útmutatásai és szoros kontrollja alatt. Födémfelújítás-Teljes belső átépítés-Nyílászárók cseréje-Gépészet teljeskörű korszerűsítése (elektromos, víz, gáz és fűtésrendszer)-Homlokzatfelújítás-Burkolatok-Szaniterek-stb... Rendelkezésre áll az épület használatbavételi engedélye és a Társasház Alapító Okirat is elkészült. A teljesen újjávarázsolt épület A és B épületrészből áll, belső udvarral rendelkezik, mely a vársétány koncepció szerves része.

A közös használatú épületrészek:
- Közlekedők (kerámia burkolattal), LED-es mozgásérzékelős világítás a lépcsőházakban és közlekedőkben.
- Hulladék- és kerékpártárolók külön helyiségekben
- Az épületgépészeti helyiség a pinceszinten kiépítve (2 db nagy teljesítményű kondenzációs gázkazán, kétkürtős SCHIEDEL kéménnyel)
- A pinceszinten különböző méretű, teljesen elszeparált és zárható privát tárolók lettek kialakítva, melyek a lakásokhoz megvásárolhatók.

Az impozáns lakóházban összesen húsz, különböző alapterületű lakás került kialakításra, egy, kettő és három szobás elrendezéssel, földszinti, első és második emeleti valamint tetőtéri lakások választhatók. Minden ingatlan kulcsrakész állapotban várja leendő tulajdonosát.
A lakások vételára tartalmazza az adásvételi szerződéssel kapcsolatos ügyvédi munkadíjat, valamint a tulajdonjog bejegyzéssel kapcsolatos költségeket is!

B9 lakás: Az első emeleti ingatlan 66 m2 alapterületű, amerikai konyhás nappali, két hálószoba, konyha-étkező, gardrób, erkély és fürdőszoba kapott helyet benne, a tágas világos lakás délnyugati tájolású, kilátással a sétáló utcára, az erkély a csendes belső udvarra tájolt.

Az ingatlanok megfelelnek a 3%-os OTTHON Start Hitel feltételeinek! További információkért keressen bizalommal!

Hirdetés feltöltve: 2026. 01. 25. Utoljára módosítva: 2026. 01. 25.

3 szobás téglalakások ára Sopronban

Ebből az összehasonlításból megtudhatod, hogyan viszonyul a lakás ára a környékbeli téglalakások átlagos árához. Ez nem azt jelenti, hogy ennyivel olcsóbb vagy drágább, mint amennyit a lakás ér, hanem hogy ennyivel tér el a környékbeli átlagtól.

Ennek a m² ára
Sopron m² ár
1263 e Ft
1082 e Ft -17%
Ennek az ára
Sopron átlagár
83.325 M Ft m Ft
76.9 m Ft -8%

Az ingatlan elhelyezkedése

Cím: Sopron, Családi ház

Eladó téglalakások a környékről

Eladó téglalakás
Eladó téglalakás

Sopron

135 M Ft
10 szoba
193 m2
Eladó téglalakás
Eladó téglalakás

Sopron

73.9 M Ft
2 szoba
49 m2
Eladó téglalakás
Eladó téglalakás

Sopron

59.9 M Ft
3 szoba
94 m2
Eladó téglalakás
Eladó téglalakás

Sopron

105.99 M Ft
5 szoba
122 m2
Eladó téglalakás
Eladó téglalakás

Győr

38.99 M Ft
2 szoba
46 m2
Eladó téglalakás
Eladó téglalakás

Sopron

43 M Ft
1 szoba
38 m2
Eladó téglalakás
Eladó téglalakás

Mosonmagyaróvár

31.9 M Ft
2 + 1 szoba
59 m2
Eladó téglalakás
Eladó téglalakás

Győr

38.99 M Ft
2 szoba
46 m2
Eladó téglalakás
Eladó téglalakás

Sopron

99.9 M Ft
3 szoba
81 m2
Eladó téglalakás
Eladó téglalakás

Sopron

65 M Ft
3 szoba
148 m2
Eladó téglalakás
Eladó téglalakás

Sopron

9.9 M Ft
320 m2
Eladó téglalakás
Eladó téglalakás

Győr

98.5 M Ft
3 szoba
96 m2
Eladó téglalakás
Eladó téglalakás

Sopron

9.9 M Ft
320 m2
Eladó téglalakás
Eladó téglalakás

Győr

54.99 M Ft
3 szoba
64 m2
Eladó téglalakás
Eladó téglalakás

Sopron

124.9 M Ft
4 szoba
94 m2
Eladó téglalakás
Eladó téglalakás

Sopron

109 M Ft
5 szoba
130 m2
Eladó téglalakás
Eladó téglalakás

Sopron

99.9 M Ft
3 + 1 szoba
82 m2
Eladó téglalakás
Eladó téglalakás

Sopron

87 M Ft
5 szoba
127 m2
Eladó téglalakás
Eladó téglalakás

Sopron

96.9 M Ft
3 szoba
72 m2
Eladó téglalakás
Eladó téglalakás

Sopron

110 M Ft
5 szoba
113 m2
Eladó téglalakás
Eladó téglalakás

Sopron, Gólya utca

46.9 M Ft
2 szoba
44 m2
Eladó téglalakás
Eladó téglalakás

Sopron

99.9 M Ft
3 szoba
81 m2
Eladó téglalakás
Eladó téglalakás

Sopron

109 M Ft
5 szoba
130 m2
Eladó téglalakás
Eladó téglalakás

Sopron, Gólya utca

46.9 M Ft
2 szoba
44 m2

Falusi CSOK ingatlanok

Eladó családi ház
Eladó családi ház

Zengővárkony

28 M Ft
3 szoba
87 m2
Eladó családi ház
Eladó családi ház

Berkesd

48.9 M Ft
8 szoba
180 m2
Eladó családi ház
Eladó családi ház

Hosszúpereszteg

27.9 M Ft
4 szoba
121 m2
Eladó családi ház
Eladó családi ház

Szabadbattyán

74.9 M Ft
3 szoba
105 m2
Eladó családi ház
Eladó családi ház

Bozsok

290 M Ft
6 szoba
370 m2
Eladó családi ház
Eladó családi ház

Zalalövő

34.99 M Ft
3 + 1 szoba
110 m2
Eladó családi ház
Eladó családi ház

Szőlősgyörök

85 M Ft
6 szoba
243 m2
Eladó családi ház
Eladó családi ház

Nagyhegyes

44.9 M Ft
2 szoba
72 m2