Seven Pearl

Eladó téglalakás
Nyíregyháza, 1. emelet

+ 6 kép 1/9
69 990 000 Ft69.99 M Ft 933 200 Ft/m2
3 szoba
75 m²
1. emelet
építés éve:2004

Részletes adatok

Fűtés: Gázkazán
Emelet: 1. emelet
Parkolás: Garázs
Közmű: Víz, Gáz, Villany, Csatorna
Komfort: Összkomfortos
Extrák: Lift
Energetikai besorolás: Nem adta meg a hirdető

Az OTP Bank lakáshitel ajánlataFizetett hirdetés

+36 70 555
Balansz Ingatlanstúdió
Balansz Ingatlanstúdió

Érdekel az OTP Bank kedvezményes lakáshitel ajánlata? *

* A kérdésre „Igen” válasz bejelölése esetén, az „Üzenet küldése” gombra kattintva kijelentem, hogy az OTP Bank Nyrt. Adatkezelési tájékoztatójának tartalmát megismertem és tudomásul vettem.

Eladó téglalakás leírása

Eladó Nyíregyháza abszolút belvárosában egy 2004-ben épült, tégla szerkezetű, szigetelt társasházi lakás.

Az ingatlan liftes házban található, tágas terek jellemzik.

A lakás K-D fekvésű, így rendkívül világos.

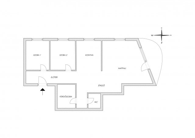
Főbb paraméterek:
• Alapterület: 75 m² + fedett erkély.
• Elosztás: Nappali + konyha + étkező egy légtérben, 2 különnyíló hálószoba, fürdőszoba és külön WC.
• Műszaki tartalom: Egyedi gázfűtés, műanyag nyílászárók, alacsony fenntartási költség.
• Extrák: Liftes társasház, fiatal építés.

Parkolás:
A vételár tartalmazza a teremgarázs beállót is, ami a belvárosban kiemelkedő előnyt és biztonságot jelent.

Az ingatlan tehermentes és azonnal birtokba vehető!

Vevő ügyfeleink számára a közvetítés díjtalan.

Irodánkban szakszerű, ingyenes hitelügyintézést biztosítunk.

Hirdetés feltöltve: 2026. 04. 01. Utoljára módosítva: 2026. 05. 13.

3 szobás téglalakások ára Nyíregyházán

Ebből az összehasonlításból megtudhatod, hogyan viszonyul a lakás ára a környékbeli téglalakások átlagos árához. Ez nem azt jelenti, hogy ennyivel olcsóbb vagy drágább, mint amennyit a lakás ér, hanem hogy ennyivel tér el a környékbeli átlagtól.

Ennek a m² ára
Nyíregyháza m² ár
933 e Ft
879 e Ft -6%
Ennek az ára
Nyíregyháza átlagár
69.99 M Ft m Ft
62.4 m Ft -12%

Az ingatlan elhelyezkedése

Cím: Nyíregyháza, 1. emelet

Eladó téglalakások a környékről

Nyíregyháza
Eladó téglalakás

Nyíregyháza

69.8 M Ft
4 szoba
92 m²
Nyíregyháza
Eladó téglalakás

Nyíregyháza

54.5 M Ft
3 szoba
67 m²
Tiszavasvári
Eladó téglalakás

Tiszavasvári

19.5 M Ft
3 szoba
61 m²
Nyíregyháza
Eladó téglalakás

Nyíregyháza

72.5 M Ft
3 + 1 szoba
170 m²
Nyíregyháza
Eladó téglalakás

Nyíregyháza

59.9 M Ft
3 + 1 szoba
120 m²
Nyíregyháza
Eladó téglalakás

Nyíregyháza

99 M Ft
7 szoba
218 m²
Tiszavasvári
Eladó téglalakás

Tiszavasvári

6.99 M Ft
2 szoba
63 m²
Nyíregyháza
Eladó téglalakás

Nyíregyháza

53.7 M Ft
3 szoba
83 m²
Nyíregyháza
Eladó téglalakás

Nyíregyháza

77.5 M Ft
4 szoba
120 m²
Nyíregyháza, Örökösföld, Törzs utca 2
Eladó téglalakás

Nyíregyháza

67.9 M Ft
3 szoba
71 m²
Nyíregyháza
Eladó téglalakás

Nyíregyháza

99 M Ft
7 szoba
218 m²
Nyíregyháza
Eladó téglalakás

Nyíregyháza

39.9 M Ft
2 szoba
67 m²
Nyíregyháza
Eladó téglalakás

Nyíregyháza

55.5 M Ft
2 szoba
78 m²
Nyíregyháza
Eladó téglalakás

Nyíregyháza

59.9 M Ft
5 szoba
120 m²
Nyíregyháza
Eladó téglalakás

Nyíregyháza

32 M Ft
1 szoba
36 m²
Nyíregyháza, Örökösföld, Törzs utca 2
Eladó téglalakás

Nyíregyháza

67.9 M Ft
3 szoba
71 m²
Nyíregyháza
Eladó téglalakás

Nyíregyháza

77 M Ft
3 szoba
61 m²
Nyíregyháza
Eladó téglalakás

Nyíregyháza

64.9 M Ft
5 szoba
120 m²
Nyíregyháza
Eladó téglalakás

Nyíregyháza

105 M Ft
4 szoba
150 m²
Nyíregyháza
Eladó téglalakás

Nyíregyháza

79.99 M Ft
4 szoba
152 m²
Nyíregyháza
Eladó téglalakás

Nyíregyháza

32 M Ft
1 szoba
36 m²
Nyíregyháza
Eladó téglalakás

Nyíregyháza

64.9 M Ft
5 szoba
120 m²
Nyíregyháza
Eladó téglalakás

Nyíregyháza

39.9 M Ft
2 szoba
67 m²
Nyíregyháza
Eladó téglalakás

Nyíregyháza

69.8 M Ft
4 szoba
92 m²

Falusi CSOK ingatlanok

Zsámbok
Eladó családi ház

Zsámbok

54.85 M Ft
3 szoba
120 m²
Bag
Eladó ikerház

Bag

93 M Ft
3 szoba
67 m²
Balatonudvari
Eladó családi ház

Balatonudvari

230 M Ft
9 szoba
260 m²
Tápiószőlős
Eladó családi ház

Tápiószőlős

9.9 M Ft
3 szoba
0 m²
Nagyhegyes
Eladó családi ház

Nagyhegyes

54.99 M Ft
2 szoba
79 m²
Verseg
Eladó családi ház

Verseg

69.9 M Ft
4 szoba
0 m²
Balatonszemes
Eladó téglalakás

Balatonszemes

125.2 M Ft
2 szoba
50 m²
Kétegyháza
Eladó családi ház

Kétegyháza

21 M Ft
3 szoba
105 m²