River Life

Eladó téglalakás
Nyíregyháza, Ikerház

+ 15 kép 1/18
44 900 000 Ft44.9 M Ft 816 364 Ft/m2
2 szoba
55 m2
Ikerház
építés éve:1980

Részletes adatok

Állapot: Átlagos
Fűtés: Távfűtés
Emelet: 2. emelet
Parkolás: Garázs
Energetikai besorolás: Nem adta meg a hirdető
Zenga Premier

Friss hirdetések, amiket nem találsz meg más ingatlankereső portálon.

Fedezd fel elsőként a Zenga Premier címkés eladó ingatlanokat!

További részletek a zenga.hu-n

Az OTP Bank lakáshitel ajánlataFizetett hirdetés

+36 70 419
Dankó Enikő
Nyíregyháza Dózsa György út 32-34 - OTP Ingatlanpont Iroda

Érdekel az OTP Bank kedvezményes lakáshitel ajánlata? *

* A kérdésre „Igen” válasz bejelölése esetén, az „Üzenet küldése” gombra kattintva kijelentem, hogy az OTP Bank Nyrt. Adatkezelési tájékoztatójának tartalmát megismertem és tudomásul vettem.

Eladó téglalakás leírása

Eladó erkélyes, 2 szobás lakás Nyíregyházán , kiváló elhelyezkedéssel!

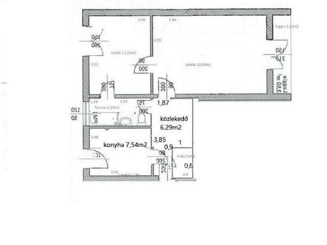
Szabolcs-Szatmár-Bereg vármegye székhelyén, Nyíregyházán eladó egy szigetelt, 5 emeletes társasház 2. emeletén egy 55 m2-es, kiváló elosztású lakás.
Az ingatlan 1980-ban épült, 2 szobás, erkélyes , műanyag nyílászárókkal és redőnnyel felszerelt. A lakás különlegessége, hogy a kisebb szobába a fürdőszobából is nyílik ajtó, ami ritka és praktikus megoldás.
Az elhelyezkedés rendkívül előnyös: Nyíregyháza mindkét egyeteme rövid sétatávolságra található, így saját részre és befektetésnek is ideális.
A társasház rendezett lépcsőházzal rendelkezik. A környéken az állandó bejelentett lakosok számára az éves parkolási díj mindössze 6 000 Ft.
Az ingatlan alkalmas Otthon Start Hitel igénybevételére, így kiváló lehetőség első lakásvásárlók számára is.

Főbb jellemzők:
55 m2 , 2 szoba + erkély második emelet, szigetelt társasház, műanyag nyílászárók, redőnnyel felszerelve.
Az egyetemek közvetlen közelében található az épület.

Amennyiben a hirdetés felkeltette érdeklődését, várom megtisztelő hívását.

Hirdetés feltöltve: 2026. 01. 24. Utoljára módosítva: 2026. 01. 25.

2 szobás téglalakások ára Nyíregyházán

Ebből az összehasonlításból megtudhatod, hogyan viszonyul a lakás ára a környékbeli téglalakások átlagos árához. Ez nem azt jelenti, hogy ennyivel olcsóbb vagy drágább, mint amennyit a lakás ér, hanem hogy ennyivel tér el a környékbeli átlagtól.

Ennek a m² ára
Nyíregyháza m² ár
816 e Ft
884 e Ft 8%
Ennek az ára
Nyíregyháza átlagár
44.9 M Ft m Ft
49.4 m Ft 9%

Az ingatlan elhelyezkedése

Cím: Nyíregyháza, Ikerház

Eladó téglalakások a környékről

Eladó téglalakás
Eladó téglalakás

Nyíregyháza

39.5 M Ft
2 + 2 szoba
79 m2
Eladó téglalakás
Eladó téglalakás

Nyíregyháza

79.99 M Ft
4 szoba
152 m2
Eladó téglalakás
Eladó téglalakás

Nyíregyháza

43.5 M Ft
3 + 1 szoba
79 m2
Eladó téglalakás
Eladó téglalakás

Nyíregyháza

39.5 M Ft
2 + 1 szoba
79 m2
Eladó téglalakás
Eladó téglalakás

Nyíregyháza

55.99 M Ft
2 szoba
77 m2
Eladó téglalakás
Eladó téglalakás

Nyíregyháza

36 M Ft
2 szoba
58 m2
Eladó téglalakás
Eladó téglalakás

Nyíregyháza

104.9 M Ft
5 szoba
209 m2
Eladó téglalakás
Eladó téglalakás

Nyíregyháza, Örökösföld, Törzs utca 2

65.9 M Ft
3 szoba
71 m2
Eladó téglalakás
Eladó téglalakás

Nyíregyháza

72.5 M Ft
3 + 1 szoba
170 m2
Eladó téglalakás
Eladó téglalakás

Nyíregyháza

39.5 M Ft
2 + 1 szoba
79 m2
Eladó téglalakás
Eladó téglalakás

Nyíregyháza

55.5 M Ft
2 szoba
78 m2
Eladó téglalakás
Eladó téglalakás

Nyíregyháza

43.5 M Ft
3 + 1 szoba
79 m2
Eladó téglalakás
Eladó téglalakás

Kisvárda

54.2 M Ft
4 szoba
74 m2
Eladó téglalakás
Eladó téglalakás

Nyíregyháza

53.7 M Ft
2 szoba
103 m2
Eladó téglalakás
Eladó téglalakás

Nyíregyháza

104.9 M Ft
5 szoba
209 m2
Eladó téglalakás
Eladó téglalakás

Nyíregyháza

39.5 M Ft
2 + 2 szoba
79 m2
Eladó téglalakás
Eladó téglalakás

Nyíregyháza

72.5 M Ft
3 + 1 szoba
170 m2
Eladó téglalakás
Eladó téglalakás

Nyíregyháza, Örökösföld, Törzs utca 2

65.9 M Ft
3 szoba
71 m2
Eladó téglalakás
Eladó téglalakás

Nyíregyháza

43.5 M Ft
3 + 1 szoba
79 m2
Eladó téglalakás
Eladó téglalakás

Nyíregyháza

77.5 M Ft
4 szoba
120 m2
Eladó téglalakás
Eladó téglalakás

Nyíregyháza

79.99 M Ft
4 szoba
152 m2
Eladó téglalakás
Eladó téglalakás

Nyíregyháza

53.7 M Ft
2 szoba
103 m2
Eladó téglalakás
Eladó téglalakás

Nyíregyháza

53.7 M Ft
2 szoba
83 m2
Eladó téglalakás
Eladó téglalakás

Nyíregyháza

49.7 M Ft
3 szoba
83 m2

Falusi CSOK ingatlanok

Eladó téglalakás
Eladó téglalakás

Újlengyel, Árpád utca

78.909 M Ft
3 szoba
91 m2
Eladó családi ház
Eladó családi ház

Szőlősgyörök

85 M Ft
6 szoba
243 m2
Eladó családi ház
Eladó családi ház

Gáborján

5.5 M Ft
2 szoba
68 m2
Eladó családi ház
Eladó családi ház

Nagyhegyes

44.9 M Ft
2 szoba
72 m2
Eladó családi ház
Eladó családi ház

Tab

58.5 M Ft
4 szoba
80 m2
Eladó családi ház
Eladó családi ház

Balatonszepezd

299 M Ft
5 szoba
220 m2
Eladó családi ház
Eladó családi ház

Zalacsány

75 M Ft
3 szoba
90 m2
Eladó családi ház
Eladó családi ház

Badacsonytördemic

180.95 M Ft
4 szoba
160 m2